| DỰ ÁN: | 3×9 House. |
| DIỆN TÍCH: | 27m2. |
| ĐỊA ĐIỂM: | Việt Nam. |
| KIẾN TRÚC SƯ CHỦ TRÌ: | Hiep Hoa Nguyen, Nhon Qui Nguyen. |
| CÔNG TY: | a21 studĩo. |
| NHÓM THIẾT KẾ: | a21 studĩo. |
| NHIẾP ẢNH GIA: | Hiroyuki Oki. |

Ngay cả ở Thành phố Hồ Chí Minh, một thành phố hỗn loạn và có mật độ dân cư cao, một mảnh đất rộng 3 mét và sâu 9 mét trên một con phố hẹp vẫn được coi là một vấn đề nan giải khi cải tạo một ngôi nhà cũ thành không gian thoải mái và tiện nghi hơn. Ngôi nhà được thiết kế cho một người phụ nữ trung niên và người bạn của bà, những người lấy cảm hứng từ âm nhạc và vẻ đẹp của thiên nhiên.

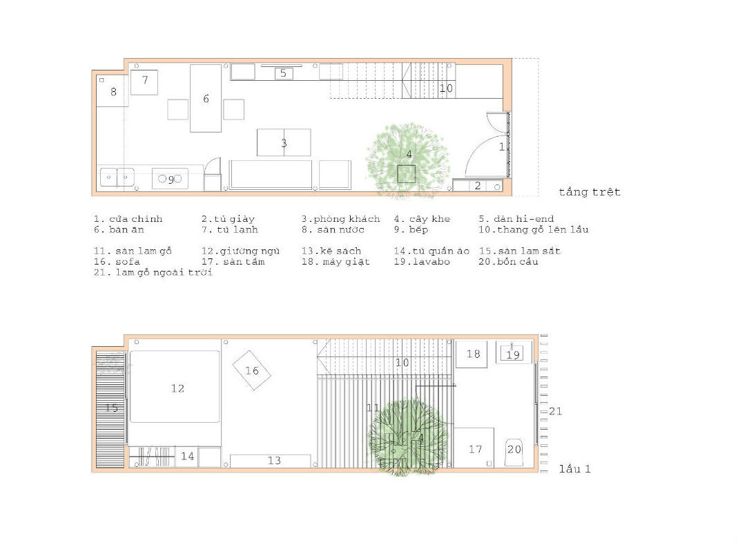
Ấn tượng đầu tiên về ngôi nhà là sự giản dị và sạch sẽ. Những thanh lam ngang được trang trí bằng hoa tạo nên nét độc đáo nhưng không hề kỳ lạ so với ngoại thất của các ngôi nhà lân cận. Tầng trệt có vẻ rộng rãi và gọn gàng hơn nhờ sự kết hợp giữa phòng khách, phòng ăn và nhà bếp mà không có bất kỳ vách ngăn nào để phân định không gian. Các vật liệu quen thuộc như gạch và thép được sử dụng một cách linh hoạt để tạo thêm cảm giác mộc mạc cho những không gian nhân tạo này.

Hơn nữa, thiên nhiên được đưa vào nhà bằng việc bố trí một cây xanh ngay lối vào. Cây xanh này, như một sinh vật sống, không chỉ làm mềm mại những góc cạnh thô ráp của thiết kế mà còn kết nối không gian tầng trệt với không gian tầng trên. Tầng hai, với cùng ngôn ngữ thiết kế, là không gian dành cho phòng ngủ và nhà vệ sinh, nhấn mạnh sự phong phú của ánh sáng tự nhiên nhờ sự thông thoáng hướng ra bầu trời.

Sự kết nối giữa phòng ngủ và nhà vệ sinh là một tập hợp các mảnh gỗ thưa thớt, tạo điều kiện cho ánh sáng, gió, mưa và thậm chí cả ý định của con người lưu thông trong nhà. Đây cũng là nơi cây cối tìm thấy ánh nắng mặt trời để hấp thụ. Như vậy, có thể nói rằng thiên nhiên đã khéo léo len lỏi đến mọi ngóc ngách của ngôi nhà bằng cách tạo ra “không gian kết nối”, bắc cầu và điều chỉnh các không gian và khu vực khác nhau, từ bên ngoài vào tầng trệt và tầng hai trước khi quay trở lại bên ngoài qua mái nhà mở ra bầu trời.