| CÔNG TY: | AHL architects. |
| NHÓM THIẾT KẾ: | Hiếu Hoàng, Hoang Nguyen, Hưng Đạo (CA). |
Ngôi nhà 7x18m nằm ở khu vực đông dân cư và hỗn loạn của Hà Nội. Làng Từ Liên nổi tiếng với những cánh đồng đào và quất – hai loại cây này đặc biệt được ưa chuộng trong dịp Tết Nguyên đán. Vị trí, văn hóa và nhu cầu của người dân cần được giải quyết trong thiết kế của chúng tôi.
Nhóm thiết kế cùng với chủ đầu tư (một người đàn ông trẻ tuổi và độc thân) đã lập dàn ý cho dự án này dựa trên các tiêu chí sau:
– Tiết kiệm năng lượng
– Tạo không gian hấp dẫn, thoáng đãng nhưng vẫn riêng tư và an toàn
– Sử dụng vật liệu địa phương
– Linh hoạt trong sử dụng
Khi phân tích đặc điểm của khu đất, “không gian sống hướng nội” đã nhanh chóng được quyết định để phát triển cấu trúc và bố cục không gian.
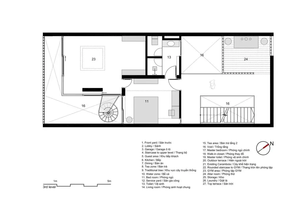
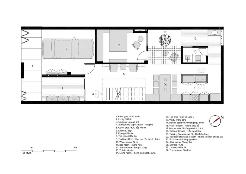
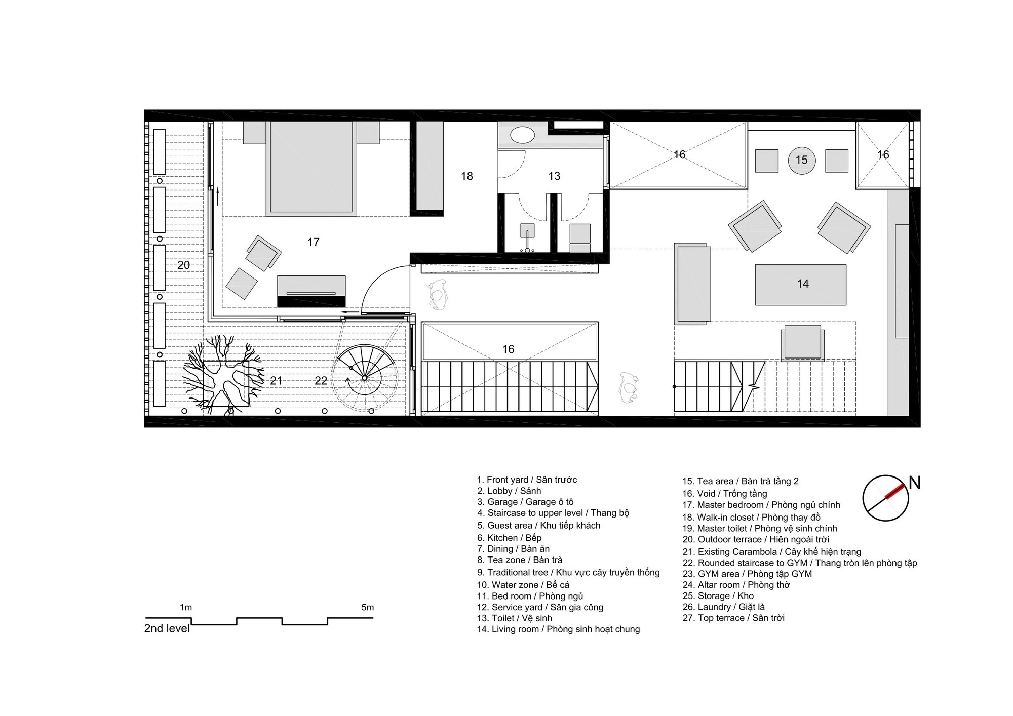
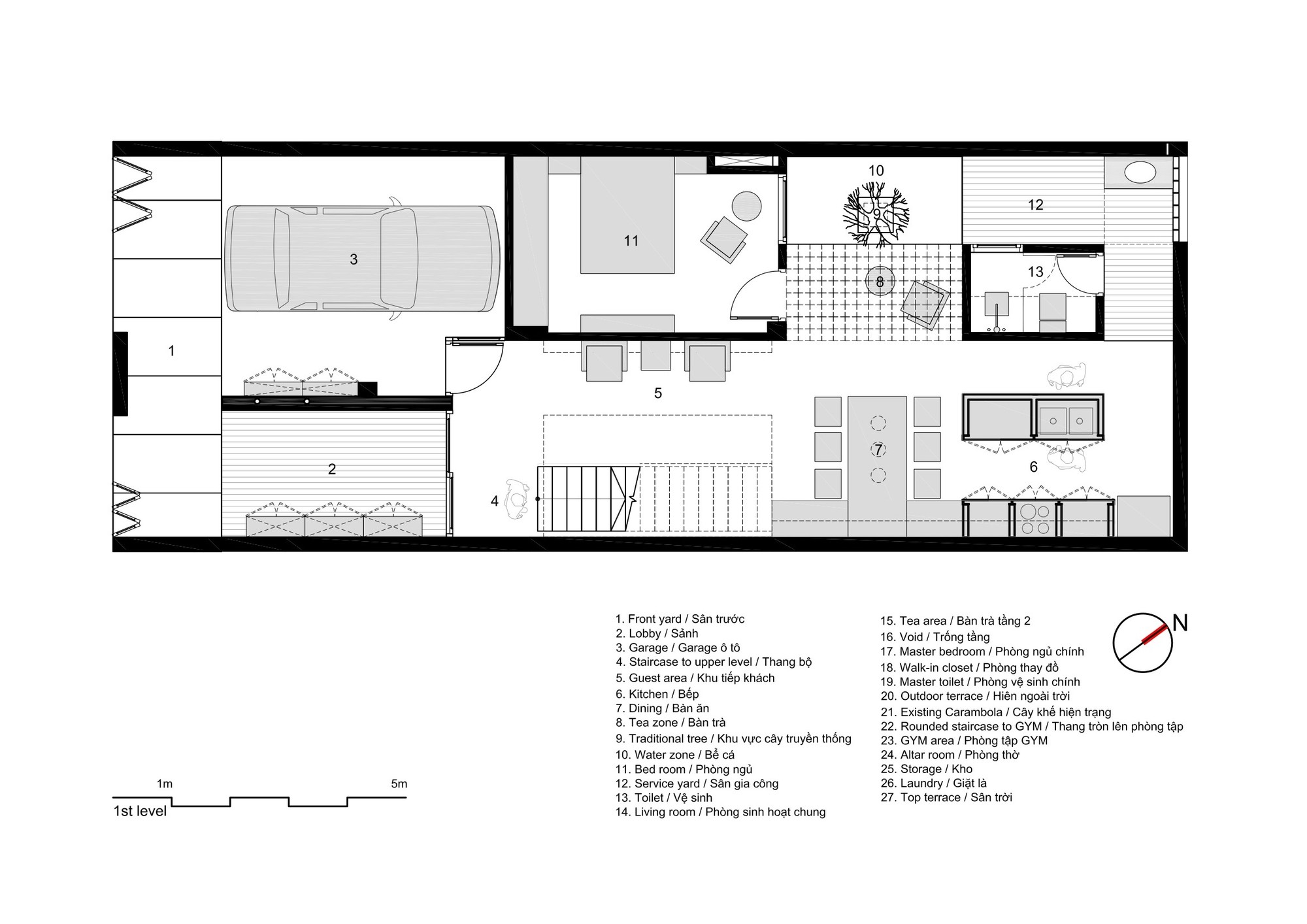
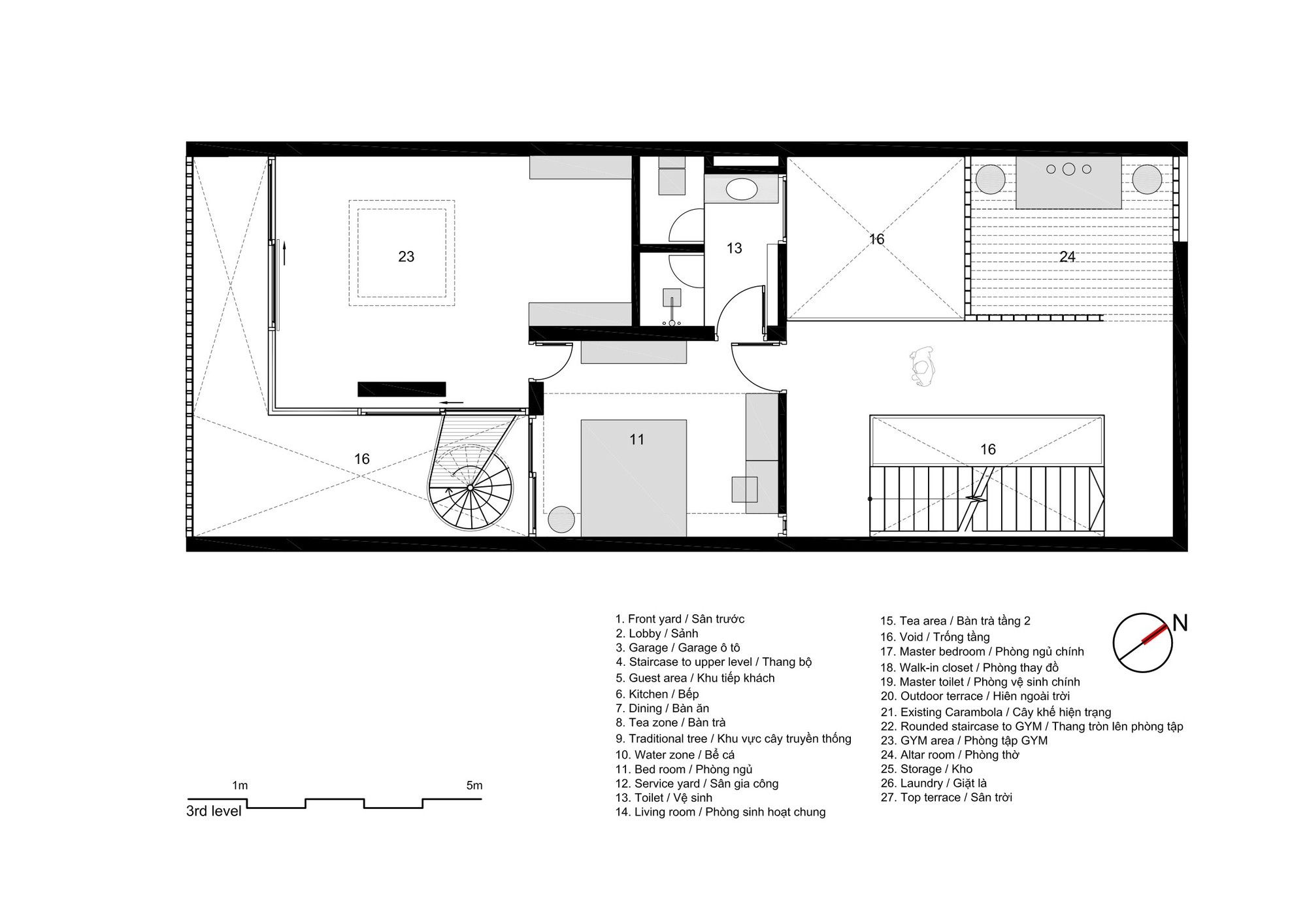
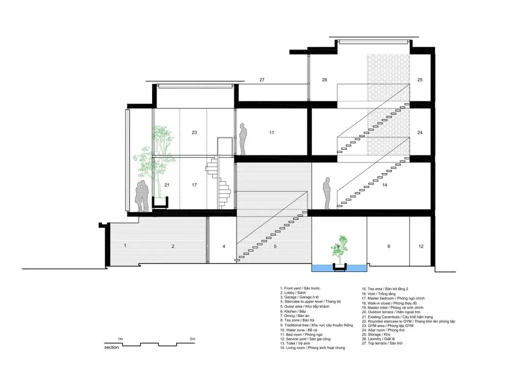
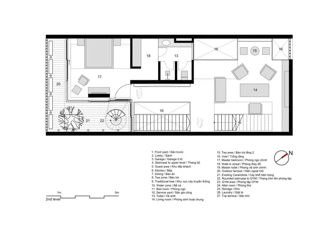
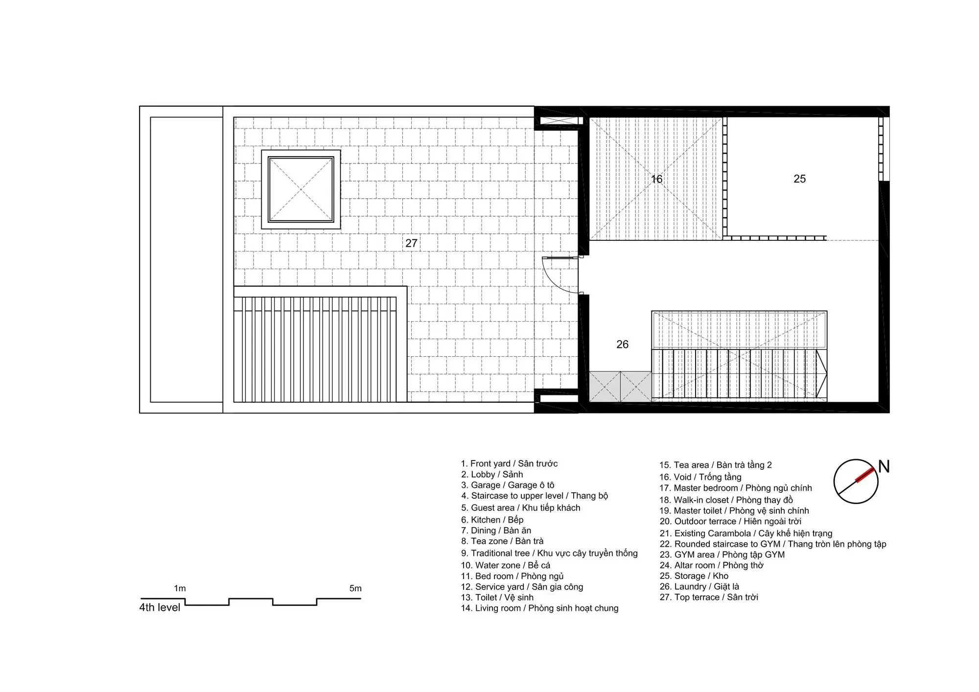
Các phòng, không gian và khu vườn được phân chia theo trục dọc và trục ngang. Tất cả tạo nên sự kết hợp giữa không gian trống và đặc trong tổng thể ngôi nhà rộng 1134m³ (7x18x9m). Mỗi không gian trong nhà đều tận dụng tối đa ánh sáng tự nhiên và thông gió tự nhiên, giúp tiết kiệm điện năng vào ban ngày. Cường độ ánh sáng mặt trời vào mùa hè cũng có thể được điều chỉnh bằng các thanh thép ở mặt trước và trên mái nhà.
Ngôi nhà hướng về phía đông nam với chiều rộng 7m. Hơn nữa, khoảng cách giữa các nhà liền kề khá hạn chế (chỉ hơn 5m một chút). Hai yếu tố này dường như đặt ra thách thức cho công tác thiết kế.
Mặt tiền được xử lý bằng hệ thống các thanh thép dọc kết hợp với các tấm thép dày 3mm. Mật độ cũng như sự giao thoa của sóng thép hai chiều phụ thuộc vào mục đích đảm bảo sự riêng tư cho căn phòng bên trong. Toàn bộ mặt tiền bằng kính được thiết kế lùi vào bên trong để tạo không gian đệm, tránh ánh nắng trực tiếp vào mùa hè nhưng vẫn cho phép ánh nắng mùa đông chiếu sâu vào bên trong.
Phòng ngủ chính được kết nối với phòng tập thể dục ở tầng ba bằng cầu thang thép hình tròn, nằm ngoài trời cùng với khu vườn. Toàn bộ tạo nên một khối nhà có diện tích 343m³ (7x7x7). Cây khế cổ thụ được chủ nhà giữ lại từ ngôi nhà cũ. Sau khi ngôi nhà hoàn thành, cây khế sẽ được mang về và trồng trong khu vườn ở tầng hai như một kỷ niệm.
Nhờ vị trí đặc biệt trong khu vực, nơi tập trung các loại cây truyền thống như đào và quất, nhóm thiết kế đã dành khu vực trung tâm của ngôi nhà cho những cây này. Cùng với bể cá, chúng tạo nên một không gian thú vị và thư giãn.
Bê tông trần, gạch men, gạch sứ hoa văn và gỗ thô dùng cho nội thất là những vật liệu chính được sử dụng xuyên suốt dự án. Tất cả đều tiết kiệm chi phí nhưng được gia công cẩn thận và phù hợp với chức năng của chúng, mang đến một luồng gió mới cho các vật liệu truyền thống.
Tóm lại, nhóm thiết kế đã mang đến cho chủ nhà một không gian độc đáo, đáp ứng các yêu cầu ban đầu và đóng góp thêm một giải pháp cho cảnh quan nhà ở đô thị tại Việt Nam hiện đang khá nhàm chán và lộn xộn.