| CÔNG TY: | IDEE ARTCHITECTS. |
| NHÓM THIẾT KẾ: | Trần Ngọc Linh, Nguyễn Huy Hải, Vũ Thanh Tâm, Nguyễn Đắc Nguyên. |
| NHIẾP ẢNH GIA: | Triệu Chiến. |
Với diện tích khu đất 1000m2, khách hàng muốn một ngôi nhà mở, gần gũi thiên nhiên, có sự riêng tư và hài hoà với cảnh quan tự nhiên xung quanh. Ngoài ra, phải có không gian đủ cho cả gia đình với 5 phòng ngủ và các không gian phụ khác. Công trình muốn gắn sự liên hệ và cảm hứng tới kiến trúc truyền thống cũng như vật liệu bền vững.

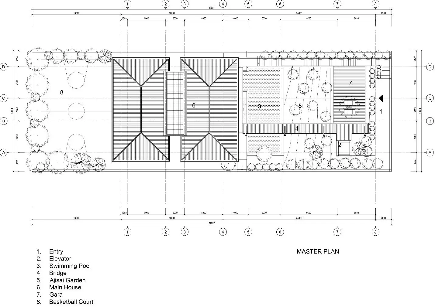
Giải pháp của kiến trúc sư đưa ra là chia toàn bộ khu nhà thành hai phần: khối nhà trên đặt trên độ cao lớn nhất, với một không gian tràn ngập ánh sáng và gió; một khối nhà nằm phía dưới có gara và các chức năng phụ – nơi tiếp cận chính từ con đường phía trước.

Tại đây, một khối thang máy đưa thẳng lên cao và kết nối với nhà chính bằng một cây cầu thép, dẫn dắt một hành trình qua vườn, bể bơi, sân trước và tới nhà. Các khối chức năng đặt trên các bậc cao độ khác nhau cao dần về phía sau kết thúc với một khu vườn kết hợp sân bóng rổ phía cuối khu đất.


Khối nhà chính được xây dựng với kết cấu chính là thép được hoàn thiện với đá, gỗ tự nhiên, kết nối dưới các mái dốc rộng nhằm che chở ngôi nhà khỏi tác động của thời tiết biến động lớn nơi đây. Vật liệu gỗ và mái hiên rộng được lấy cảm hứng từ không gian kiến trúc truyền thống Việt Nam, với các hàng cột và không gian đối xứng. Trục giao thông chính được đặt cân đối giữa nhà cùng các khoảng thông tầng kết nối giữa các tầng và sân trước tới sân sau. Giữa các bậc cao độ công trình lại mở dần tầm nhìn mới kết nối với bối cảnh công trình.

Khối nhà chính được xây dựng bằng kết cấu thép và hoàn thiện với đá và gỗ tự nhiên và mái hiên rộng lấy cảm hứng từ không gian kiến trúc truyền thống Việt Nam

Khu vườn và mái của khối gara được kết nối với nhau, nhằm mở rộng diện tích trồng hoa. Tại đây chủ nhà có không gian để trồng Ajisai, một loại hoa được yêu thích. Từ cầu thang bộ bên cạnh nhà hay từ trên chiếc cầu dẫn vào nhà đều có thể chiêm ngưỡng khu vườn này được.


Với mặt bằng hình vuông và các khoảng giao thông – thông tầng chữ thập cho phép các cạnh dài của ngôi nhà được tiếp cận với ánh sáng và thiên nhiên. Hai khu vườn nhỏ hai bên được kéo dài len lỏi vào giữa nhà tạo sự kết nối không biên giới giữa trong và ngoài, giữa thiên nhiên và con người với nhau. Khoảng trống ở giữa được tối đa hóa, việc bố trí các phòng ngủ quanh khoảng trống tăng sự riêng tư của các phòng cũng như tối ưu số lượng phòng trong nhà.



Các mái lớn và ban công rộng tạo khoảng đệm cho công trình trong khi cho phép thông gió giữa phía trước và sau nhà. Từ trên cao có thể thấy bố cục công trình với các khối vuông vắn được kết nối trên một trục thống nhất.

Với việc sử dụng kết cấu thép và các vật liệu tự nhiên, Ajisai House mang lại thiết kế cân bằng giữa hiện đại và truyền thống. Không chỉ là một nơi để sinh hoạt và nghỉ ngơi, nhà Cẩm Tú Cầu còn tôn vinh nét đẹp của kiến trúc truyền thống Việt Nam.