| DỰ ÁN: | Aunt Four’s House. |
| DIỆN TÍCH: | 263m2. |
| ĐỊA ĐIỂM: | Long An, Việt Nam. |
| KIẾN TRÚC SƯ CHỦ TRÌ: | Nguyen Huu Cong Uan. |
| CÔNG TY: | AHA Architects. |
| NHÓM THIẾT KẾ: | Nguyen Vu Khanh Tran. |
| NHIẾP ẢNH GIA: | Quang Dam. |

Mô tả văn bản do các kiến trúc sư cung cấp. Ngôi nhà là nơi ở của một gia đình ba thế hệ, tọa lạc tại vùng nông thôn Long An , Việt Nam. Nằm dọc theo tuyến đường quốc lộ đông đúc, khu đất này gặp phải hai thách thức đáng kể: tiếng ồn giao thông và bụi mịn từ dòng xe cộ liên tục. Giải pháp thiết kế là tạo ra một hệ thống đệm xanh nhiều lớp, vừa bảo vệ môi trường sống vừa gợi lên tinh thần của nhà vườn truyền thống Nam Bộ.

Đối với khách hàng, ngôi nhà không chỉ là chốn bình yên cho cuộc sống thường nhật mà còn là nơi lưu giữ ký ức. Nó mang đậm dấu ấn của ngôi nhà cũ, nơi cha mẹ đã gắn bó cả cuộc đời và là nơi diễn ra những buổi sum họp sum vầy. Ngôi nhà mới này tái hiện những ký ức ấy, đảm bảo rằng những ngày lễ vẫn là dịp sum họp, tiếng cười và hương vị quen thuộc của những bữa cơm nhà.



Tòa nhà chính nằm sâu trong khuôn viên, để lại một khoảng sân rộng rãi, đóng vai trò như một “vùng đệm xanh” chuyển tiếp. Khu vườn mở này giúp giảm tiếng ồn, lọc bụi và tạo ra một khoảng không gian yên tĩnh trước khi bước vào nhà. Ngôn ngữ kiến trúc được lấy cảm hứng từ truyền thống địa phương: mái ngói đỏ dốc và hiên trước và sau rộng rãi mang lại cả bản sắc thị giác lẫn sự thoải mái về vi khí hậu.

Mặt bằng tầng trệt

Sơ đồ

Tổ chức không gian tuân theo nguyên tắc “mở – đệm – khép kín – mở”. Sân trong, hiên nhà, giếng trời và cửa sổ trần được đan xen để tối đa hóa thông gió chéo và ánh sáng ban ngày, đồng thời vẫn duy trì sự kết nối liền mạch giữa trong nhà và ngoài trời.

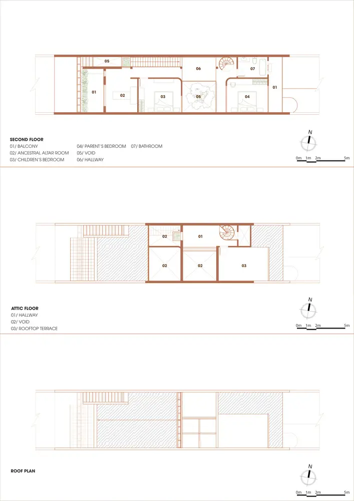
Thay vì bị bó hẹp trong một bố cục cố định, ngôi nhà được tổ chức như một hệ thống không gian linh hoạt, khuyến khích sự tương tác, khám phá và kết nối ở nhiều tầng. Đối với trẻ em – thế hệ nhỏ nhất – ngôi nhà trở nên vừa quen thuộc vừa vui tươi. Phòng ngủ bao gồm gác lửng nhỏ và cầu thang xoắn ốc dẫn lên khu vực sinh hoạt trên tầng thượng, nơi ánh sáng ban ngày được dẫn qua một ô cửa vòm lớn xuống hành lang bên dưới. Thiết kế này không chỉ làm phong phú trải nghiệm thị giác mà còn củng cố kết nối cảm xúc và không gian giữa các tầng khác nhau của ngôi nhà.

Ở trung tâm ngôi nhà, một giếng trời lớn với khu vườn được ví như “trái tim xanh”. Ánh sáng ban mai len lỏi qua tán cây, tạo nên những họa tiết trên sàn nhà, trong khi làn gió mang hương thơm của lá cây vào từng căn phòng. Lõi thẳng đứng này không chỉ tăng cường thông gió và sự thoải mái về âm thanh mà còn tạo cơ hội giao tiếp thân mật, khi các thành viên trong gia đình có thể nhìn thấy và gọi nhau qua các tầng.



Việc lựa chọn vật liệu nhấn mạnh sự ấm áp và độ bền. Gạch đất nung, gỗ và ngói đất sét nung mang lại sự phong phú về xúc giác và hiệu suất nhiệt, trong khi cây xanh bao phủ tòa nhà, làm dịu đi sự hiện diện của nó và duy trì mối liên kết mật thiết với thiên nhiên. Bằng cách kết hợp các hình khối bản địa với các chiến lược thiết kế thụ động, House of Aunt 4 đạt được sự cân bằng giữa truyền thống và hiện đại. Dự án chứng minh cách các giá trị không gian quen thuộc có thể được tái hiện để lưu giữ ký ức văn hóa đồng thời đáp ứng nhu cầu sống đương đại.
