| DỰ ÁN: | Binh Thanh House. |
| DIỆN TÍCH: | 516m2. |
| ĐỊA ĐIỂM: | TP. Hồ Chí Minh, Việt Nam. |
| CÔNG TY: | VTN Artchitects, NISHIZAWAARCHITECTS. |
| NHÓM THIẾT KẾ: | NISHIZAWAARCHITECTS, Sanuki Daisuke, VTN Architects. |
| NHIẾP ẢNH GIA: | Hiroyuki Oki. |

Mô tả bằng văn bản do các kiến trúc sư cung cấp. Tọa lạc tại trung tâm thành phố Hồ Chí Minh, Việt Nam, Nhà Bình Thạnh được thiết kế cho hai gia đình: một cặp vợ chồng ngoài sáu mươi tuổi, con trai của họ, vợ của con trai và một đứa con.

Mảnh đất có tính chất hai mặt đối lập, một mặt hướng ra con phố ồn ào và bụi bặm trong một khu vực đang phát triển và đô thị hóa điển hình của thành phố, mặt khác rất gần kênh đào và Vườn thú Sài Gòn với nhiều cây xanh.

Trong bối cảnh đối lập của môi trường xung quanh, ý tưởng thiết kế ngôi nhà là đáp ứng hai lối sống khác nhau trong khí hậu nhiệt đới: một lối sống hiện đại và tiện nghi với các thiết bị cơ khí như máy điều hòa, và một lối sống tự nhiên và truyền thống, tận dụng ánh sáng và thông gió tự nhiên cùng với nước và cây xanh.

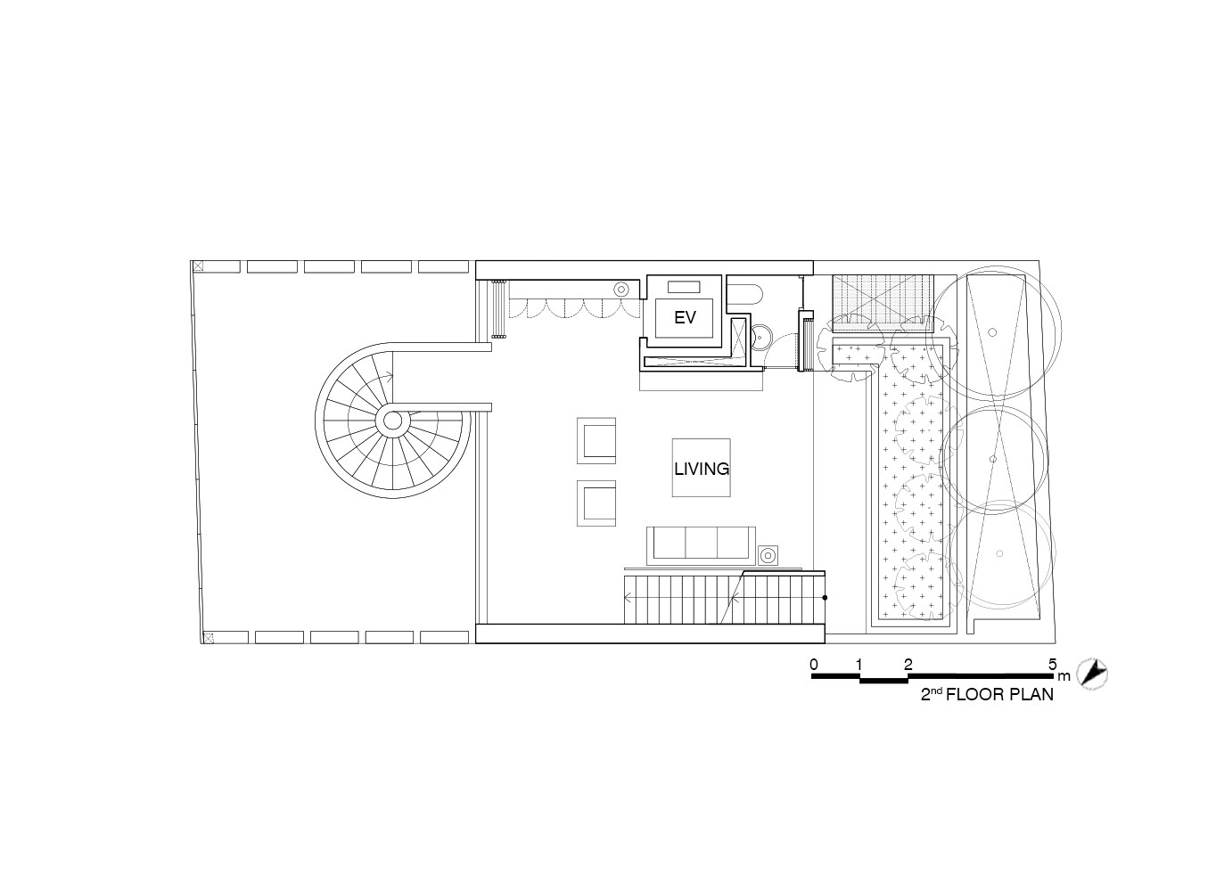
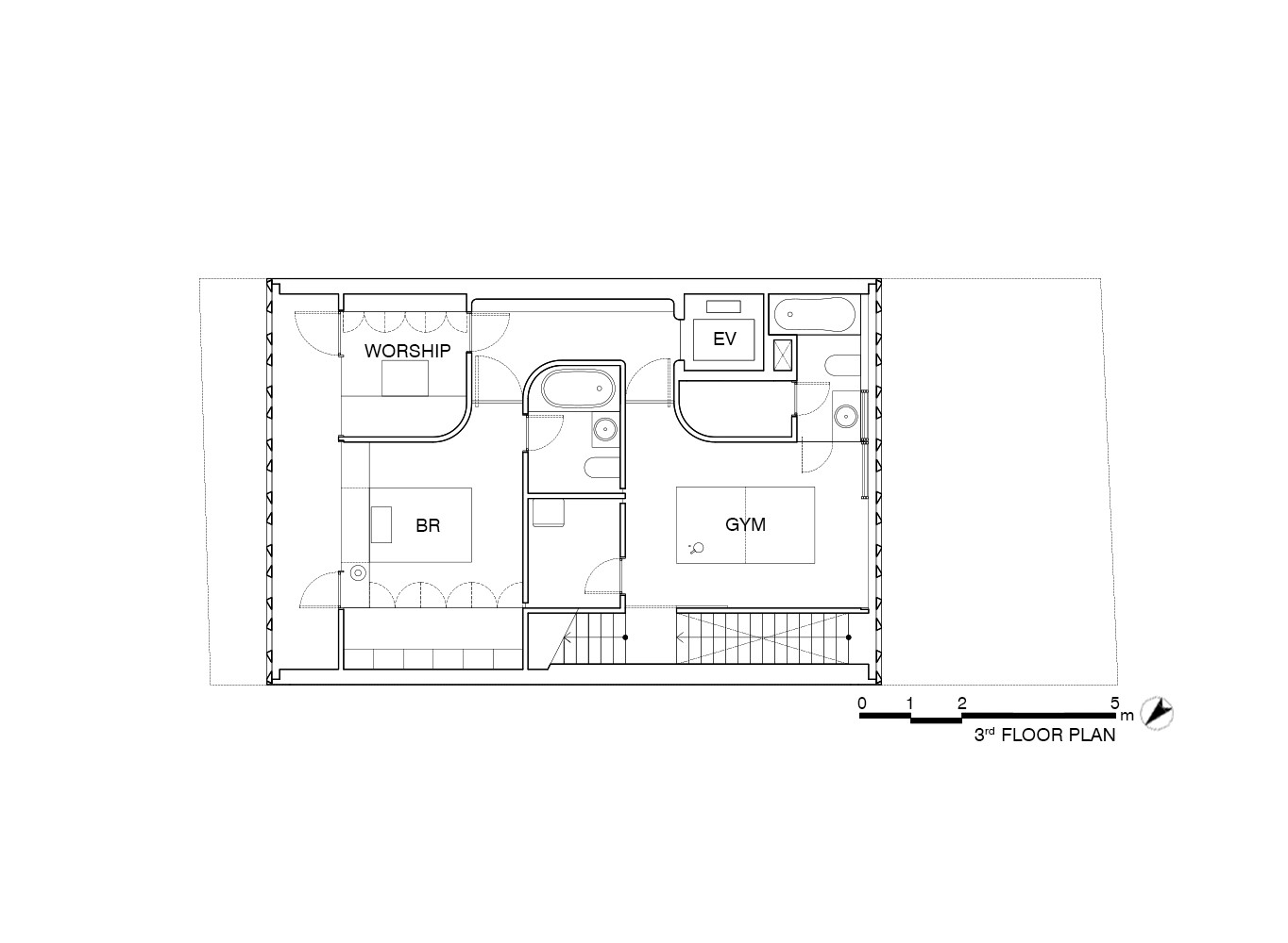
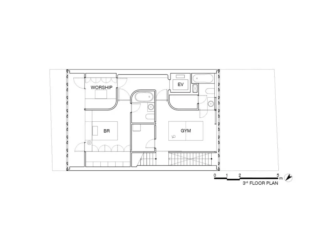
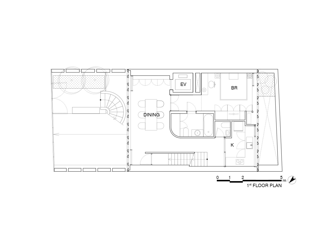
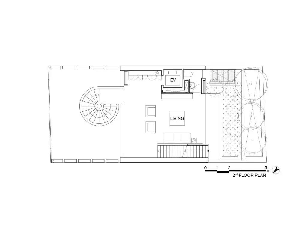
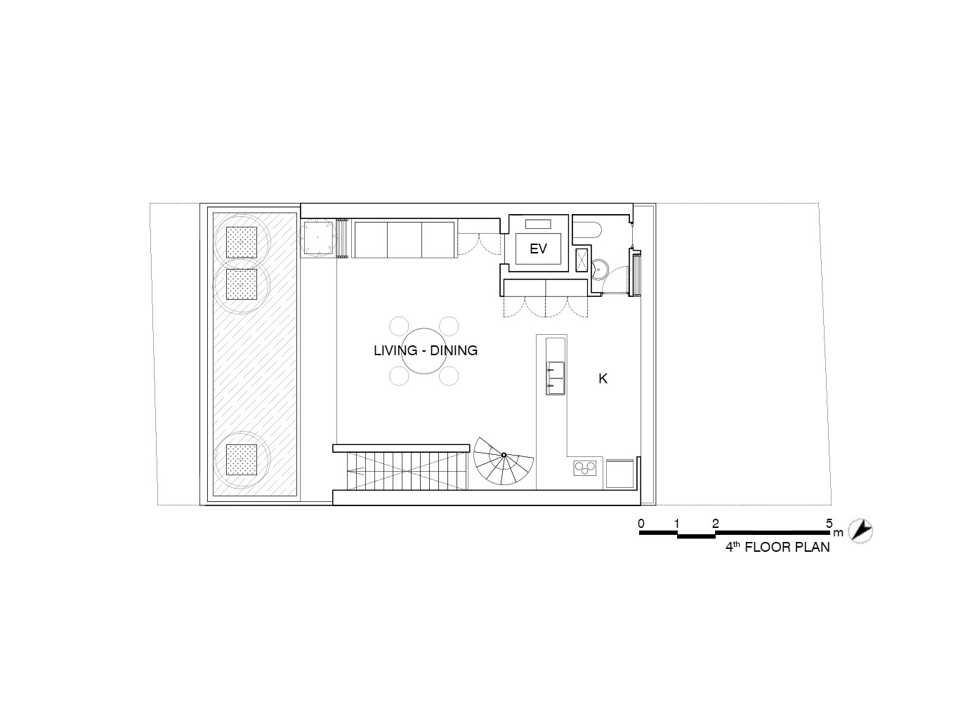
Ngôi nhà được cấu tạo từ hai không gian khác nhau được bố trí xen kẽ. Không gian dành cho lối sống hiện đại được phân bổ trong ba khối nổi được bao bọc bởi các khối bê tông có hoa văn. Và không gian giữa ba khối này được mở rộng ra bên ngoài, dành cho lối sống gần gũi với thiên nhiên, nơi cư dân có thể tận hưởng gió, ánh nắng mặt trời, cây xanh và nước.

Ba khối kiến trúc được dịch chuyển qua lại để đưa ánh sáng tự nhiên vào các không gian xen kẽ, cũng như tạo ra những khu vườn nhỏ trên mỗi tầng. Phần đáy của các khối kiến trúc trở thành trần nhà cho các không gian xen kẽ. Các bề mặt này được thiết kế với nhiều hình dạng cong khác nhau, mang lại hiệu ứng ánh sáng khác nhau cho mỗi không gian xen kẽ.

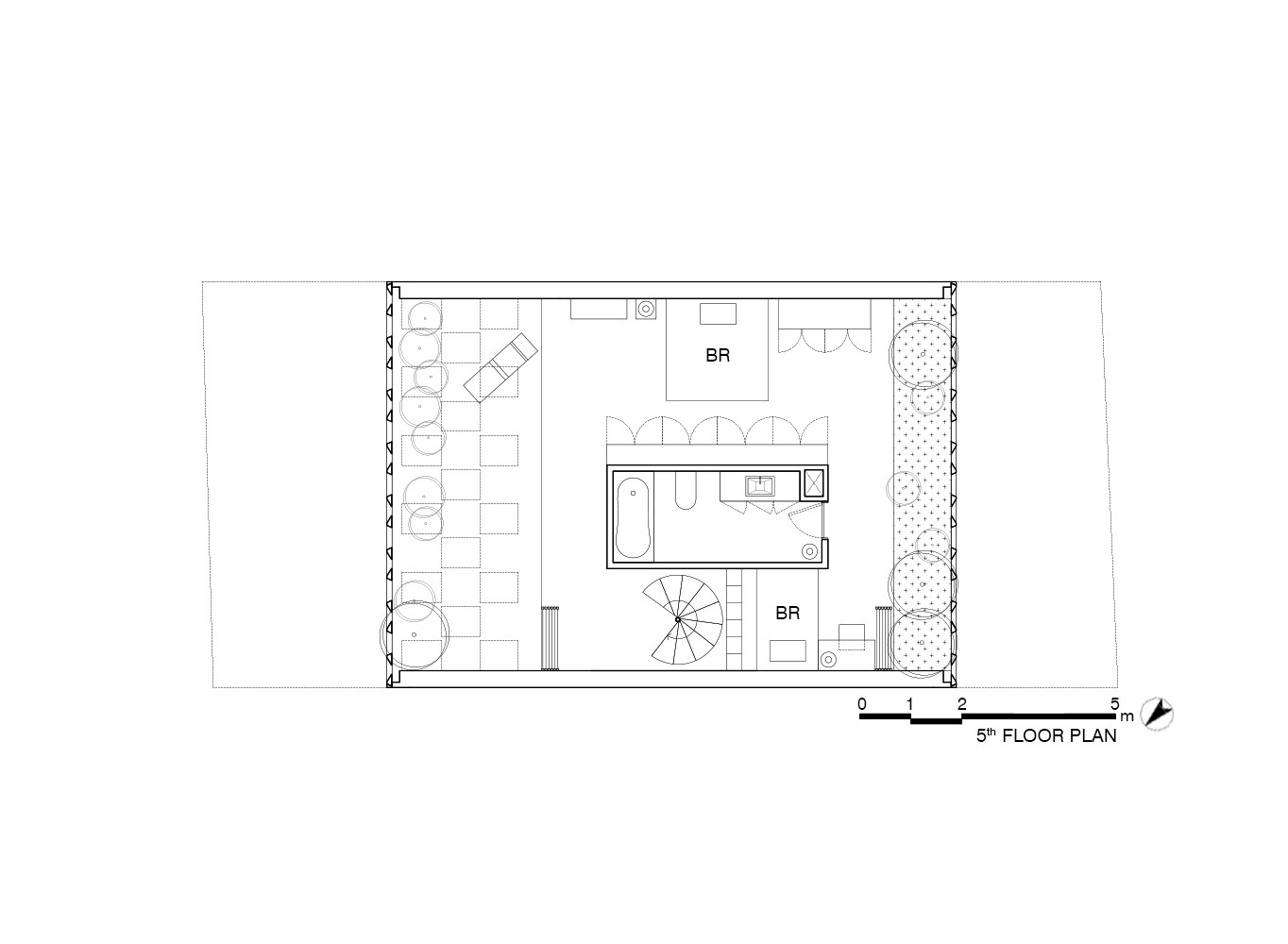
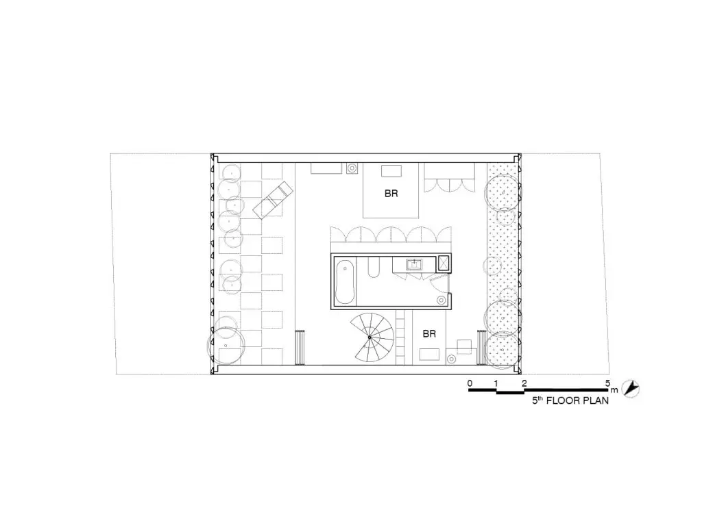
Phòng ngủ và các phòng nhỏ khác được bố trí trong các khối bán khép kín nổi để tăng cường an ninh và sự riêng tư. Mặt khác, các không gian mở ở giữa được thiết kế để trở thành không gian sống độc lập cho hai gia đình.

Các tấm chắn nắng dạng khối, từng là giải pháp che nắng phổ biến ở Việt Nam để tạo sự thông gió tự nhiên, được làm từ bê tông đúc sẵn với chiều rộng 60cm và chiều cao 40cm. Chúng không chỉ chắn được ánh nắng gay gắt và mưa lớn mà còn tăng cường sự riêng tư và an toàn.

Mặc dù ngôi nhà này trông khác biệt so với những ngôi nhà phố điển hình ở Thành phố Hồ Chí Minh, nhưng tất cả các giải pháp kiến trúc đều bắt nguồn từ lối sống và trí tuệ địa phương. Ngôi nhà mang đến một cách diễn giải về lối sống sinh thái trong một thành phố nhiệt đới hiện đại. Nơi đây, cuộc sống hiện đại và cuộc sống tự nhiên cùng tồn tại hài hòa.

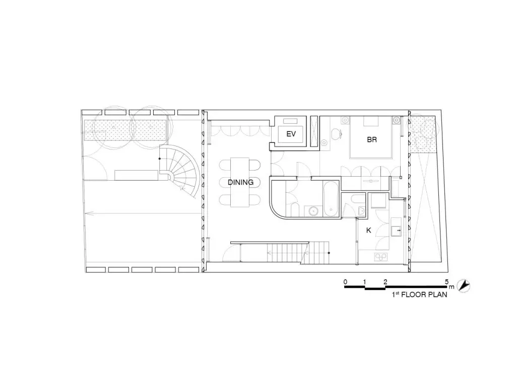
Sơ đồ mặt bằng tầng một