| DỰ ÁN: | Cải tạo văn phòng nhà máy. |
| DIỆN TÍCH: | 486m2. |
| ĐỊA ĐIỂM: | TP. Hồ Chí Minh, Việt Nam. |
| KIẾN TRÚC SƯ CHỦ TRÌ: | Võ Trọng Nghĩa, Masaaki Iwamoto. |
| CÔNG TY: | VTN Artchitects. |
| NHÓM THIẾT KẾ: | Kuniko Onishi, Nguyen Viet Hung. |
| NHIẾP ẢNH GIA: | Hiroyuki Oki. |

Mô tả dự án do các kiến trúc sư cung cấp. Đây là dự án cải tạo nhà máy của Công ty TNHH Việt Vương, một doanh nghiệp may mặc đặt tại Thành phố Hồ Chí Minh , Việt Nam. Ngành dệt may là một trong những ngành công nghiệp lớn nhất cả nước, với hơn 4.000 nhà sản xuất may mặc hoạt động chủ yếu phục vụ thị trường xuất khẩu. Mục tiêu của dự án là định hình lại bản sắc của công ty thông qua cải tạo để nổi bật so với các đối thủ cạnh tranh.

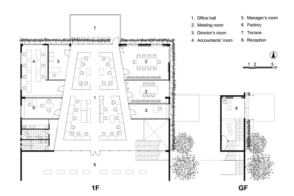
Sơ đồ mặt bằng
Nhà máy hiện tại là một tòa nhà thép hai tầng (25m x 90m). Việc cải tạo tập trung vào hai khu vực, một khu ở tầng trên dành cho văn phòng hành chính và một khu nhỏ khác ở tầng trệt dành cho khu tiếp tân. Phần diện tích còn lại được giữ nguyên cho hoạt động sản xuất, vốn vẫn được duy trì ngay cả trong suốt thời gian xây dựng.

Ý tưởng thiết kế là tạo ra sự tương phản ấn tượng giữa nhà máy hiện có và văn phòng mới nhằm nhấn mạnh môi trường nhà máy được quản lý tốt và sự năng động của nó, ví dụ như cảnh tượng 1.200 công nhân lành nghề đang may rất nhiều quần áo trượt tuyết trong điều kiện khí hậu nhiệt đới. Không gian văn phòng hành chính trung tâm được thiết kế như một hành lang. Bằng cách mở một cửa sổ lớn trên mặt tiền hiện có, hành lang này mang lại tầm nhìn bao quát vào không gian nhà máy vốn trước đây hầu hết bị bao kín. Hệ thống kính lớn giữa nhà máy và văn phòng giúp tăng cường sự giao tiếp giữa nhân viên hành chính và công nhân nhà máy.

Các phòng kín, chẳng hạn như phòng giám đốc và phòng họp, được bố trí dọc theo các lối đi của không gian văn phòng trung tâm. Những phòng này và văn phòng được ngăn cách bởi các vách kính trong suốt, trưng bày các sản phẩm và mẫu của công ty giống như cửa sổ trưng bày. Các vách kính này được đặt nghiêng trên mặt bằng để tạo ra các phòng có kích thước khác nhau phía sau chúng khi cần thiết. Trần của văn phòng trung tâm cũng được nghiêng từ phía nhà máy ra phía ngoài để giảm thể tích không gian điều hòa cũng như khuếch đại hiệu ứng phối cảnh.

Các vật liệu địa phương được sử dụng xuyên suốt dự án, chẳng hạn như gạch lộ thiên và tre, để thể hiện bản sắc địa phương và ý thức bảo vệ môi trường. Trần nhà bằng tre dẻo, che giấu các thiết bị cơ khí và đèn chiếu sáng, được thiết kế cho không gian văn phòng trung tâm để mô phỏng bề mặt dệt. Một phần của trần tre này kéo dài xuống tầng trệt và trở thành trần của khu vực lễ tân để chào đón khách.

Dây thép không gỉ được gắn vào mặt tiền hiện có và được phủ kín bởi hoa giấy. Các vật liệu tự nhiên ấm áp và cây xanh tạo nên sự tương phản rõ rệt với kết cấu thép hiện có của nhà máy.