| DỰ ÁN: | Coalimex. |
| DIỆN TÍCH: | 10000m2. |
| ĐỊA ĐIỂM: | Hà Nội, Việt Nam. |
| KIẾN TRÚC SƯ CHỦ TRÌ: | G8A Architecture & Urban Planning. |
| CÔNG TY: | G8A Architecture & Urban Planning. |
| NHÓM THIẾT KẾ: | G8A Architecture & Urban Planning. |
| NHIẾP ẢNH GIA: | Régis Golay. |

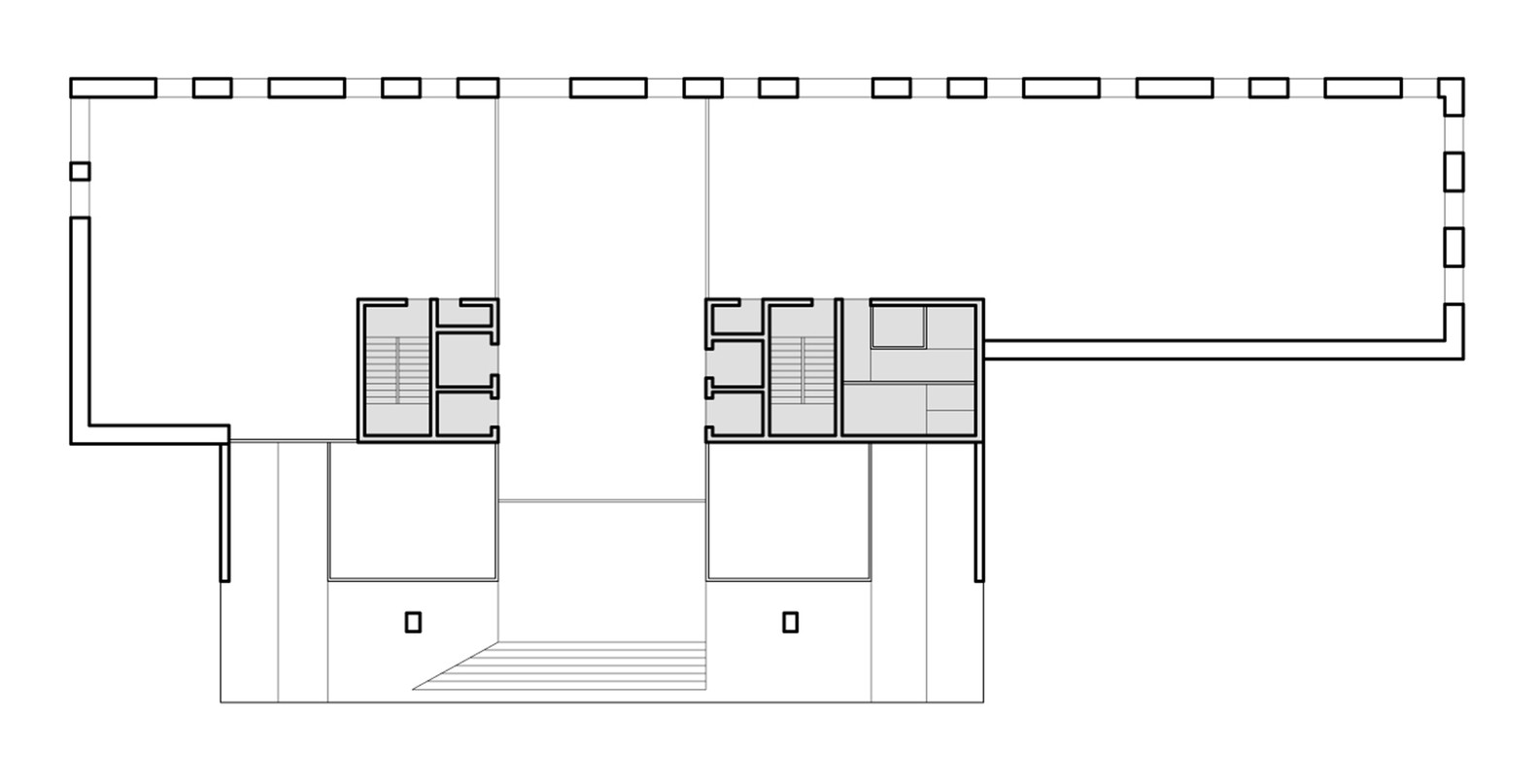
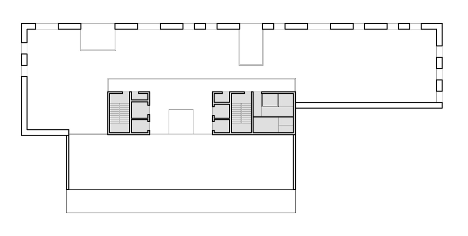
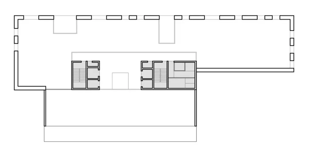
Mô tả công trình do các kiến trúc sư cung cấp. Tòa nhà Coalimex là một tòa nhà văn phòng có diện tích khoảng 10.000m2, gồm 10 tầng thương mại và văn phòng. Tọa lạc tại số 33 đường Tràng Thị, trung tâm khu phố cổ Hà Nội , tòa nhà này nằm giữa nhiều trung tâm thương mại và di tích lịch sử. Bối cảnh đô thị đông đúc cùng với mong muốn tạo ra một công trình thân thiện với môi trường đặt ra nhiều vấn đề: quản lý tiếng ồn, tối ưu hóa tầm nhìn, nguyên tắc thông gió tự nhiên và làm thế nào để trở thành một công trình mang tính biểu tượng, tôn trọng khu vực xung quanh.

Để tạo ra một phương thức tổ chức văn phòng bền vững, mỗi tầng phải linh hoạt và được chia thành nhiều không gian văn phòng khác nhau với diện tích khác nhau. Bằng cách này, tòa nhà hẹp vẫn có thể cung cấp nhiều khu vực và không gian khác nhau. Mặt tiền được điều chỉnh phù hợp với các bối cảnh khác nhau của khu đất. Mặt tiền chính, tiếp xúc trực tiếp với đường phố, tạo nên bản sắc mạnh mẽ cho tòa nhà Coalimex và giải quyết được những hạn chế của nó. Mặt tiền này được làm bằng kính hai lớp. Trên lớp thứ hai, một họa tiết được in trên kính, thể hiện sự giao thoa giữa cây xanh trên đường phố Hà Nội và than đá (biểu tượng của chủ đầu tư).

Mật độ các đường kẻ cho phép ánh sáng mặt trời chiếu xuyên suốt tòa nhà và mang lại sự riêng tư hơn cho không gian văn phòng. Lớp này giúp chắn tiếng ồn từ đường phố; tạo ra sự thông gió tự nhiên hiệu quả và bảo vệ tòa nhà khỏi mưa. Mặt tiền phía sau, đối mặt với bối cảnh hoàn toàn khác, được tạo thành từ các dãy cửa sổ và hành lang có mái che, tạo nên một mạng lưới giúp kiểm soát khoảng cách cực kỳ gần với tòa nhà kế bên. Các hành lang có mái che đóng vai trò như những khu vườn trong nhà; chúng mang lại sự “thư giãn” thực sự cho người sử dụng, đưa không gian bên ngoài vào trong và cung cấp sự thông gió tự nhiên cho không gian văn phòng.
