Dự án
Studio
Suppliers
Creators
Tin tức
Mẫu thiết kế
mới
Xu hướng thiết kế nội thất 2026
Tin tức
Tư vấn
Podcast
Đăng nhập
Đăng ký
Design & Build Planning
Dự án
Studio
Suppliers
Creators
Tin tức
Mẫu thiết kế
mới
Xu hướng thiết kế nội thất 2026
Tin tức
Tư vấn
Tin nổi bật
Căn hộ
Nhà phố
Penthouse
Tin nổi bật
Xu hướng
Tin nổi bật
Báo giá
Mua sắm
Nhà thầu
Pháp lý
Phong thủy
Podcast
Đăng nhập
Đăng ký
Design & Build Planning
Trang Chủ
Dự án
Nhà Ở
,
Nhà Phố
Connect Villa
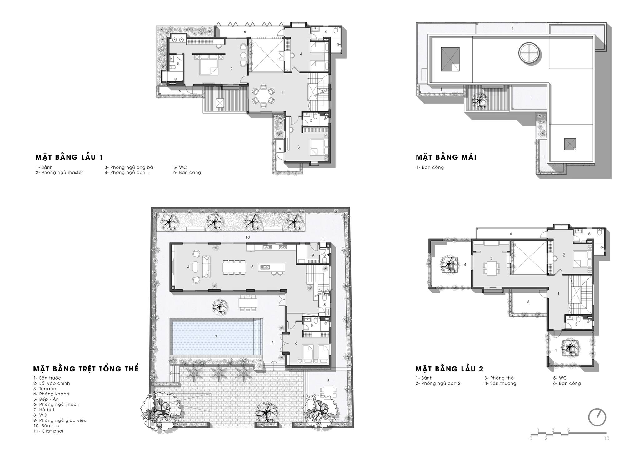
DỰ ÁN:
Connect Villa.
DIỆN TÍCH:
525m2.
ĐỊA ĐIỂM:
Bình Dương
,
Việt Nam
.
CÔNG TY:
Story Architecture
.
NHÓM THIẾT KẾ:
Story Architecture.
NHIẾP ẢNH GIA:
Minq Bui
.
Chia sẻ bài viết này
Sao chép liên kết bài viết
Các dự án khác của Story Architecture
Nhà Ở
Nhà Phố
Nhà Anh Bảo: Giải pháp thiết kế tinh tế cho gia đình trẻ với ba con nhỏ
119
Nhà Phố
HUU TU House
43
Biệt Thự
Villa Connect
52
House 3,5 x 17
32
Nhà Phố
Dinh House
42
Nhà Anh Kiên
11
Nhà Phố
Alone House
143
Nhà Phố
Gather House
50
Nhà Phố
Connect House
50
X
Loading...
×
Ask Dezon
Ask Dezon
Clear chat
×
Phong cách này là gì?
Giá thiết kế dự án này?
Giá thi công dự án này?
Thời gian thiết kế bao lâu?
Thời gian thi công bao lâu?
Vật liệu này là gì?
×