| DỰ ÁN: | Đàm lộc House. |
| DIỆN TÍCH: | 52m2. |
| ĐỊA ĐIỂM: | Việt Nam. |
| KIẾN TRÚC SƯ CHỦ TRÌ: | Lê Quang Vinh. |
| CÔNG TY: | V+Studio. |
| NHÓM THIẾT KẾ: | V+Studio. |
| NHIẾP ẢNH GIA: | Triệu Chiến. |

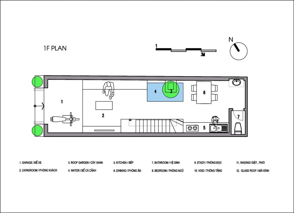
Mô tả bằng văn bản do kiến trúc sư cung cấp. Với diện tích đất 52 m2, đây là kiểu nhà ống điển hình ở Việt Nam. Chiều rộng là 4m và chiều dài là 13m. Theo thiết kế địa phương, cầu thang sẽ được đặt ở giữa mặt tiền. Tầng một sẽ là gara, phòng khách, phòng ăn, bếp và nhà vệ sinh sẽ được bố trí dưới cầu thang, cạnh tầng trệt là phòng ngủ với hai nhà vệ sinh và một nhà vệ sinh ở giữa.

Ưu điểm của kiểu thiết kế này là dễ dàng tận dụng thêm không gian phòng ngủ. Nhược điểm là không gian không được sạch sẽ, các phòng sẽ dùng chung với gara… làm mất đi sự sang trọng và sạch sẽ.

Ngay cạnh cầu thang giữa nhà và nhà vệ sinh là một khoảng tối nhỏ, thiếu ánh sáng tự nhiên. Phòng ăn và nhà bếp hẹp cũng thiếu ánh sáng tự nhiên, dẫn đến tình trạng mất vệ sinh.

Vì vậy, với thiết kế này, kiến trúc sư đã thay đổi hướng cầu thang để thu hẹp không gian bên hông nhằm dành chỗ cho cây xanh và bể cá cảnh.

Phòng khách của ngôi nhà được lấy cảm hứng từ khung cảnh yên bình của một ngôi làng ở Việt Nam (mỗi làng đều có một cây cổ thụ lớn, dưới gốc cây là một quán trà nhỏ nơi khách dừng chân khi rời khỏi làng và là nơi tụ họp của người dân trong làng khi họ đi làm, nơi trẻ em chơi đùa, ngồi dưới gốc cây nghỉ ngơi và kể cho nhau nghe những câu chuyện về cuộc sống, công việc đồng áng).

Bên cạnh nhà bếp và phòng ăn, phòng ăn được thiết kế cho gia đình khoảng 4 người với 2 ghế có tựa lưng và 1 ghế phía trước không có tựa lưng để bạn có thể ngồi thoải mái dựa vào tường đọc sách, ngắm cây cối và cá bơi lội.

Trên tầng 2 của ngôi nhà có 2 phòng ngủ với nhiều ánh sáng tự nhiên và cửa sổ có thể mở ra để ngắm nhìn những hàng cây phía trước.

Tầng 3 là nơi thờ cúng của gia đình và cũng là nơi làm việc của gia đình, tràn ngập cây xanh và ánh sáng tự nhiên. Mặt tiền bên ngoài ngôi nhà sử dụng loại gạch thông gió phổ biến ở Việt Nam vào những năm 1980 và 1990. Loại gạch này được làm từ bê tông.

Hiện nay, nó được tái sử dụng nhờ những đặc tính hữu ích, phù hợp với cuộc sống hiện đại ở khu vực đô thị với các hộ gia đình nhỏ độc lập, cũng như đảm bảo an ninh bên ngoài, che mưa nhưng vẫn đảm bảo thông gió tự nhiên. Nhưng ưu điểm lớn nhất của nó là ánh sáng xuyên qua các khe hở tạo ra những cảm xúc rất đặc biệt.

Nhờ thay đổi kiến trúc, những ngôi nhà ống tối tăm, nóng bức hiện nay ở Việt Nam đã được biến đổi thành những ngôi nhà tràn ngập ánh sáng và cây xanh, đồng thời gợi lên cảm xúc khi sinh sống. Không gian sử dụng rộng rãi hơn so với các nhà xung quanh và chi phí xây dựng cũng khá khiêm tốn, khoảng 35.000 USD.