| DỰ ÁN: | HN08 House. |
| DIỆN TÍCH: | 166m2. |
| ĐỊA ĐIỂM: | Hà Nội, Việt Nam. |
| KIẾN TRÚC SƯ CHỦ TRÌ: | Bùi Quang Tiến. |
| NHÀ THẦU THI CÔNG: | TNT Architecture. |
| CÔNG TY: | TNT Architecture. |
| NHÓM THIẾT KẾ: | Hoàng Phương Nam, Phạm Như Tâm, Trần Bá Quân, Lương Thị Hồng Nhung, Nguyễn Đức Hậu, Lê Hữu Phong, Ngô Văn Nhật. |
| NHIẾP ẢNH GIA: | Triệu Chiến. |


Mô tả văn bản do các kiến trúc sư cung cấp. Trong một thành phố nơi không gian xanh ngày càng bị bê tông và bụi bặm xâm chiếm, khách hàng – mong muốn con cái mình được lớn lên gần gũi hơn với thiên nhiên – đã hình dung ra một ngôi nhà khiêm tốn nhưng đầy ý nghĩa. HN08 House nổi lên như một nơi nghỉ dưỡng yên bình, rộng mở đón cây xanh, ánh sáng và không khí trong lành, đồng thời vẫn đáp ứng nhu cầu của một gia đình ba thế hệ.

Những đặc điểm không gian truyền thống được tái hiện thông qua bố cục nhiều lớp gồm hiên nhà, sân trong và khoảng trống, mở rộng và kết nối các không gian. Những lớp chuyển tiếp này – từ ngoài vào trong, từ tầng trệt lên tầng trên – tạo nên một thể thống nhất liền mạch, nơi kiến trúc và cảnh quan hòa quyện một cách liền mạch. Tại trung tâm của ngôi nhà, lõi thẳng đứng đóng vai trò như một “lá phổi”, hút ánh sáng và gió vào sâu bên trong, đồng thời kết nối tất cả các tầng về mặt thị giác và không gian.



Điểm đặc biệt nhất của HN08 House chính là khu vườn phía trước được nâng cao – một mảng xanh thoai thoải dốc xuống sân chơi bên dưới, tạo thành một lối vào vững chắc, ngăn cách ngôi nhà khỏi tiếng ồn và sự lộn xộn thị giác xung quanh. Khu vườn này không chỉ đóng vai trò là ngưỡng cửa mà còn là “trái tim” của ngôi nhà, mang đến một không gian yên tĩnh, nơi các thành viên trong gia đình có thể thư giãn, nghỉ ngơi và kết nối với thiên nhiên.

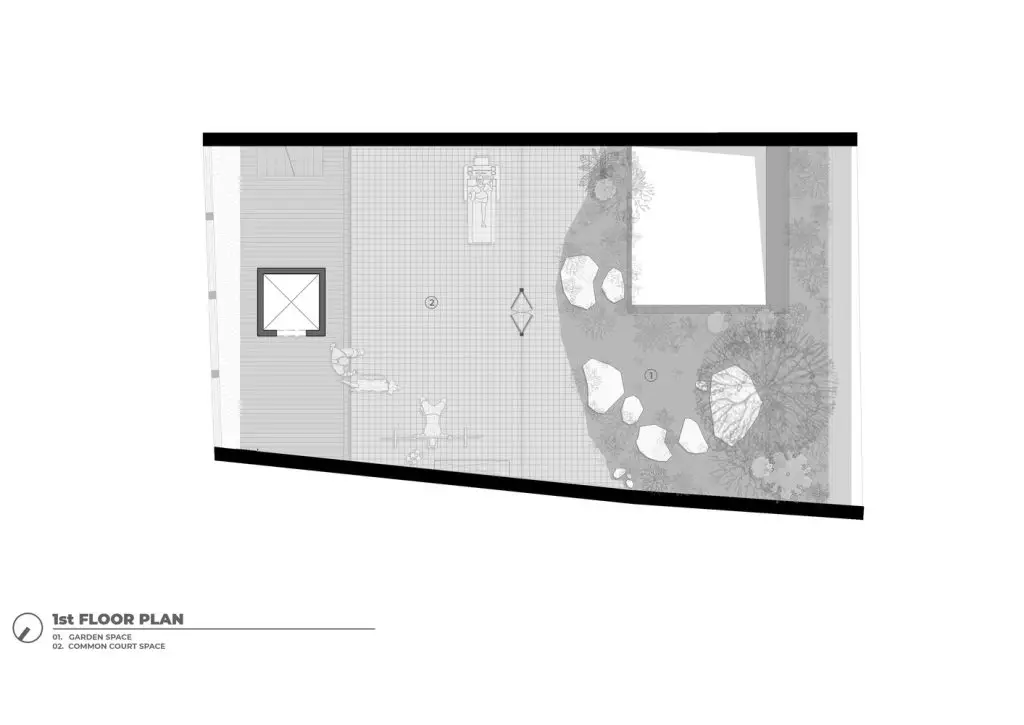
Mặt bằng tầng 1

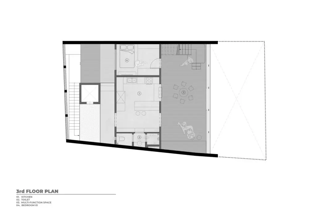
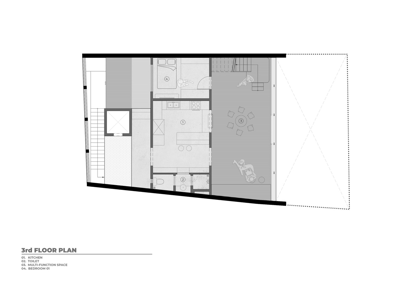
Mặt bằng tầng 3

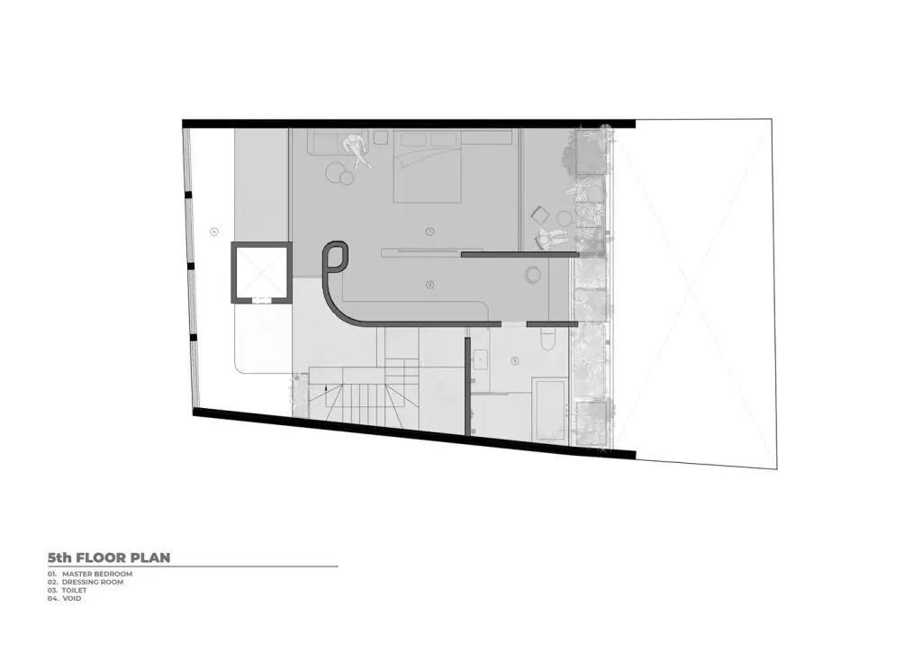
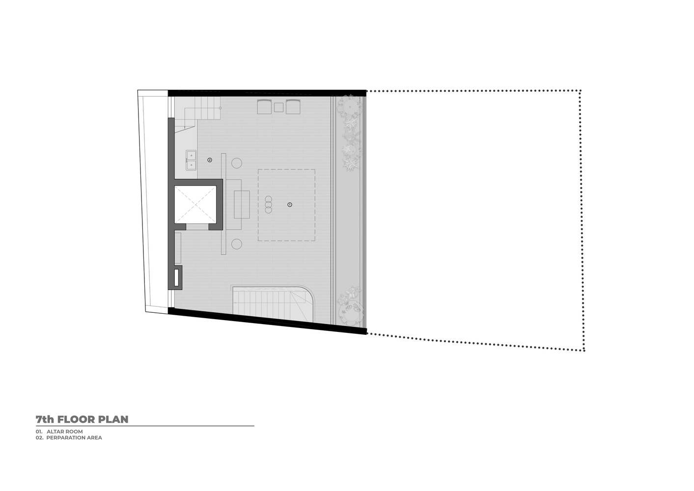
Mặt bằng tầng 5
Tầng một là sân chơi liền kề với khu vườn dốc và một hiên gỗ gợi nhớ đến tinh thần sống truyền thống Việt Nam – một không gian mở, chung cho trẻ em vui chơi và các hoạt động gia đình. Tầng hai có khu vực trà và tiếp tân kết nối trực tiếp với khu vườn và khoảng trống trung tâm, cho phép ánh sáng ban ngày và thông gió dồi dào, đồng thời vẫn đảm bảo sự riêng tư nhờ các tấm kính hai lớp có thể đóng mở.


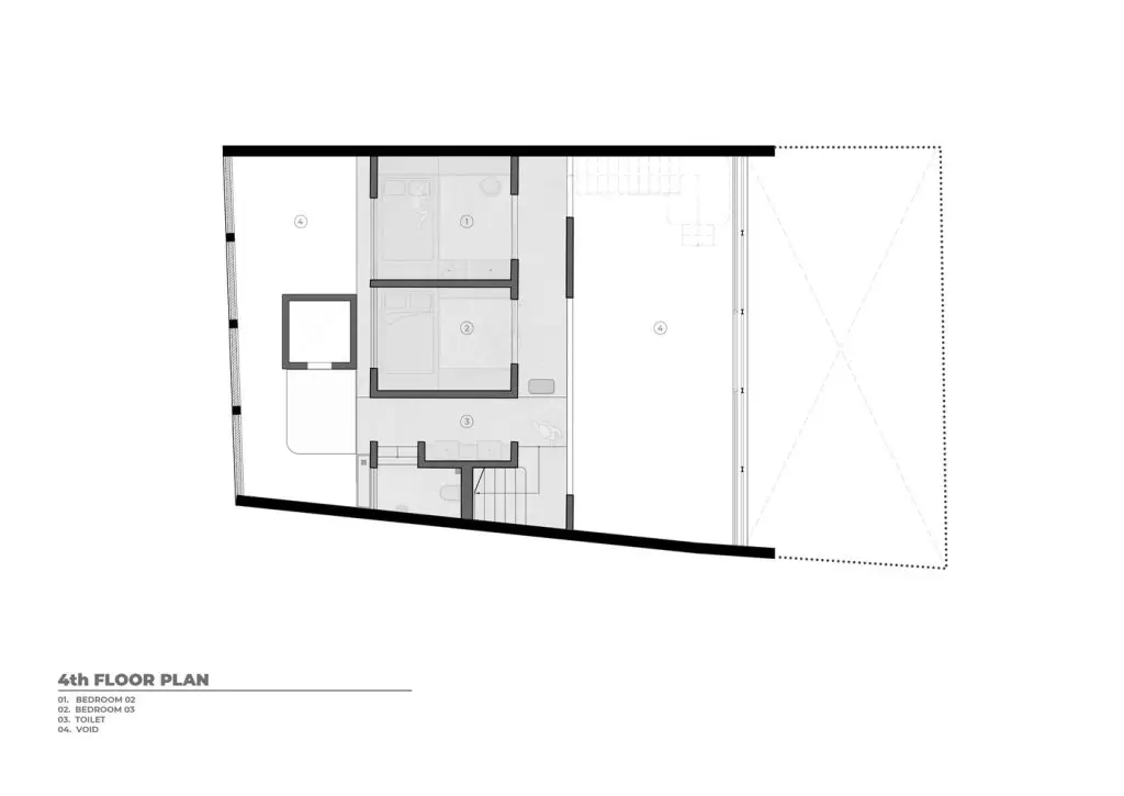
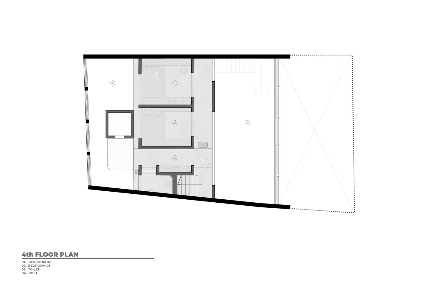
Tầng ba và tầng bốn là nơi bố trí các chức năng sinh hoạt chính, bao gồm phòng khách gia đình, bếp, phòng ngủ và phòng tắm chung. Các không gian này được bố trí xung quanh giếng trời để tạo sự kết nối và tính liên tục về mặt thị giác giữa các tầng. Mặt tiền sử dụng hệ thống kính hai lớp và cửa chớp tự động điều chỉnh ánh sáng mặt trời, nhiệt độ và luồng không khí tự nhiên.


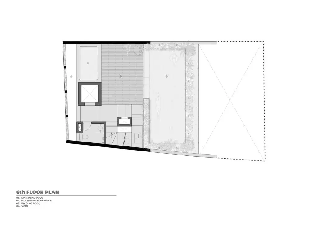
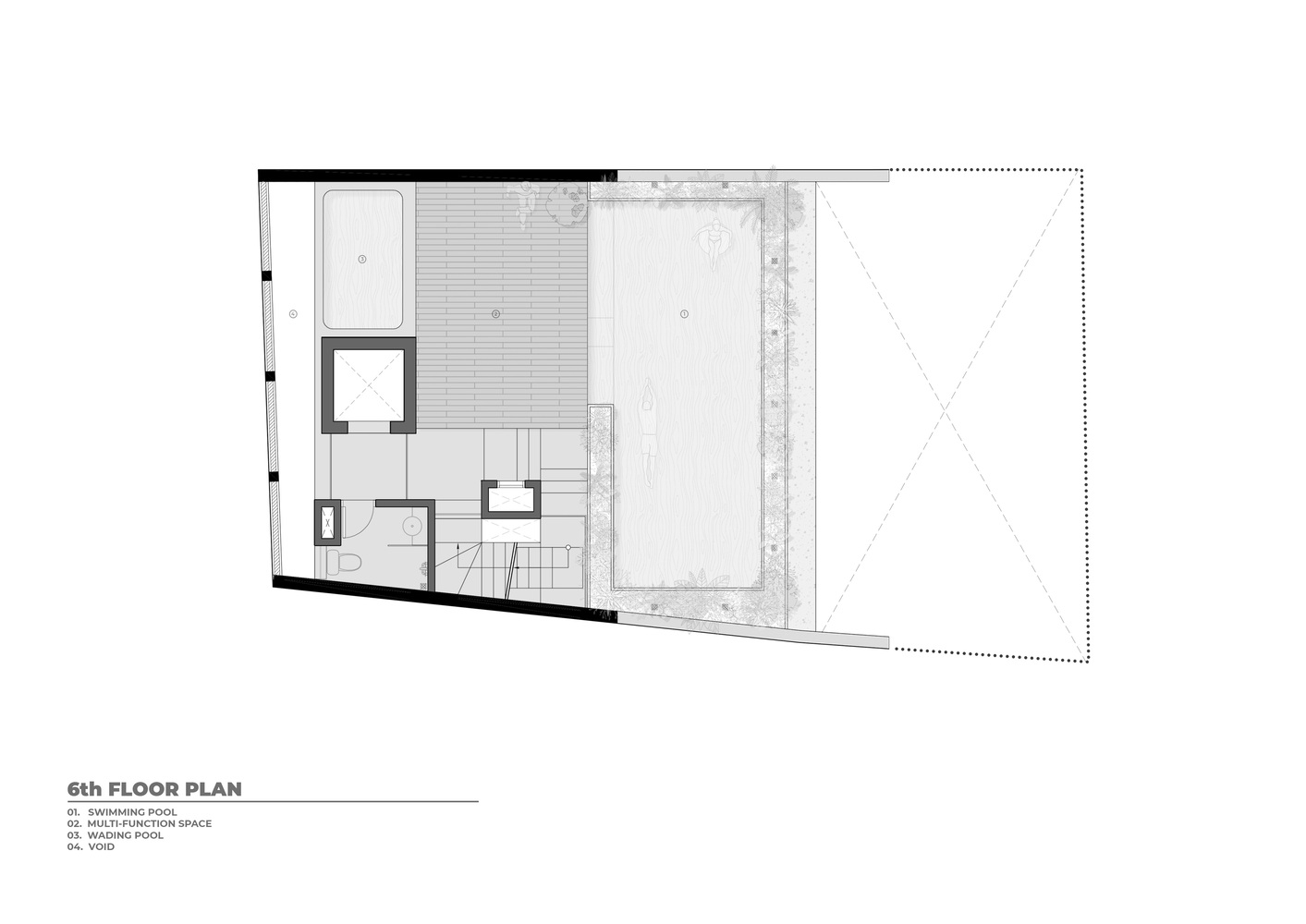
Phòng ngủ chính ở tầng năm tận dụng cả mặt tiền và khoảng không trung tâm, tạo nên một không gian nghỉ ngơi yên tĩnh, thoải mái cho chủ nhà. Tầng sáu được thiết kế như một không gian sinh hoạt chung mở với sàn gỗ ngoài trời và hồ bơi lớn được bao quanh bởi cây xanh tạo sự riêng tư, cùng với một hồ bơi nhỏ hơn dành cho trẻ em.

Tầng bảy dành riêng cho không gian thờ cúng của gia đình, được bố trí nổi bật ở mặt tiền với vách gỗ và cửa kính mở – cân bằng giữa sự trang nghiêm và sự hài hòa trong tổng thể kiến trúc. Phía trên, sân thượng là nơi bố trí các chức năng kỹ thuật cùng một khu vườn rau nhỏ. Tầng trên cao này mở ra tầm nhìn bao quát thành phố xung quanh và mang đến một không gian nghỉ ngơi yên bình, hòa mình vào thiên nhiên cho gia đình.

Thông qua sự kết hợp giữa cây xanh, ánh sáng và thông gió trong cấu trúc không gian nhiều lớp, HN08 House thể hiện sự cân bằng giữa cuộc sống đô thị hiện đại và tinh thần văn hóa địa phương – mang đến một nơi ở thanh bình, gần gũi với thiên nhiên ngay giữa lòng thành phố.
