House in Thuan Hoa

  • Dự án: House in Thuan Hoa.
  • Diện tích: 163m2.
  • Địa điểm: Huế, Việt Nam.
  • Kiến trúc sư chủ trì: 3fconcept.
  • Studio: 3fconcept.
  • Nhóm thiết kế: 3fconcept.
  • Ảnh chụp: Nguyễn Đăng Hiếu.

Mô tả văn bản do các kiến ​​trúc sư cung cấp. Nhà ba gian, hai chái là một đặc trưng của kiến ​​trúc nông thôn truyền thống Việt Nam. Tên gọi phản ánh cấu trúc của nó: ba gian giữa ( gian ), với gian giữa dùng làm nơi tiếp khách và thờ cúng tổ tiên, và hai gian bên hông dùng làm phòng ngủ hoặc phòng khách. Hai bên sảnh chính là hai chái nhỏ hơn ( gái ), thường được dùng làm bếp, kho chứa đồ, hoặc phòng ngủ phụ.

Kiểu nhà này đã tồn tại hàng thế kỷ, ăn sâu vào văn hóa và khí hậu địa phương, nhưng nó bộc lộ một số hạn chế nhất định trong bối cảnh cuộc sống hiện đại: thiếu ánh sáng tự nhiên, thiếu sự riêng tư, phân chia không gian không còn phù hợp với lối sống đương đại và khó khăn trong việc tích hợp các tiện nghi hiện đại.

Từ những thách thức này, chúng tôi đã tìm kiếm một thiết kế giữ được tinh thần của ngôi nhà ba gian, hai chái đồng thời điều chỉnh cho phù hợp với nhu cầu hiện tại: đơn giản, tiết kiệm chi phí và có thể mở rộng cho nhà ở nông thôn trên khắp Việt Nam.

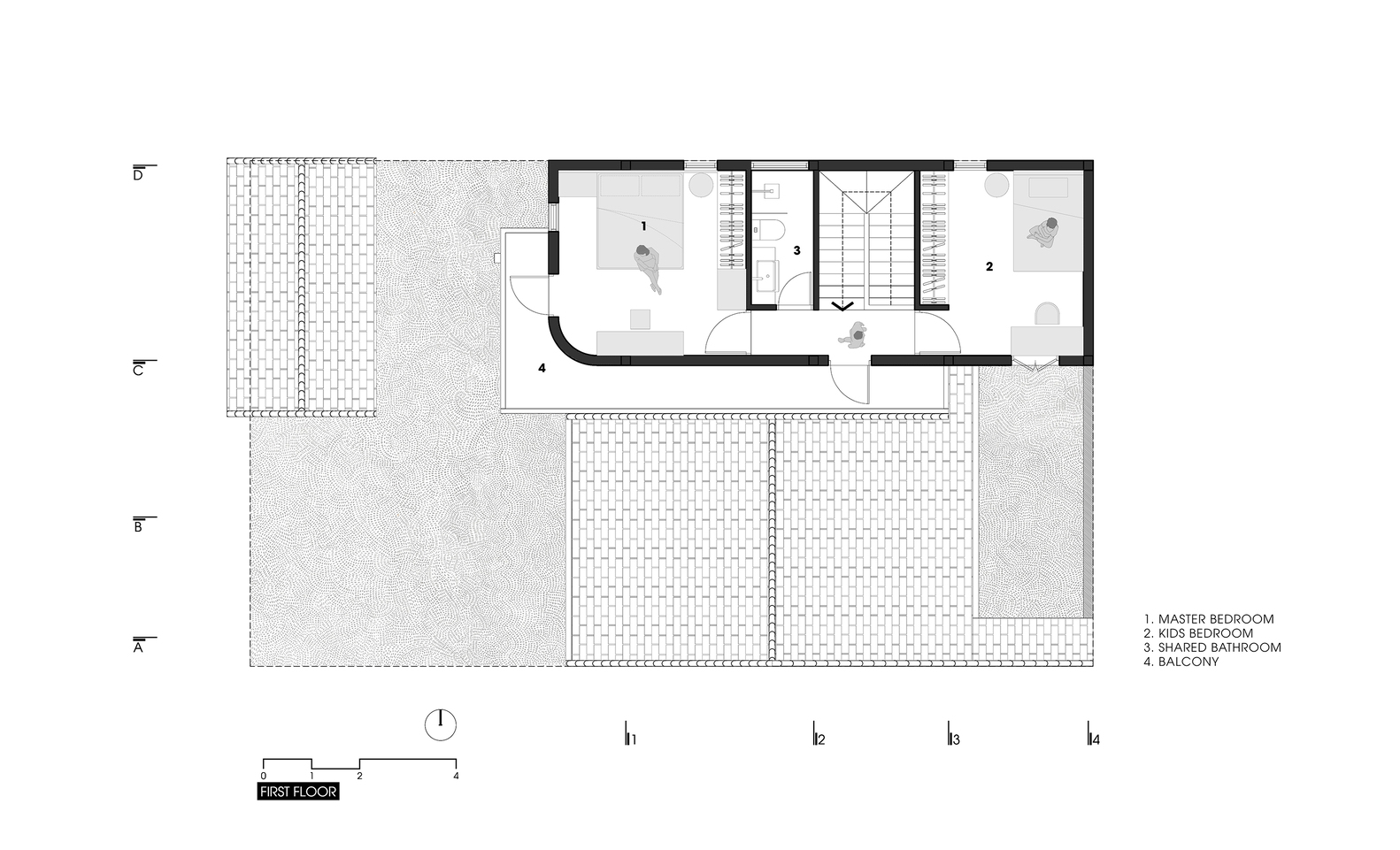
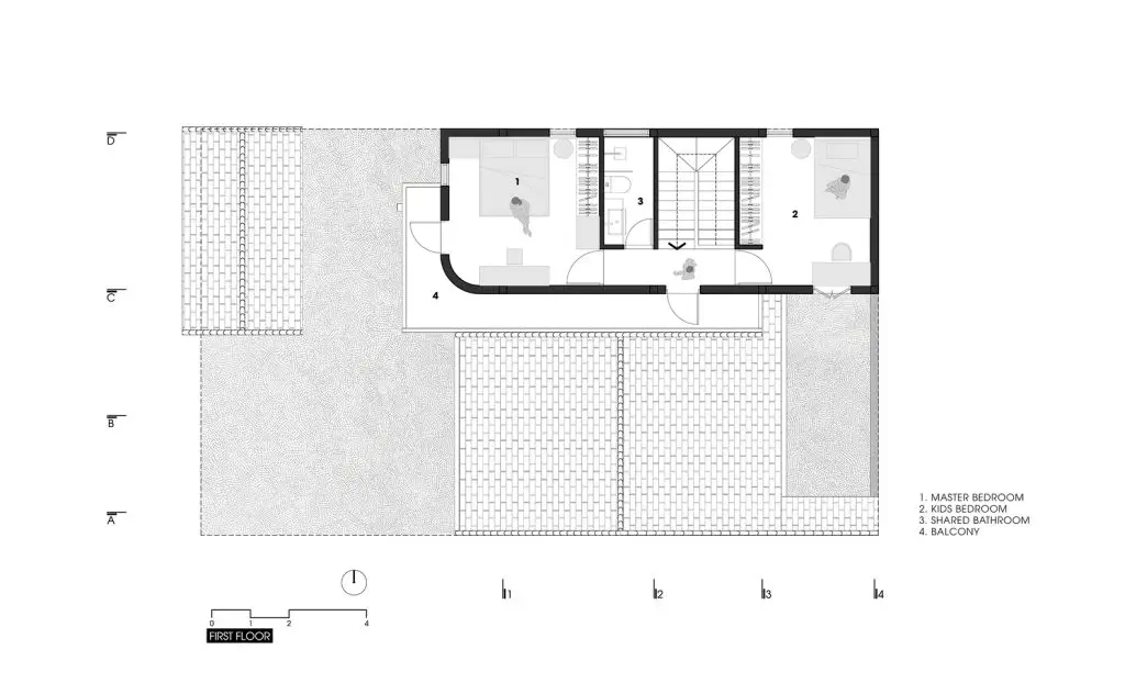
Sơ đồ

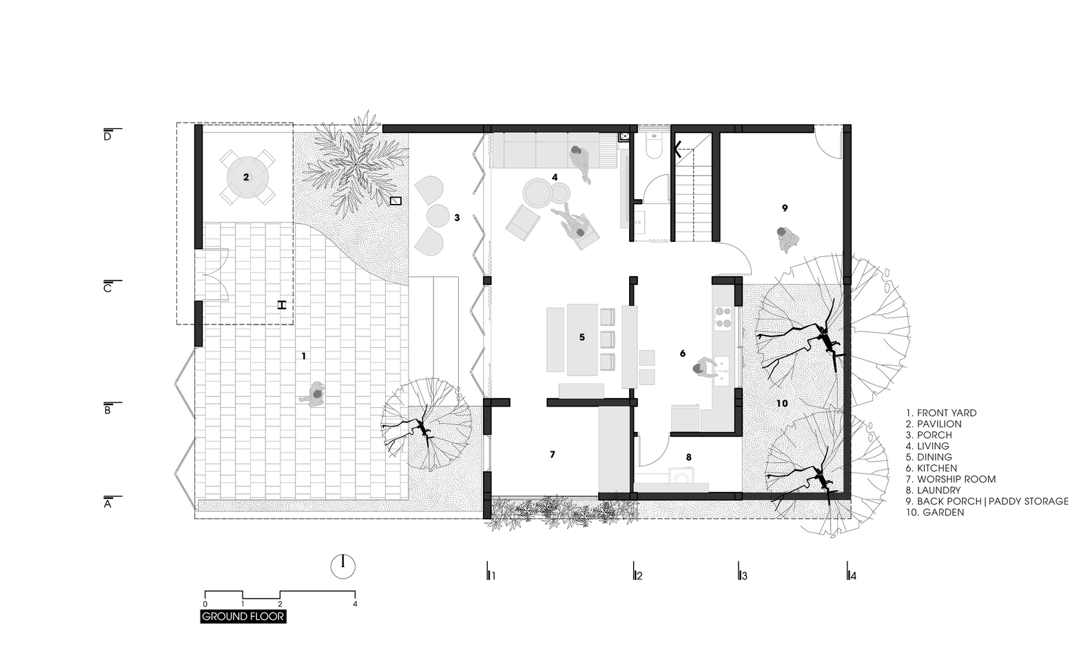
Mặt bằng tầng trệt

Theo phương án của chúng tôi, một gian (gian) và một chái đã được dỡ bỏ. Tầng trệt hiện có hai gian dành cho khu vực sinh hoạt chung gồm phòng khách, bếp và phòng ăn, và một chái dành riêng cho việc thờ cúng. Toàn bộ tầng trệt được thiết kế theo không gian mở, cho phép thông gió, chiếu sáng tự nhiên và kết nối trực tiếp với khu vườn. Khối phòng ngủ có hình dạng chái ngang và được bố trí ở tầng trên, đảm bảo sự riêng tư và dễ dàng lắp đặt điều hòa không khí.

Ngoài không gian chính, chúng tôi còn bố trí nhiều khu vực ngoài trời hoặc bán ngoài trời — những không gian linh hoạt cho trẻ em vui chơi, phơi lúa, hoặc đơn giản là để chủ nhà thưởng thức trà. Các yếu tố văn hóa và lối sống vẫn được giữ nguyên: một khoảng sân rộng rãi để tụ họp cộng đồng, một bình đựng nước mưa để giặt giũ sau khi làm đồng, và một sân sau để trồng rau và gia cầm.

Vật liệu và hình dáng gợi lên sự quen thuộc, khiến ngôi nhà dễ được người dân nông thôn đón nhận, đồng thời mang đến lối sống thoải mái, tiện lợi hơn, nơi truyền thống và hiện đại cùng tồn tại, cho phép quá khứ và hiện tại giao thoa dưới một mái nhà.

 

 

Design & Build Planning

Lập kế hoạch cho ngôi nhà của bạn ngay hôm nay

×