| DỰ ÁN: | Indochina Villa. |
| DIỆN TÍCH: | 327.38m2. |
| ĐỊA ĐIỂM: | TP. Hồ Chí Minh, Việt Nam. |
| KIẾN TRÚC SƯ CHỦ TRÌ: | Steven Baeteman. |
| CÔNG TY: | MIA Design Studio. |
| NHÓM THIẾT KẾ: | MIA Design Studio. |
| NHIẾP ẢNH GIA: | Hiroyuki Oki. |
MIA Design Studio được giao nhiệm vụ tái thiết kế căn hộ mẫu của khu biệt thự Indochina Villas Saigon, một dự án được phát triển bởi Indochina Capital. Dự án là một tổ hợp nhà ở cao cấp với 114 căn biệt thự sang trọng tọa lạc trên vùng đất chiến lược của Thành phố Hồ Chí Minh với diện tích 8 hecta.


Toàn bộ bản thảo của dự án này được thiết kế một cách chu đáo, tỉ mỉ để hòa hợp với với cảnh quan nhiệt đới xung quanh và một loạt những công trình tiện ích. Tất cả tạo thành một trải nghiệm của lối sống đẳng cấp.

Nội thất sân vườn được xoá nhoà
Mục tiêu chính được thể hiện trong bản thiết kế này nhằm tạo ra sự kết nối giữa nội thất và không gian bên ngoài. Ranh giới giữa kiến trúc, nội thất sân vườn được xóa nhòa và tất cả các không gian hòa vào nhau một cách mượt mà. Với các ô cửa sổ hướng ngoại được ghép vào cửa gấp đôi, diện tích ngôi nhà được tận dụng nhiều hơn, toàn bộ ngôi nhà trở nên rộng hơn và thêm phần sang trọng. Các cảnh quan xanh trên sân thượng và ban công có thể được thưởng thức nó trọn vẹn nhất. Không những thế, các giàn lam che nắng được thêm vào để tạo ra nhiều bóng mát và giảm nhiệt. Những mái hắt bằng thép và gỗ đã tôn lên tính mạnh mẽ và hấp dẫn của bề mặt ngôi nhà.

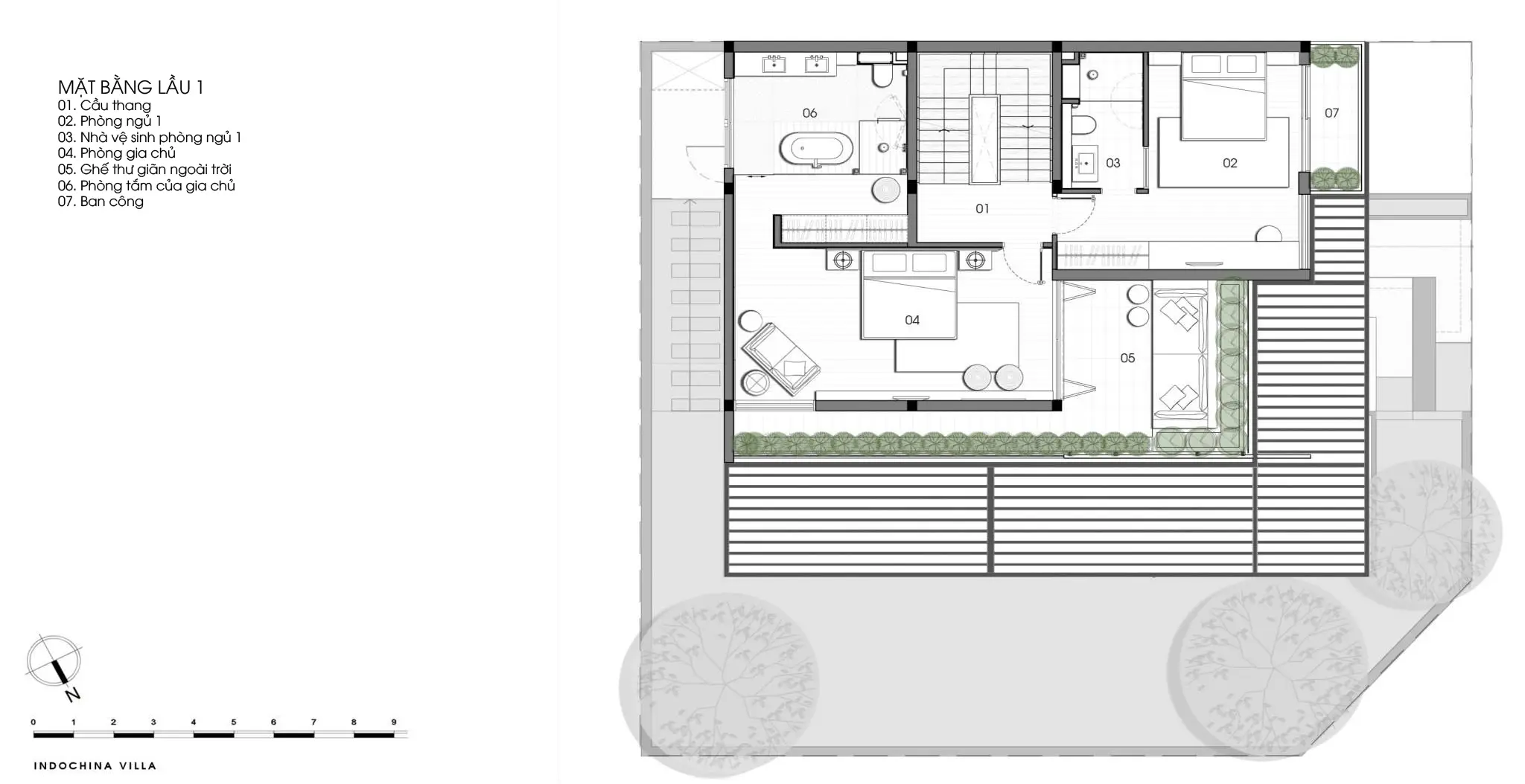
Tầng trệt bao gồm một garage, một không gian mở rộng lớn với tổ hợp phòng khách, phòng ăn cùng một nhà bếp với đầy đủ tiện nghi. Cầu thang được chạm khắc gắn liền với hốc tường dẫn lên tầng trên, nơi bạn có thể tìm đến hai phòng ngủ nối liền với phòng tắm. Ở tầng trên cùng là hai phòng ngủ sử dụng chung một nhà tắm và một sân thượng với những ghế nằm được bao bọc bởi những mảng cây xanh nhiệt đới.

Tông màu đất nhiệt đới đơn giản nhưng không kém phần hiện đại cùng những vật liệu tự nhiên được sử dụng để tạo nên cảm giác nhẹ nhàng tinh tế và góp phần làm nổi bật các mảng xanh của cảnh quan xung quanh.









Mặt bằng tầng trệt

Mặt bằng lầu 1
