| DỰ ÁN: | Kontum Indochine Wedding Hall. |
| DIỆN TÍCH: | 5524m2. |
| ĐỊA ĐIỂM: | Kon Tum, Việt Nam. |
| KIẾN TRÚC SƯ CHỦ TRÌ: | VTN Architects. |
| CÔNG TY: | VTN Artchitects. |
| NHÓM THIẾT KẾ: | VTN Architects. |
| NHIẾP ẢNH GIA: | Hiroyuki Oki. |

Mô tả công trình do các kiến trúc sư cung cấp. Nhà hàng cưới Kontum Indochine được thiết kế như một phần của khu phức hợp khách sạn dọc sông Đắk Lắk ở thành phố Kontum, miền Trung Việt Nam . Nằm cạnh cầu Đắk Lắk, cửa ngõ vào thành phố Kontum, nhà hàng phục vụ như một địa điểm tổ chức lễ cưới, hội nghị và các hoạt động xã hội của khách sạn và người dân. Tòa nhà rộng 5500 mét vuông, bao gồm ba phòng tiệc và không gian văn phòng trên ba tầng, được bao phủ bởi các lam chắn nắng làm bằng đá granit hồng địa phương, khai thác tại tỉnh Bình Định, cách địa điểm xây dựng 150 km. Các lam chắn nắng làm mờ đường nét và chi tiết của tòa nhà, tạo nên một khối kiến trúc trừu tượng, hài hòa với cảnh quan xung quanh. Mỗi lam chắn nắng được áp dụng hai lớp hoàn thiện khác nhau; bề mặt phía trước được đánh bóng, tạo nên vẻ ngoài lấp lánh khi tiếp xúc với ánh nắng mặt trời, trong khi hai cạnh và bề mặt phía sau được đóng khung để làm dịu ánh sáng chiếu vào tòa nhà. Du khách có thể thưởng thức tầm nhìn ra sông qua các lam chắn nắng màu hồng nhạt, được bảo vệ khỏi ánh nắng mặt trời gay gắt của vùng nhiệt đới.

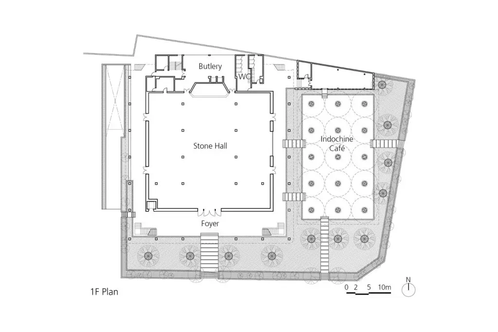
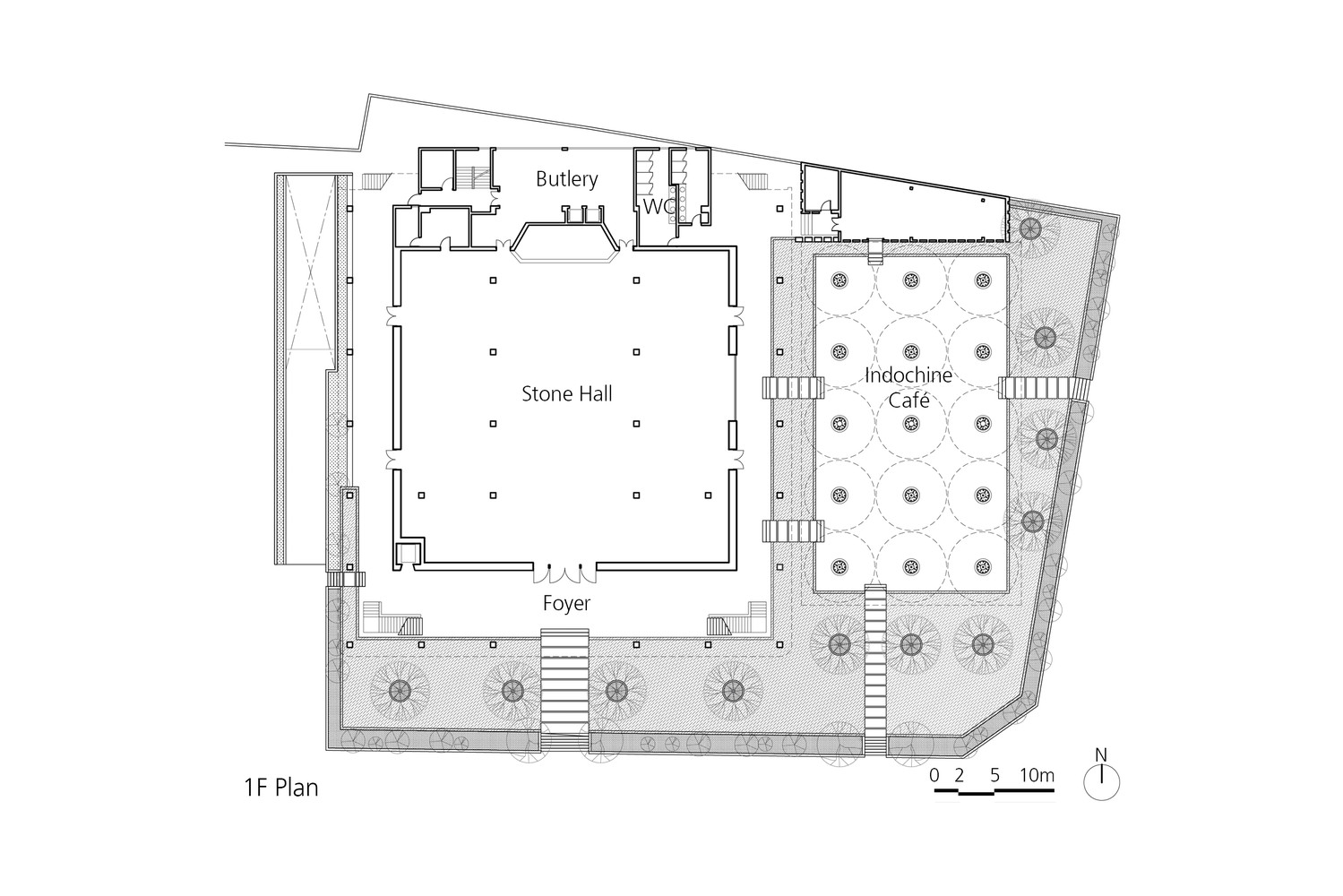
Ba sảnh tiệc sử dụng ba loại vật liệu tự nhiên khác nhau: đá, tre và gỗ. Tường và cột của “Sảnh Đá”, nằm ở tầng trệt và có sức chứa 800 khách, được làm từ các phiến đá bazan dày 120mm, cao 80mm và dài 595mm. Những phiến đá này có bề mặt khác nhau: thô ráp, được đánh bóng hoặc được đục đẽo, tạo nên những đặc điểm không gian vừa trang trọng vừa tinh tế, rất phù hợp cho các nghi lễ trang trọng. Cả “Sảnh Tre” và “Sảnh Gỗ” đều nằm ở tầng hai, mỗi sảnh có sức chứa 400 khách. Vật liệu sử dụng khác nhau giữa hai sảnh, tạo nên những đặc điểm riêng biệt cho mỗi không gian.

“Hội trường Tre” là một không gian nghi lễ được tạo thành từ các khung tre tự đứng cao 6,5m và rộng 18m. Những khung tre này được chiếu sáng bởi các thiết bị đèn, do đó hội trường mang lại ấn tượng yên tĩnh và ấm cúng so với cấu trúc tre ở cơ sở liền kề; “Quán cà phê Đông Dương”, vốn là một không gian mở rộng rãi.

“Sảnh Gỗ” có trần nhà gồm chín thanh lam hình quạt. Các thanh lam được làm từ những mảnh gỗ bản địa có kích thước 20mm x 50mm, màu sắc tươi sáng, được gọi là “Kate”. Trần nhà nhẹ nhàng chiếu sáng các không gian bên trong, tương tự như một chiếc chụp đèn.

Ánh sáng và không khí tự nhiên len lỏi qua các khe đá màu hồng vào tiền sảnh, nằm phía trước hai hành lang và có thể đi vào từ cầu thang ở cả hai đầu tòa nhà.

Sơ đồ mặt bằng tầng một