| DỰ ÁN: | M.Casa. |
| DIỆN TÍCH: | 245m2. |
| ĐỊA ĐIỂM: | TP. Hồ Chí Minh, Việt Nam. |
| KIẾN TRÚC SƯ CHỦ TRÌ: | HINZ Studio. |
| CÔNG TY: | HINZ Studio. |
| NHÓM THIẾT KẾ: | HINZ Studio. |
| NHIẾP ẢNH GIA: | Quang Trần. |

Mô tả do các kiến trúc sư cung cấp: M.Casa tái hiện tinh thần của ngôi nhà truyền thống Việt Nam, cân bằng giữa sự giản dị và ấm áp trong nhịp sống đô thị hối hả hiện đại. Tọa lạc trên khu đất rộng 6 x 20 mét trong một con hẻm nhỏ của Thành phố Hồ Chí Minh , ngôi nhà được bao quanh bởi các công trình bê tông dày đặc. Cặp vợ chồng trẻ sở hữu ngôi nhà này mong muốn một môi trường yên tĩnh, gần gũi với thiên nhiên và ấm cúng để chào đón gia đình đang ngày càng lớn mạnh của họ.


Thách thức trong thiết kế là làm sao dung hòa những hạn chế của khu đất đô thị – kích thước hẹp, tường chung hai bên và nhu cầu thông gió tự nhiên – với mong muốn tạo ra một không gian sống khiêm tốn, gần gũi với thiên nhiên, mang đậm bản sắc truyền thống trong bối cảnh hiện đại.


Ý tưởng kiến trúc lấy cảm hứng từ những ngôi nhà truyền thống Việt Nam, với đặc điểm là sân trong, hiên nhà, mái dốc và lối đi bên hông. Những yếu tố này được tái hiện bằng ngôn ngữ đương đại, tạo nên một không gian liền mạch tràn ngập ánh sáng ban ngày và gió trời.

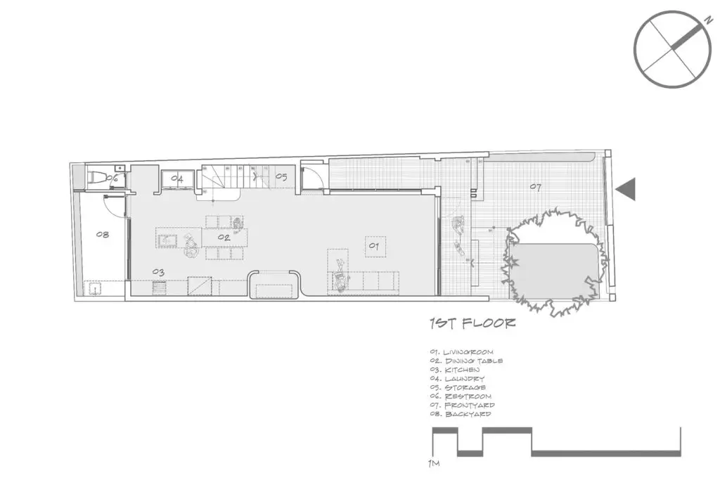
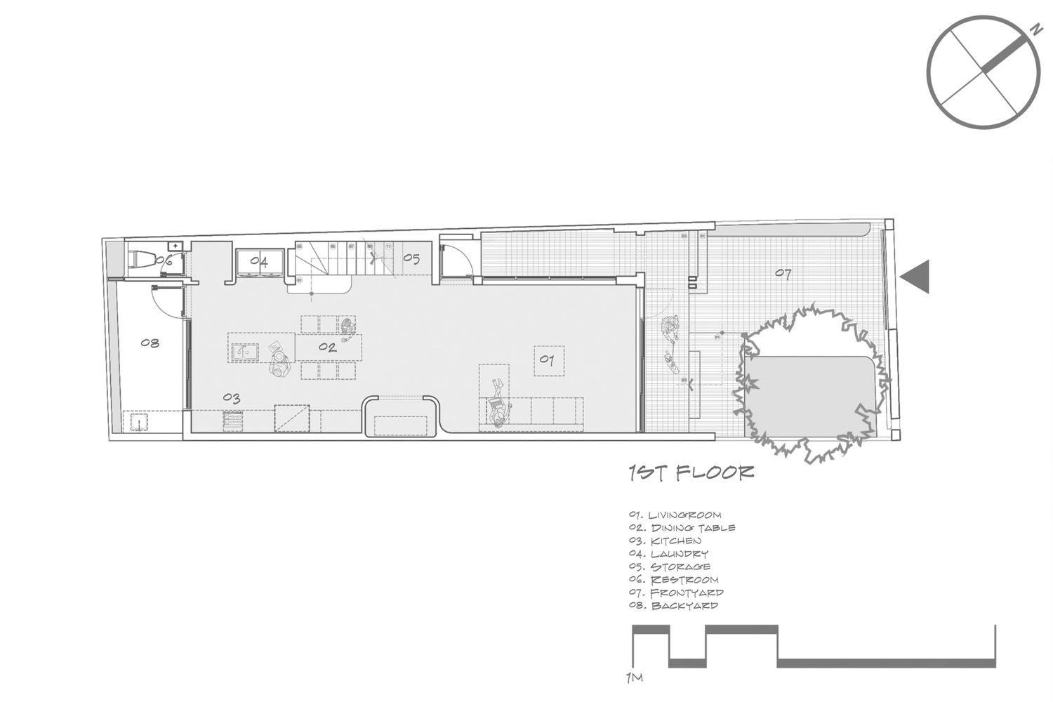
Sơ đồ mặt bằng tầng một

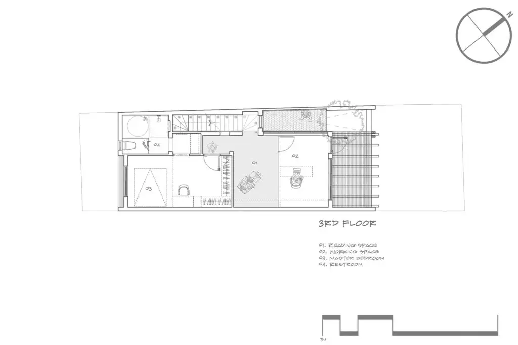
Sơ đồ mặt bằng tầng ba

Với thiết kế lùi vào ở cả phía trước và phía sau, ngôi nhà luôn được thông gió tự nhiên và thoáng đãng, mang đến sự yên tĩnh và không khí trong lành hiếm có trong khu phố. M.Casa đặt sự thoải mái và hạnh phúc tinh thần của con người lên hàng đầu, tạo ra một môi trường êm dịu cho thế hệ trẻ tương lai, đồng thời khéo léo nhắc nhở thế hệ kế tiếp về những giá trị tĩnh lặng, bền vững của quá khứ.

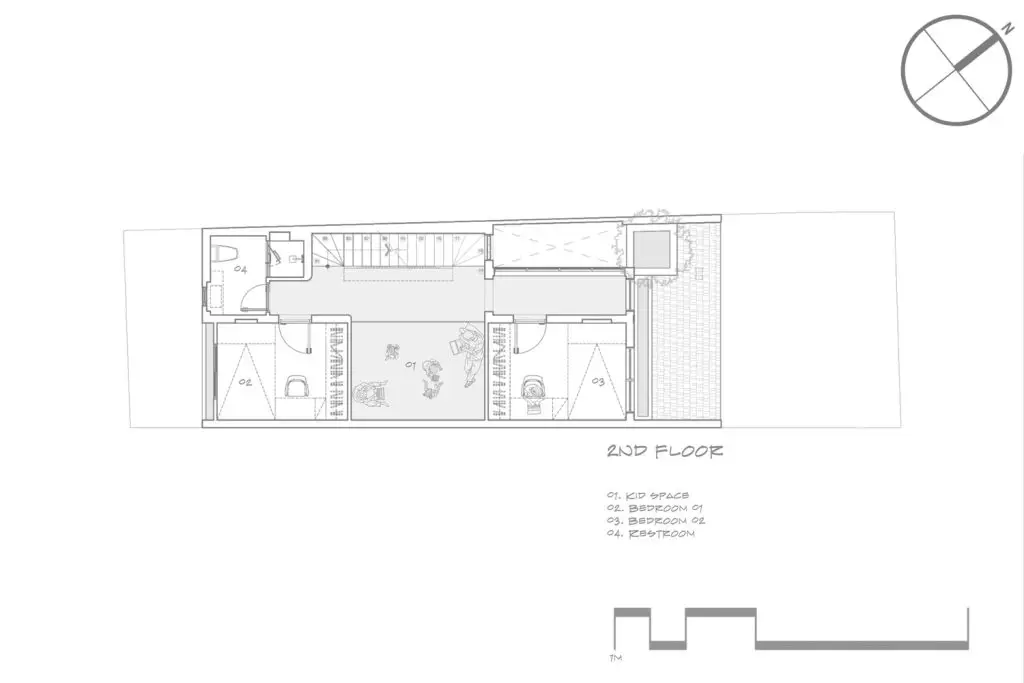
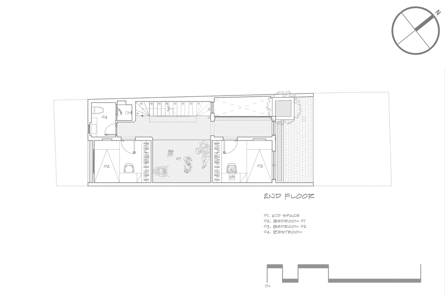
Tầng trệt kết nối phòng khách và nhà bếp thành một không gian mở liên tục, khuyến khích sự tương tác gia đình. Một bàn thờ nhỏ gọn, được tích hợp hài hòa nằm ở trung tâm ngôi nhà, duy trì sự hiện diện thiêng liêng của nó đồng thời hòa hợp với bố cục không gian. Tầng hai có hai phòng ngủ ở phía trước và phía sau, với một khu vực sinh hoạt chung của gia đình ở giữa, được thiết kế như không gian vui chơi cho trẻ em. Tầng trên cùng là phòng ngủ chính, góc làm việc và khu vực thư giãn riêng tư, đảm bảo sự yên tĩnh và riêng tư.

Các vật liệu bao gồm bê tông lộ thiên, gạch trần, ngói đất sét và gỗ nhuộm màu tối, những thành phần tự nhiên, bền chắc, gợi lên sự ấm áp và quen thuộc. Ánh sáng xuyên qua mái ngói và tường gạch tạo nên những chuyển tiếp mềm mại trong toàn bộ không gian nội thất, gợi nhớ đến những hiên nhà ở vùng quê và những ngôi nhà làng quê.

M.Casa thể hiện sự giản dị, kết nối và những phẩm chất trường tồn của truyền thống Việt Nam trong cuộc sống hiện đại. Hơn cả một nơi trú ẩn, M.Casa là nơi nuôi dưỡng cảm xúc và sự cân bằng, giữa thực tế và tinh thần, giữa cái cũ và cái mới, nơi sự giản dị trở thành thước đo của sự thanh lịch.
