| CÔNG TY: | Trung Trần Studio. |
| NHÓM THIẾT KẾ: | Trung Trần Studio. |
| NHIẾP ẢNH GIA: | Triệu Chiến. |

Mô tả bằng văn bản do các kiến trúc sư cung cấp. Nhà Nang là một ngôi nhà nhỏ, được xây dựng ở vùng ngoại ô nông thôn của Hà Nội , nơi quá trình đô thị hóa diễn ra ngày càng nhanh chóng, dần dần phá vỡ cấu trúc nông thôn truyền thống.




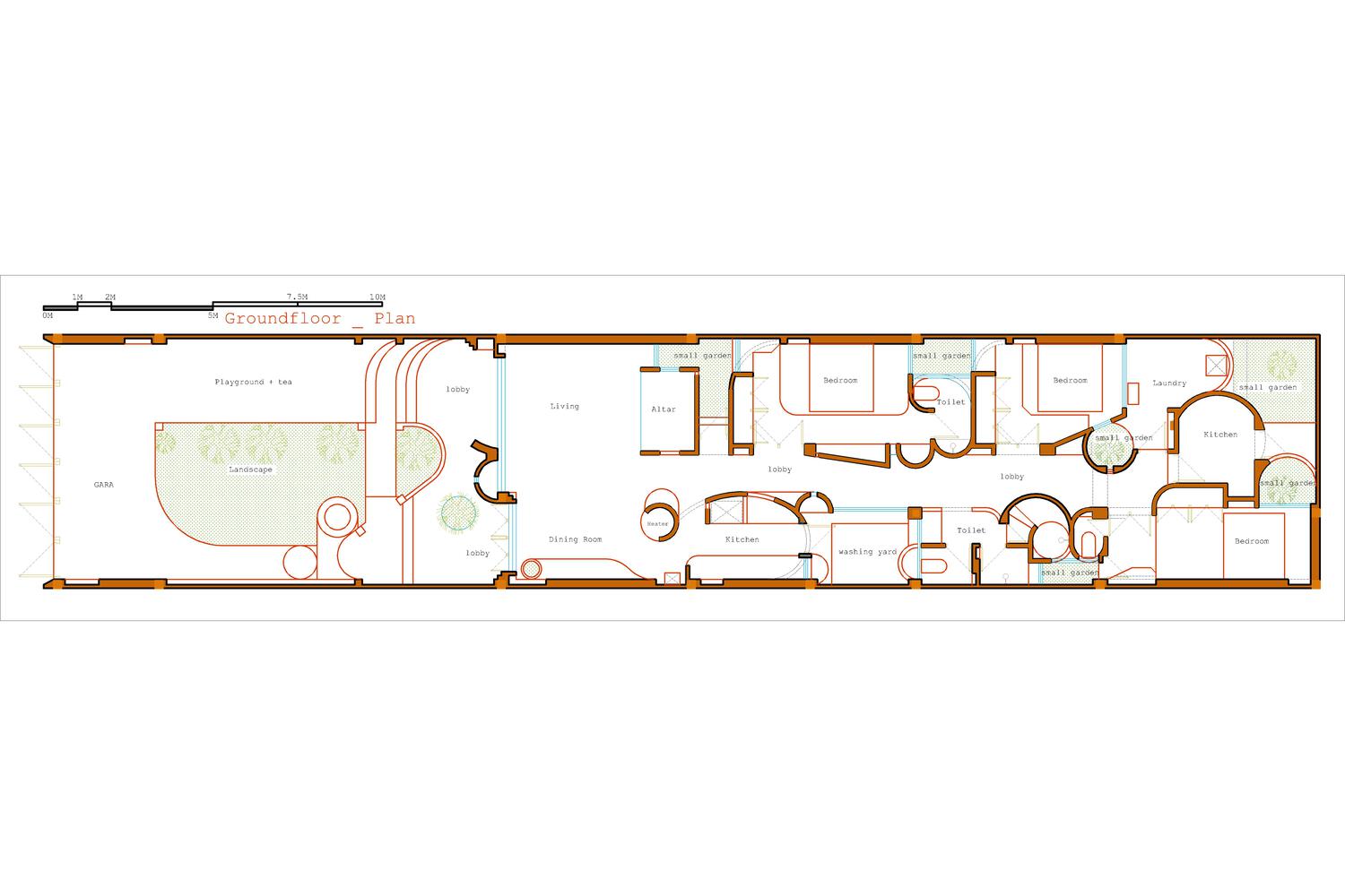
Sơ đồ mặt bằng



Ngôi nhà được thiết kế cho một gia đình ba thế hệ điển hình ở vùng nông thôn Việt Nam, bao gồm cha mẹ già, một cặp vợ chồng trẻ và các con nhỏ. Ngôi nhà được xây dựng trên một khu vườn có nhiều cây cổ thụ; thiết kế giữ nguyên tất cả các cây hiện có.



Không gian sinh hoạt chính được bố trí lùi vào trong, nhường chỗ cho khu vườn và gara, cùng với khu vực uống trà ở phía trước. Không gian sinh hoạt chính bao gồm phòng khách, phòng thờ và phòng ăn ở trung tâm khu đất, được kết nối với 4 phòng ngủ và không gian phụ trợ ở phía sau.
