| DỰ ÁN: | Nest House. |
| DIỆN TÍCH: | 260m2. |
| ĐỊA ĐIỂM: | Việt Nam. |
| KIẾN TRÚC SƯ CHỦ TRÌ: | QBI Corp.. |

Mô tả công trình do kiến trúc sư cung cấp. Gia đình đông người của chủ nhà gần đây đã chuyển từ miền Bắc xuống miền Nam Việt Nam. Hàng tháng, họ thường tổ chức các buổi họp mặt gia đình và bạn bè tại nhà, với hàng trăm người tham dự như một truyền thống gia đình. Ngôi nhà của họ trở nên quá chật chội cho những sự kiện như vậy. Được xây dựng trên khu đất rộng 260 mét vuông, ngôi nhà “dành cho các buổi họp mặt” này được thiết kế theo cách độc đáo để mở rộng không gian tầng trệt, phòng khách và khu vực thờ cúng ra với thiên nhiên.


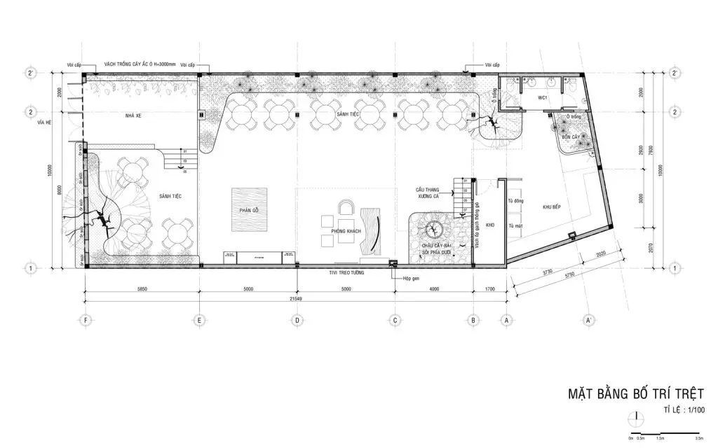
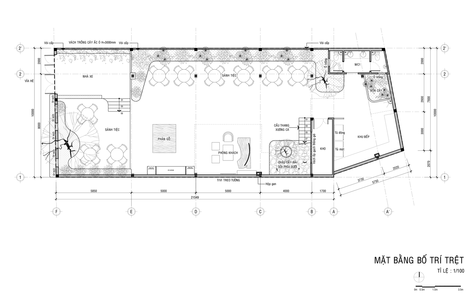
Sơ đồ mặt bằng tầng trệt

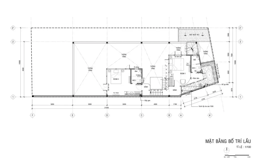
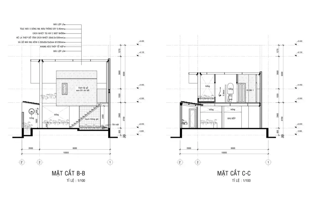
Hai phòng ngủ kiểu nhà gỗ dành cho khách được bố trí lơ lửng trên không gian mở như hai tổ chim. Những tổ chim này nằm ở đó trong một khung cảnh thoải mái như ở khu nghỉ dưỡng. Ngôi nhà thật dễ chịu với những làn gió thiên nhiên và ánh nắng mặt trời tràn ngập. Nhìn ra phòng khách là một khu vườn rộng lớn, một góc thờ cúng, nơi ánh nắng xuyên qua những tấm kính màu sắc, tạo nên cảm giác thanh bình.


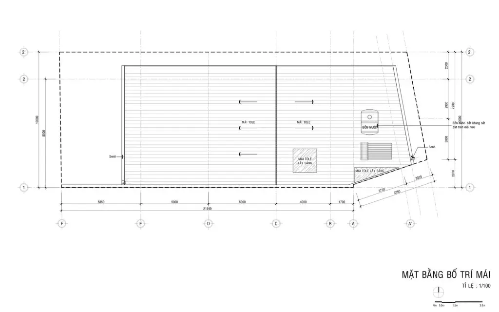
Mục đích chính của nơi này là để duy trì các truyền thống gia đình và các sự kiện như thờ cúng tổ tiên và các hoạt động gắn kết gia đình – bạn bè. Trong suốt quá trình phát triển ý tưởng, khái niệm “nhà tiệc” đã được hình thành. Nhà tiệc được bố trí theo kiểu nhà dài, một loại nhà một phòng dài, hẹp theo tỷ lệ, thường được xây dựng bởi các hộ dân tộc thiểu số ở Tây Nguyên Việt Nam. Các phòng được xây bằng gỗ tái chế; vách ngăn có họa tiết từ tường nhà của các dân tộc thiểu số. Hai phòng giống như hai tổ chim mở ra những khoảng trống đón nắng gió và những mảng xanh bồng bềnh. Mặt đất là không gian mở, không cửa, không tường, được bao quanh bởi cây xanh. Toàn bộ không gian mặt đất tiếp xúc trực tiếp với nắng và mưa mỗi ngày.

Với cách bố trí không gian này, chủ nhà thích thú đón chào buổi sáng và quét sân, tưới cây… những việc mà chủ nhà trước đây chưa bao giờ nghĩ mình sẽ làm với niềm vui lớn lao, giờ đây dần trở thành một nghi thức quen thuộc. Tầng trệt mở trở thành một không gian đa năng. Nó không chỉ là nơi thờ cúng tổ tiên mà còn là sân chơi cho trẻ em, gia đình và bạn bè; mỗi buổi chiều chủ nhà đều mời bạn bè đến chơi bóng bàn; buổi tối có vài người bạn đến cùng nhau uống rượu.




Sau một thời gian, chủ nhà không còn gọi ngôi nhà là “nhà tiệc” nữa. Họ gọi nó là “nhà tôi” và tự hào nói: “Nhà tôi sáng sủa quá, chúng tôi đang nghĩ đến việc dọn đến ở hẳn đây. Thật tuyệt, tổ tiên có đủ chỗ đón tiếp con cháu trong dịp Tết này” (lễ hội truyền thống Tết Nguyên đán ở Việt Nam).
