
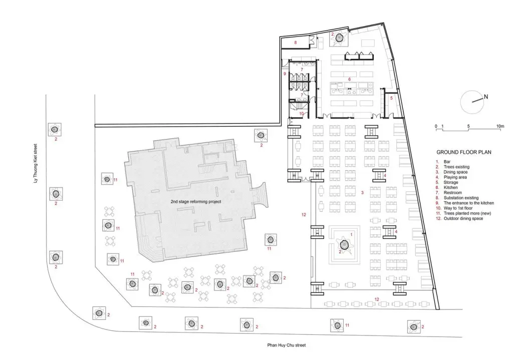
Mô tả bằng văn bản do các kiến trúc sư cung cấp. Tọa lạc tại trung tâm Hà Nội, nhà hàng Cheering được cải tạo từ một dự án đã đóng cửa từ lâu, vẫn giữ nguyên kết cấu khung thép và các vật liệu ốp lát có thể tái sử dụng như: kính, thép, thép thanh, mái tôn.

Cuộc sống trên vỉa hè, nơi diễn ra nhiều hoạt động thường nhật của người dân Hà Nội, đặc biệt là ẩm thực từ sáng đến tối, đã truyền cảm hứng cho các nhà thiết kế tạo ra một không gian gợi nhớ đến những cây cổ thụ – hình ảnh quen thuộc trên các con phố của thành phố ngàn năm tuổi này.

Giải pháp được đề xuất là hàn toàn bộ kết cấu thép hiện có để tạo ra một hệ thống mới có thể dẫn các đường ống kỹ thuật vào bên trong và được che phủ bằng các thanh gỗ chất lượng thấp (9,2 cm x 120 cm x 1,5 cm) tạo thành các dầm có tiết diện 40 cm x 40 cm. Loại gỗ dùng để che phủ được lựa chọn để chịu được khí hậu nhiệt đới.

Trên mạng lưới ba chiều được chia làm 4 phần, các “thanh gỗ” được xếp chồng vuông góc với nhau và dần dần lan rộng lên trên để tạo thành “rễ cây” dùng để phân chia không gian và tạo sân chơi cho trẻ em. “Rễ cây” tiếp tục phát triển xen kẽ để tạo thành một khung vững chắc, giúp giảm nhiệt và tạo ra nhiều bóng râm khác nhau từ mái polycarbonate. Ở giữa mái nhà là một lớp không khí được làm mát và làm sạch tự động bằng hệ thống phun nước liên kết với bể chứa nước mưa.

Đề xuất này không phân tách kết cấu và lớp phủ; trần nhà và tường; làm mờ ranh giới giữa bên trong và bên ngoài; tận dụng triệt để tầm nhìn và cảnh quan. Nó tạo ra những trải nghiệm đặc biệt cho người sử dụng và đưa mọi người đến gần hơn với thiên nhiên bằng một không gian chứa đựng tinh hoa văn hóa ẩm thực Hà Nội trên vỉa hè.

Nhà hàng này là giải pháp cho sự đối thoại giữa kiến trúc đương đại và bối cảnh giàu giá trị lịch sử và văn hóa, đồng thời góp phần định hình lại diện mạo đô thị và kiến trúc khu vực trung tâm Hà Nội – nơi mỗi mét vuông đều có giá hàng tỷ đồng.
