| DỰ ÁN: | Ninh Bình Villa – Tận hưởng cuộc sống xanh. |
| DIỆN TÍCH: | 600m2. |
| ĐỊA ĐIỂM: | Ninh Bình, Việt Nam. |
| KIẾN TRÚC SƯ CHỦ TRÌ: | Nguyễn Khắc Phước. |
| CÔNG TY: | Nguyen Khac Phuoc Architects. |
| NHÓM THIẾT KẾ: | Trần Duy Hân. |
| NHIẾP ẢNH GIA: | Triệu Chiến. |
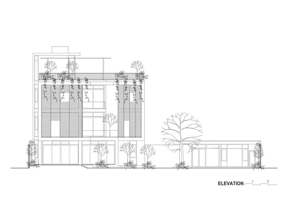
Tọa lạc ngay giữa trung tâm thành phố Ninh Bình, nơi vốn nổi danh là vùng đất của những tòa lâu đài mang phong cách châu Âu du nhập, Ninh Bình Villa là một nét chấm phá hoàn toàn khác biệt. Chen lẫn giữa những tòa nhà mái vòm cung điện đầy màu sắc, ngôi nhà là sự cô đọng của ngôn ngữ hình khối, không gian, vật liệu và cảnh quan, nơi kết nối con người với thiên nhiên và các thành viên trong gia đình đa thế hệ.


Ninh Bình Villa được thiết kế dành cho một gia đình đa thế hệ với rất đông thành viên. KTS đã thiết kế không gian chung và riêng hài hòa, xen kẽ để đảm bảo cho từng thành viên vẫn có không gian cá nhân riêng tư nhưng cũng có sự kết nối với không gian sinh hoạt chung của cả gia đình. Những ngôn ngữ hình khối chạy ziczac liên tục trong khuôn viên khu đất hình chữ nhật tạo nên một dòng chảy mềm mại, đan xen nhằm gắn kết chặt chẽ mọi không gian trong ngôi nhà với nhau: giữa ngôi nhà và sân vườn, không gian trong và ngoài.


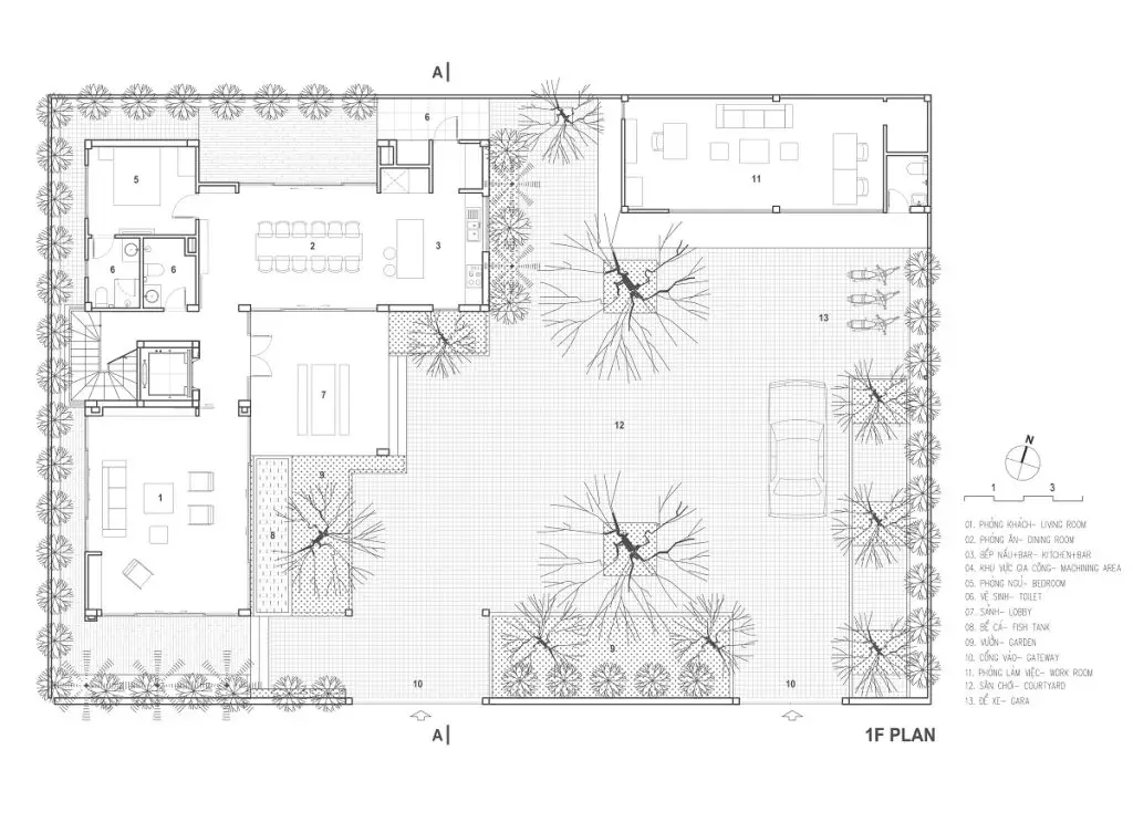
Cũng vì là gia đình đa thế hệ, gia chủ muốn tập trung chú trọng vào những không gian sinh hoạt chung: rộng rãi, thoáng mát và giao hòa với thiên nhiên. Toàn bộ không gian tầng 1 là không gian mở lớn kết nối tối đa với khu vườn bao quanh, nơi dành cho khu vực tiếp khách trong nhà, ngoài nhà, ăn uống và giao lưu sinh hoạt chung của các thành viên trong gia đình.
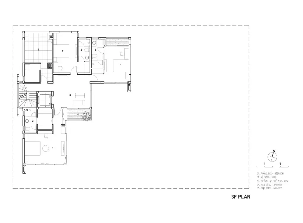
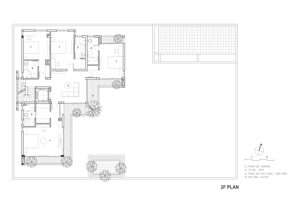
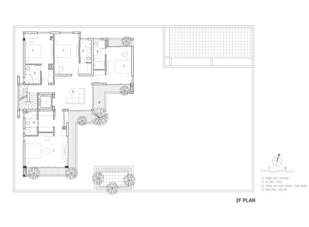
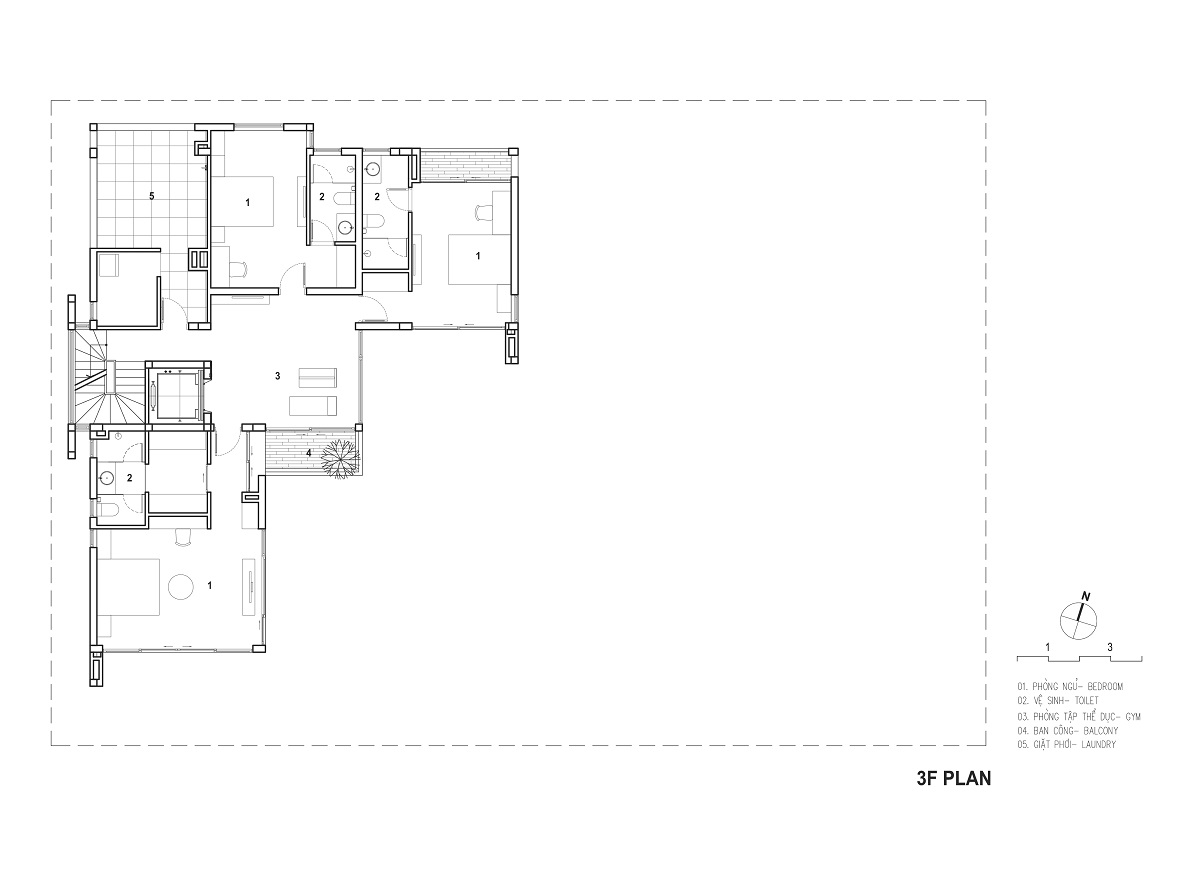
Không gian tầng 2,3 là khu vực riêng dành cho các thành viên trong gia đình, kết nối mỗi tầng là khu vực sinh hoạt chung ở vị trí trung tâm.
Bất cứ góc nào trong ngôi nhà cũng có thể tiếp cận với ánh sáng, với gió mát, cây xanh. Vẻ đẹp mộc mạc của chất liệu chủ đạo đá mài terrazzo đã làm nổi bật sự tinh giản nhưng tiện nghi của ngôi nhà, làm nền cho cây cối đang dần lớn lên cùng sự trưởng thành của những đứa trẻ trong gia đình.
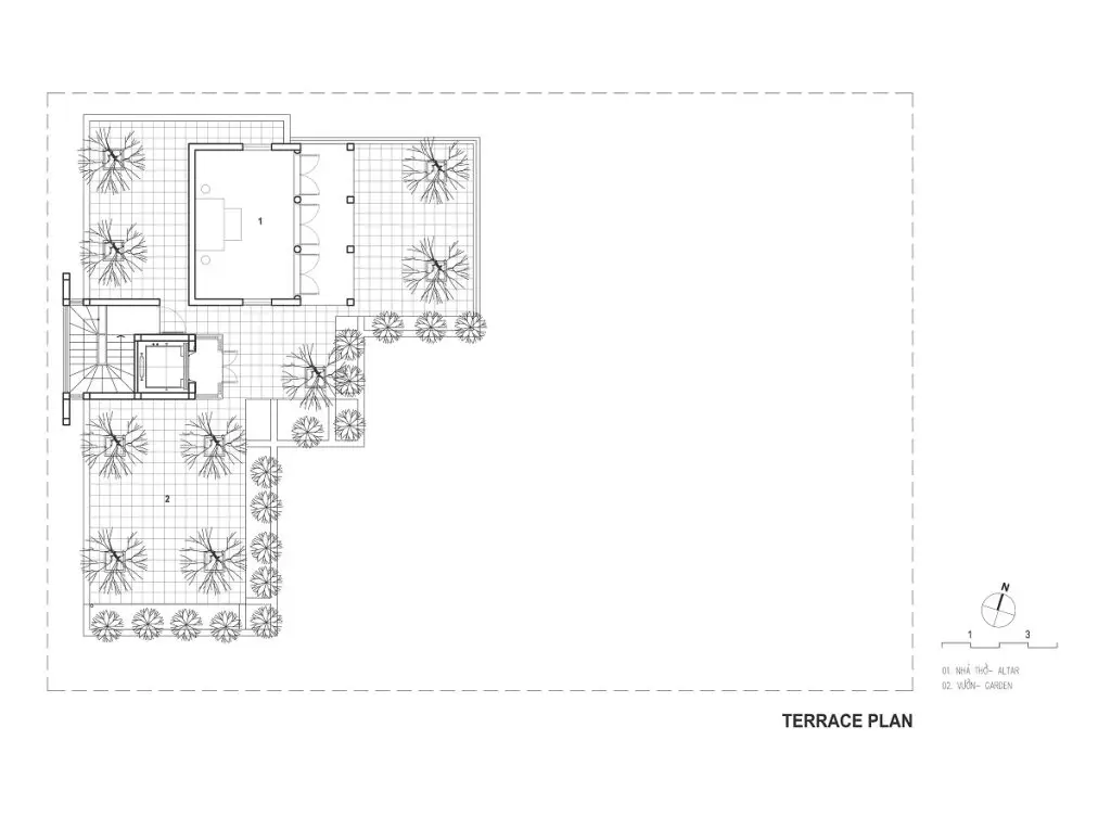
Ninh Bình Villa không chỉ dừng lại không gian để ở mà là như là nơi để nghỉ dưỡng, tận hưởng cuộc sống xanh, gắn kết các thành viên trong gia đình của ngôi nhà đa thế hệ.




