| DỰ ÁN: | NK Home – Tổ hợp giải pháp cho những hạn chế trong nhà phố. |
| ĐỊA ĐIỂM: | Việt Nam. |
| KIẾN TRÚC SƯ CHỦ TRÌ: | Kiến Trúc NDT, Nguyễn Đăng Tưởng, Nguyễn Văn Quang, Ngô Thị Ngà. |
| CÔNG TY: | Kiến trúc NDT. |
| NHÓM THIẾT KẾ: | Kiến Trúc NDT. |
Với thiết kế của NK Home, KTS tập trung vào việc tạo ra nhiều không gian nghỉ ngơi, tăng khả năng thông gió, lấy sáng tự nhiên, cải thiện chất lượng không gian sống trong nhà và truyền cảm hứng sống xanh đến những người trong khu vực.


NK Home nằm trong khu vực đông dân cư tại tỉnh Bắc Ninh. Ngôi nhà có diện tích 81m2 (4.5m x 18m) và mặt tiền chính hướng Bắc. Đây là mẫu nhà ống điển hình tại Việt Nam. Chủ đầu tư là một cặp vợ chồng trẻ rất yêu thích thiên nhiên nên yêu cầu đặt ra là mang thật nhiều cây xanh vào trong không gian sống và tạo được các không gian ở thông thoáng nhưng vẫn đảm bảo riêng tư.


Nhà ống là một dạng nhà phổ biến tại Việt Nam với mặt tiền hẹp và sâu do đó có nhiều hạn chế về giao thông, tầm nhìn, thông gió, chiếu sáng và thoát hiểm. Hơn nữa, do vị trí địa lý nằm trong khu đông dân cư và nằm cạnh các khu công nghiệp lớn nên các vấn đề về bụi bẩn và ô nhiễm tiếng ồn là những vấn đề được đặc biệt quan tâm.
NK Home có các công năng chính gồm: Gara, phòng khách, bếp, 03 phòng ngủ, 04 wc, sân chơi và sân phơi.

Mặt tiền ngôi nhà được tạo hình tương phản về màu sắc, hình khối và vật liệu, tạo ra điểm nhấn rõ ràng hơn. Logia ở các tầng nằm cạnh bồn hoa mặt tiền được kết nối với nhau thông qua các khoảng trống tầng phía trước mặt tiền tạo ra không gian đệm để nghỉ ngơi, làm việc nhưng vẫn đảm bảo được sự riêng tư, đồng thời giúp mở rộng tầm nhìn, cải thiện không gian sống và hạn chế tác động của gió vào ngôi nhà.


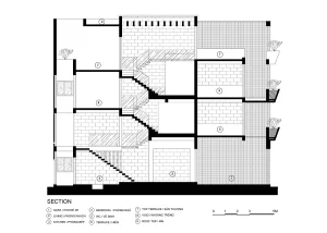
Các không gian chức năng chính được bố trí ở phía trong và được bao bọc bởi các không gian phụ phía trước và sau nhà. Phía trước nhà là khối phòng ngủ chính giúp tận dụng tầm nhìn, phía sau là khối phòng ngủ phụ và phòng khách. Hai khối chức năng chính được liên kết trực tiếp với nhau qua cầu thang và giếng trời giữa nhà. Cách bố trí này giúp cân bằng không gian và tạo cảm giác dễ chịu khi di chuyển qua các tầng.

Giếng trời ở giữa nhà có xu hướng mở rộng hơn ở các tầng trên giúp kết nối nhiều không gian từ wc, phòng ngủ, cầu thang và sân phơi tốt hơn, đồng thời tạo cảm giác mở và gần với thiên nhiên hơn ở các tầng trên, giúp lấy sáng tốt hơn cho các bồn hoa phía dưới và đảm bảo sự đối lưu gió cho không gian giữa nhà. Con người khi di chuyển trên cầu thang qua các tầng có thể cảm nhận được sự dịch chuyển của cây xanh và có thể quan sát cũng như kết nối dễ dàng với các tầng. Bồn hoa nằm cạnh wc vừa tạo điểm nhấn, giúp con người quan sát dễ dàng vừa đảm bảo sự riêng tư khi sử dụng ở bên trong.


Do ảnh hưởng của nắng tây sau nhà và để đảm bảo sự riêng tư với các nhà xung quanh, toàn bộ không gian phụ được đẩy về phía sau nhà. Wc, giếng trời và sân phơi được bố trí trên các tầng để hạn chế sự tác động trực tiếp của nắng đến các không gian ở phía trong, tuy nhiên vẫn đảm bảo sự đối lưu gió và duy trì tầm nhìn từ trong ra ngoài.


Một giếng trời nhỏ được bố trí phía sau nhà giúp đảm bảo sự cân bằng cảnh quan giữa các tầng, giúp tăng khả năng đối lưu gió, làm mát không gian, tăng tính kết nối và giúp thoát hiểm nhanh hơn khi gặp sự cố. Đây cũng là giải pháp giúp cải thiện cảnh quan, tầm nhìn và không khí trong phòng cho các không gian chính như phòng ngủ và phòng khách phía sau nhà.
