| DỰ ÁN: | NQ House. |
| DIỆN TÍCH: | 141m2. |
| ĐỊA ĐIỂM: | TP. Hồ Chí Minh, Việt Nam. |
| KIẾN TRÚC SƯ CHỦ TRÌ: | Nguyen Dinh Gioi, Nguyen Van Anh. |
| NHÀ THẦU THI CÔNG: | Công ty Thiết kế - Xây dựng Nhà Dân. |
| CÔNG TY: | Nhà Dân Architecture. |
| NHÓM THIẾT KẾ: | Nguyen Phan Anh Tuan, Tran Minh Phuoc, Pham Thi Cam Van. |
| NHIẾP ẢNH GIA: | Hiroyuki Oki. |

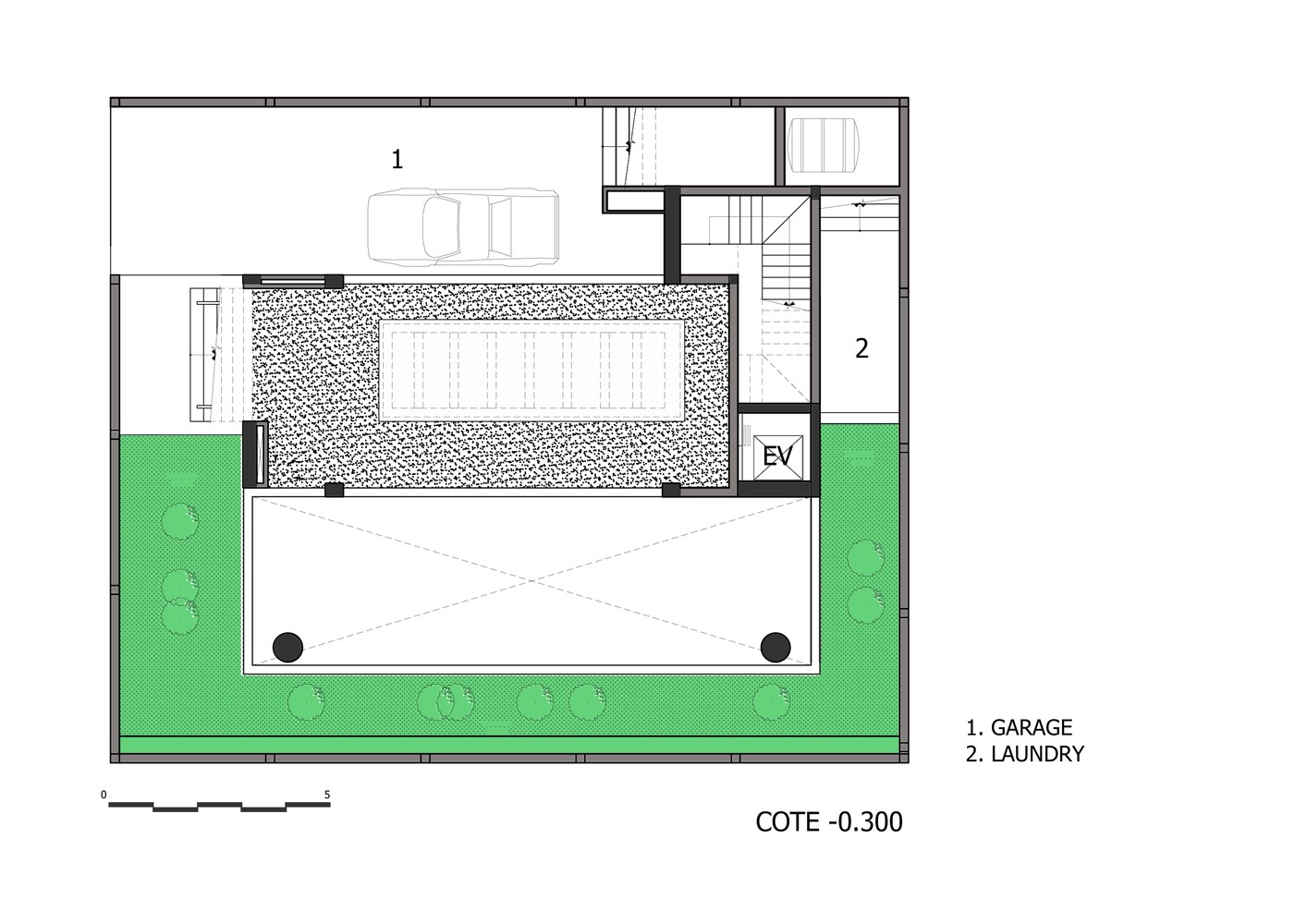
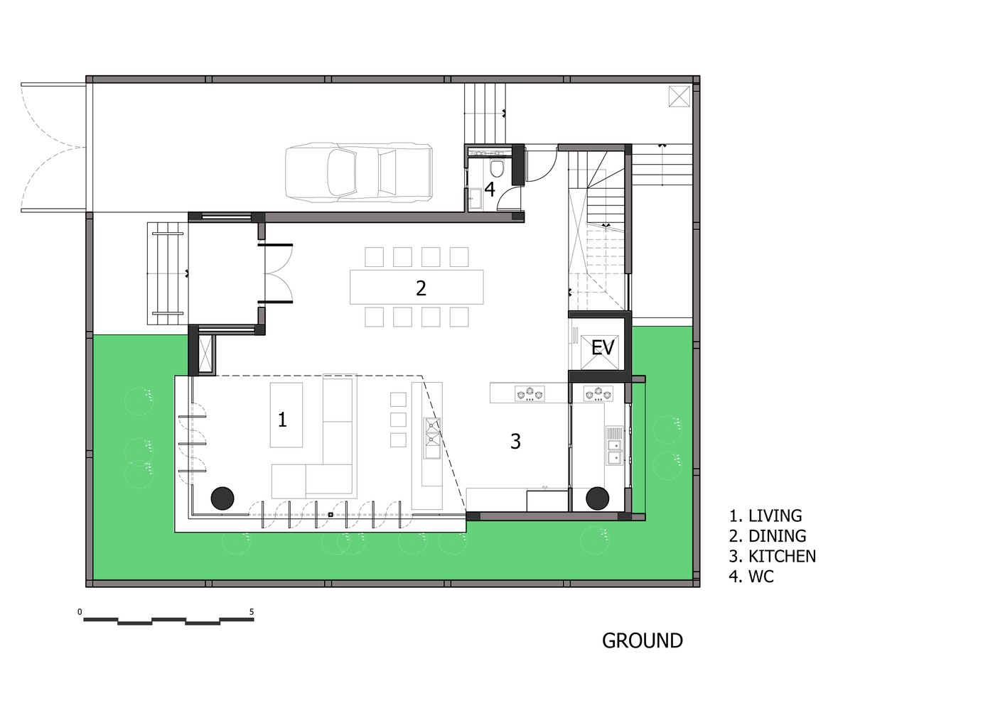
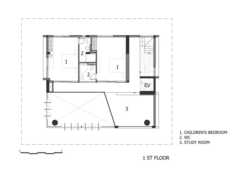
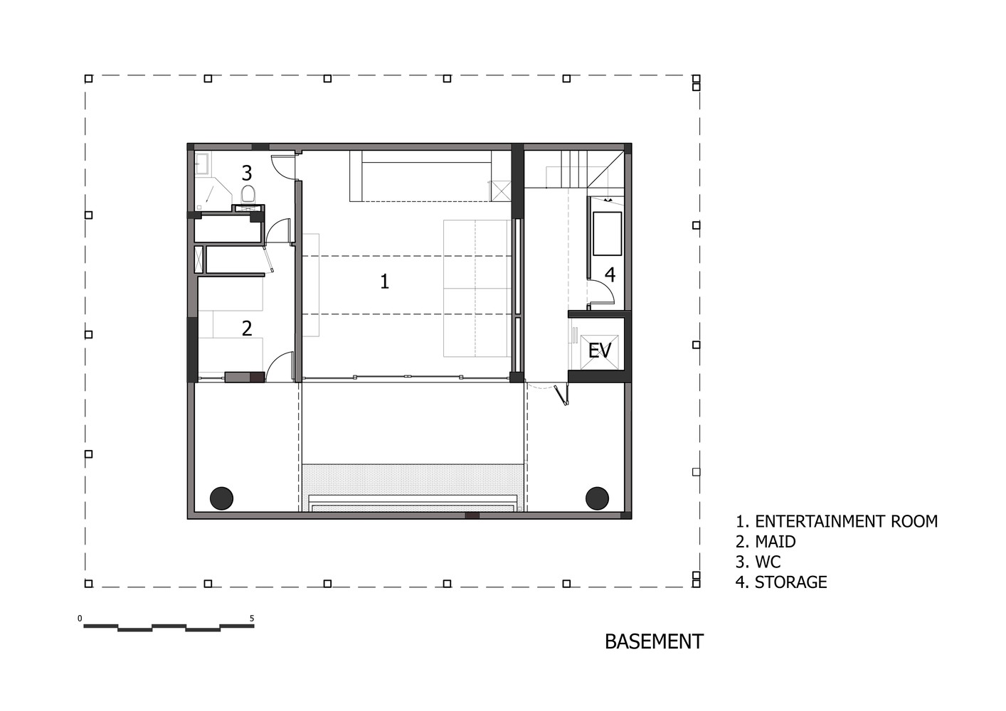
Mô tả bằng văn bản do các kiến trúc sư cung cấp. Chúng tôi đề xuất cân bằng toàn bộ thể tích bao gồm các phòng ngủ ở một bên và bể bơi ở bên kia. Ở giữa, một bức tường chịu lực và lõi thang máy chịu trọng lượng của cả phòng ngủ và bể bơi. Tiếp theo, chúng tôi treo các tầng từ bể bơi bằng các thanh thép đường kính 100 mm để tránh kết cấu cột và dầm truyền thống, nhờ đó có thêm không gian trần. Do hệ thống treo, sàn tầng một được nâng cao khỏi mặt đất, tạo ra một khoảng trống để thông gió tự nhiên ở tầng hầm và toàn bộ ngôi nhà. Để tăng thêm độ an toàn về kết cấu, chúng tôi bố trí thêm các cột phụ cho bể bơi và các không gian sinh hoạt.

Chúng tôi cũng nâng cao vị trí bể bơi vì hai lý do. Thứ nhất, diện tích khu đất nhỏ không cho phép xây bể bơi. Thứ hai, ngay cả khi có đủ không gian, ánh nắng mặt trời cũng không thể chiếu tới khu vực bể bơi.

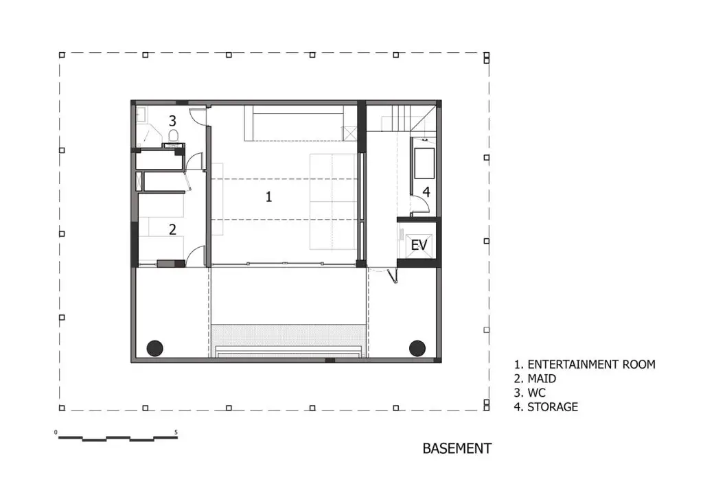
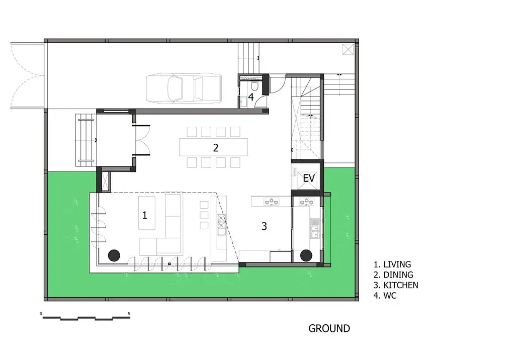
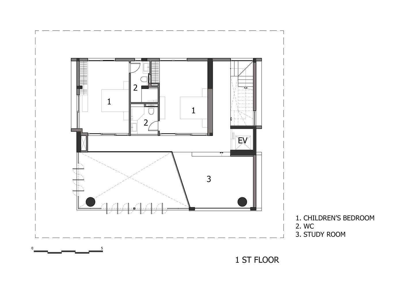
Sơ đồ
Giải pháp đề xuất đáp ứng đồng thời nhu cầu của khách hàng và tuân thủ nghiêm ngặt các quy định xây dựng địa phương.
