| DỰ ÁN: | Penthouse Thảo Điền – Căn hộ êm dịu và thoáng đãng trong khu chung cũ ở Sài Gòn. |
| DIỆN TÍCH: | 248.6m2. |
| ĐỊA ĐIỂM: | TP. Hồ Chí Minh, Việt Nam. |
| KIẾN TRÚC SƯ CHỦ TRÌ: | Nguyễn Hoàng Mạnh. |
| CÔNG TY: | MIA Design Studio. |
| NHÓM THIẾT KẾ: | Nguyễn Quốc Long, Trần Hữu Dũng, Bùi Hoàng Bảo, Lê Hồ Ngọc Thảo. |
| NHIẾP ẢNH GIA: | Hiroyuki Oki. |
Bài viết được thực hiện bởi kiến trúc sư
Chúng tôi gặp nhau vào một buổi chiều Sài Gòn ngập nắng, tại một khu chung cư cũ ở Thảo Điền. Vẫn thắc mắc vẩn vơ tại sao chị khách hàng lại lựa chọn căn hộ đã cũ kỹ xuống cấp này, thay vì một khu ở mới, hiện đại và đầy đủ tiện ích. Cho tới khi rảo bước quanh căn nhà, ánh nắng và những góc nhìn về một Sài Gòn năng động đã thực sự khơi gợi rất nhiều cảm hứng thiết kế cho chúng tôi.


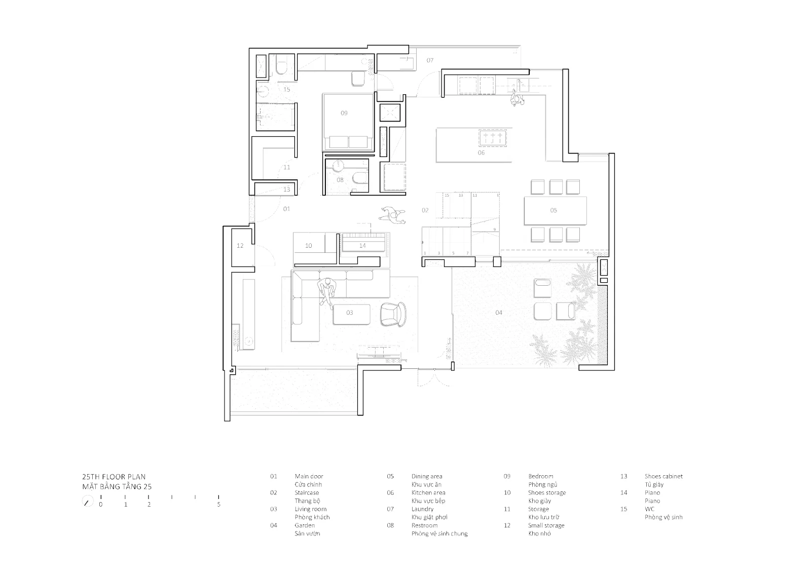
Với tiêu chí khai thác tối đa về tầm nhìn, ánh sáng và sự thông thoáng tự nhiên, chúng tôi bước vào dự án với tâm thế tràn đầy đam mê và mong muốn mang lại sự thay đổi ấn tượng nhưng dịu êm nhất cho căn hộ. Vì thế, các không gian chung được bố trí kết nối với nhau, hướng nhìn thẳng ra sông Sài Gòn. Việc bố trí các diện đặc rỗng phù hợp cũng tác động trực tiếp tới sự thông thoáng, mang đến luồng sinh khí mới. Hơn nữa, yếu tố thiên nhiên từ việc bố trí thêm sân vườn và mảng tường xanh là điểm kết nối các không gian chính, tạo cảm giác thư giãn, như được sống ở một căn biệt thự nghỉ dưỡng. Đi vào chi tiết, nhằm tăng hiệu quả về khối tích không gian, chúng tôi đã sử dụng yếu tố tối giản cho các diện mảng lớn. Đồng thời, từng món đồ nội thất xuất hiện trong căn nhà đã được cân nhắc, chọn lựa để tạo sự hài hòa cũng như mang lại những điểm nhấn thú vị cho từng không gian.
Và tới cuối cùng, việc tôn trọng và phát huy những giá trị tiềm năng của không gian nơi đây, đã mang đến sự thoải mái, bình yên cho khách hàng mỗi khi trở về sau ngày dài làm việc.




Sân vườn và mảng tường xanh là điểm kết nối các không gian chính như phòng khách và bếp ăn.






