| DỰ ÁN: | Phong House – Vẻ đẹp dung hòa giữa con người với tự nhiên. |
| DIỆN TÍCH: | 250m2. |
| ĐỊA ĐIỂM: | Đà Nẵng, Việt Nam. |
| KIẾN TRÚC SƯ CHỦ TRÌ: | Võ Văn Thành. |
| CÔNG TY: | Milimet Vuông. |
| NHÓM THIẾT KẾ: | Milimet Vuông. |
| NHIẾP ẢNH GIA: | Quang Trần. |
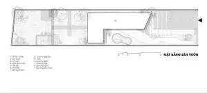
Phong House là một ngôi biệt thự nhỏ hiện đại, được thiết kế và xây dựng trên khu đất 600m2, với tổng diện tích sàn là 250m2. Phần không gian diện tích còn lại dành cho sân vườn, hồ bơi nhỏ, sân đậu xe ô tô. Thời gian xây dựng hoàn thiện 8 tháng, chi phí 3,8 tỷ chưa bao gồm thiết bị điện tử.




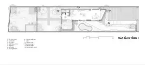
Công năng chính của ngôi nhà bao gồm phòng khách, bếp, 3 phòng ngủ, 1 phòng làm việc và các không gian chung khác. Toàn bộ bên trong ngôi nhà được thiết kế theo lối không gian mở, nên các phòng được thiết kế lấy trọn vẹn ánh sáng và thông gió tự nhiên. Vừa đem đến cảm giác thoáng đãng, dễ chịu, bên cạnh đó đem lại tầm nhìn lớn hơn 180 độ, tạo ra không gian vừa rộng vừa sâu, tận hưởng mọi góc nhìn yêu thích xung quanh ngôi nhà.

Ở bên ngoài, khu vực bể bơi nhỏ có độ sâu chỉ từ 70-80cm, được thiết kế theo phong cách nhiệt đới, vừa là khu vực giải trí cho trẻ em, vừa tạo điểm nhấn thêm cho không gian trọn vẹn các yếu tố tự nhiên hơn.




Một trong những điểm nhấn đặc biệt của ngôi nhà là mái hiên vươn xa khỏi tầng 1 dài đến 6,7m, được các kỹ sư của Milimet Vuông tính toán chính xác và an toàn. Trong đó, giải pháp sử dụng là tăng cường thêm số lượng sắt thép, chứ không sử dụng thêm các công nghệ khác.
Về tổng thể ngôi nhà, mang theo âm hưởng phong cách nhiệt đới (tropical style), sử dụng các chất liệu chính như gỗ, cây xanh, tạo nên không gian nhiệt đới vô cùng ấn tượng,…



Khu vực bên trong nội thất được tối giản, thiên hướng Wabi Sabi. Cùng với đó, việc sử dụng những vật liệu chống nóng góp phần đem lại giải pháp hợp lý, an toàn, cải thiện và nâng cao chất lượng môi trường sống.



Từ kết cấu, vật liệu, chất liệu trang trí, màu sắc hay diện mạo ngoại thất, từ tổng thể đến từng chi tiết, chủ nhà không quá chú trọng sự xa hoa, đồ sộ,… mà chính là yếu tố vừa vặn, vừa đủ chứa đựng những tâm tư, sở thích và mong muốn của chủ nhân vào ngôi nhà của riêng mình. Vừa đủ để tận hưởng sự riêng tư, cũng là món quà dành tặng cho chính bản thân gia chủ cùng những người yêu thương trong gia đình.




Cho dù ở độ tuổi nào, khi có thể ổn định, vững chắc về tài chính, niềm mong mỏi một chốn về, để thảnh thơi, làm việc mình thích, dù là trồng rau nuôi cá hay ngắm mưa, viết sách,… đều là những điều tuyệt vời, chân thật nhất mà chúng ta ai ai cũng muốn nắm giữ!