Dự án
Studio
Suppliers
Creators
Tin tức
Mẫu thiết kế
mới
Xu hướng thiết kế nội thất 2026
Tin tức
Tư vấn
Podcast
Đăng nhập
Đăng ký
Design & Build Planning
Dự án
Studio
Suppliers
Creators
Tin tức
Mẫu thiết kế
mới
Xu hướng thiết kế nội thất 2026
Tin tức
Tư vấn
Tin nổi bật
Căn hộ
Nhà phố
Penthouse
Tin nổi bật
Xu hướng
Tin nổi bật
Báo giá
Mua sắm
Nhà thầu
Pháp lý
Phong thủy
Podcast
Đăng nhập
Đăng ký
Design & Build Planning
Trang Chủ
Dự án
Nhà Ở
,
Nhà Phố
Q Villa
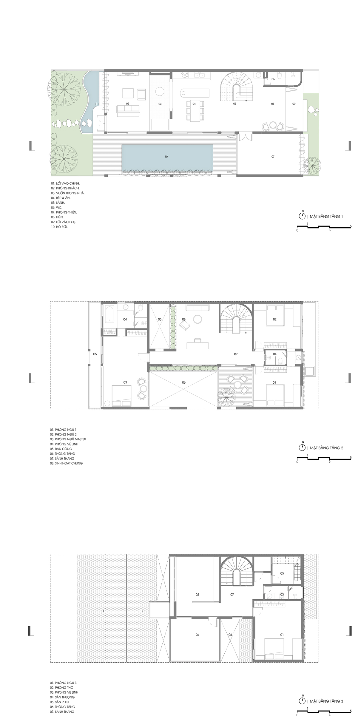
DỰ ÁN:
Q Villa.
DIỆN TÍCH:
250m2.
ĐỊA ĐIỂM:
Đà Nẵng
,
Việt Nam
.
CÔNG TY:
An Nam Design and Build
.
NHÓM THIẾT KẾ:
An Nam Design and Build.
Chia sẻ bài viết này
Sao chép liên kết bài viết
X
Loading...
×
Ask Dezon
Ask Dezon
Clear chat
×
Phong cách này là gì?
Giá thiết kế dự án này?
Giá thi công dự án này?
Thời gian thiết kế bao lâu?
Thời gian thi công bao lâu?
Vật liệu này là gì?
×