| DỰ ÁN: | S HOUSE 3. |
| DIỆN TÍCH: | 31m2. |
| ĐỊA ĐIỂM: | TP. Hồ Chí Minh, Việt Nam. |
| KIẾN TRÚC SƯ CHỦ TRÌ: | VTN Architects. |
| CÔNG TY: | VTN Artchitects. |
| NHÓM THIẾT KẾ: | VTN Architects. |
| NHIẾP ẢNH GIA: | Hiroyuki Oki. |

Mô tả bằng văn bản do các kiến trúc sư cung cấp. Dự án theo chuỗi, mang tên “Nhà S”, đã bắt đầu đề xuất một mô hình nhà ở mẫu cho tầng lớp thu nhập thấp ở khu vực Đồng bằng sông Cửu Long. Sau khi xây dựng thành công hai ngôi nhà nghiên cứu điển hình, một mô hình kết cấu thép vào năm 2012 và một mô hình kết cấu bê tông đúc sẵn vào tháng 4 năm 2014, một mô hình mẫu mới, Nhà S 3, đã được xây dựng tại Thành phố Hồ Chí Minh.

Mục tiêu của dự án này là cung cấp những ngôi nhà kiên cố nhưng nhẹ, bền vững nhưng giá cả phải chăng cho người thu nhập thấp trong điều kiện khí hậu nhiệt đới khắc nghiệt. Mặc dù gặp nhiều thách thức địa phương như nền đất yếu, bão thường xuyên và nguy cơ động đất, cấu trúc vẫn đủ vững chắc để chịu được thiên tai. Các phương pháp thiết kế thụ động được áp dụng xuyên suốt chuỗi dự án, bao gồm nhưng không giới hạn ở: ánh sáng và thông gió tự nhiên.

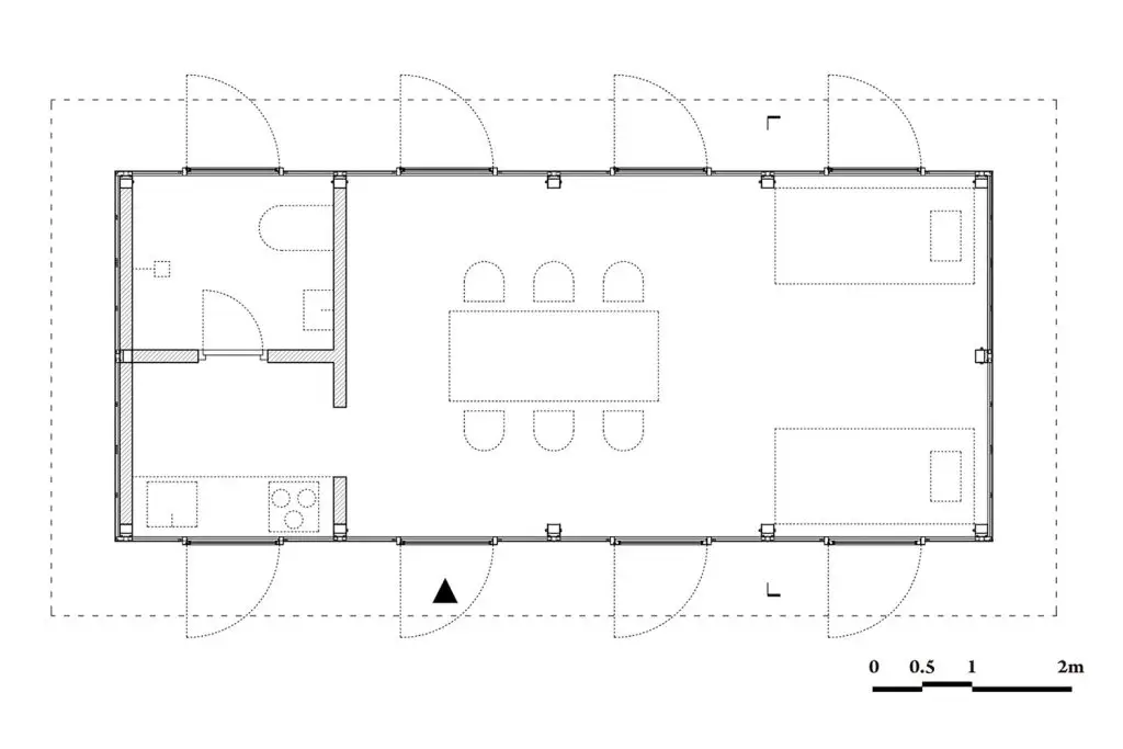
Sơ đồ mặt bằng
Kết hợp những ưu điểm của nguyên mẫu thứ nhất và thứ hai, S House 3 đạt được độ bền, tính linh hoạt và khả năng thi công dễ dàng hơn, đồng thời vẫn duy trì được giá cả phải chăng và trọng lượng nhẹ của dòng sản phẩm. Cấu trúc chính được làm từ thép nhẹ. Các bức tường lưới thép mảnh mai giúp cố định, nâng đỡ và làm cứng toàn bộ khung. Nhờ đó, số lượng dầm được giảm thiểu, giảm đáng kể lượng thép so với các nguyên mẫu trước đây – cấu trúc này chỉ nặng 1.200kg. Bệ đỡ, được tích hợp với móng, được làm bằng bê tông cốt thép. Nhờ vậy, cấu trúc thép mạ kẽm được cách ly khỏi mặt đất, đảm bảo độ bền ngay cả trong điều kiện khí hậu có nhiệt độ và độ ẩm cao.

Cũng như các nguyên mẫu trước đây, chiến lược xây dựng cơ bản là sự kết hợp giữa các cấu kiện kết cấu dạng mô-đun và các chi tiết hoàn thiện tự lắp ráp. Việc chế tạo sẵn giúp kiểm soát chất lượng, quản lý chi phí và sản xuất hàng loạt trong tương lai. Khung thép mạ kẽm và móng bê tông đúc sẵn đảm bảo độ ổn định và độ chính xác đã được xác định trước.

Kết cấu nhẹ cho phép móng nhỏ hơn và dễ dàng vận chuyển bằng thuyền nhỏ, vì đường thủy vẫn là phương tiện giao thông chủ yếu ở một số khu vực tại Việt Nam. Bằng cách đổ thêm bê tông, móng nhỏ gọn này có thể được mở rộng tại chỗ nếu cần thiết. Khung nhẹ với các mối nối bu lông đơn giản cũng khuyến khích người dân và hàng xóm tham gia xây dựng. Tất cả các bộ phận được thiết kế nhẹ hơn 60kg, để dễ dàng vận chuyển và thi công – chỉ mất ba giờ để lắp ráp toàn bộ cấu trúc và mái nhà.

Các vật liệu hoàn thiện đều có thể được lắp ráp và thay thế dễ dàng bởi người dân và hàng xóm. Đối với mẫu thử nghiệm, tấm xi măng nhẹ được chọn làm vật liệu ốp tường.

Các vật liệu hoàn thiện đều có thể được lắp ráp và thay thế dễ dàng bởi người dân và hàng xóm. Đối với mẫu thử nghiệm, tấm xi măng nhẹ được chọn làm vật liệu ốp tường.

Mẫu thử nghiệm mới nhất đang được phát triển, S House 4, sẽ trải rộng trên một không gian lớn hơn nhiều. Do đó, nó linh hoạt hơn trong sử dụng so với các mẫu thử nghiệm trước đó; không chỉ giới hạn ở chức năng nhà ở, nó có thể đáp ứng nhiều chức năng khác nhau như bán lẻ, trường học và phòng khám, những nhu cầu ngày càng tăng ở các nước đang phát triển.