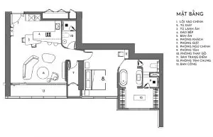
Câu chuyện nội thất của Sunwah Apartment gắn với quan niệm sống đơn giản, thoải mái, nhẹ nhàng, trong không gian tối giản, gắn kết với cảnh quan. Một đề bài được đa số gia chủ đều mong ước nhưng không phải lúc nào cũng đạt được trong thực tế. Căn hộ Sunwah có cấu trúc mặt bằng giật cấp lệch về một bên so với lối vào. Điều này, dễ khiến tạo ra trục giao thông đi lại xuyên các phòng và tính “mở” của không gian chung giữa bếp ăn cùng phòng khách có thể sẽ là trở ngại nếu xử lý không khéo léo.

Thiết kế chú trọng sự tối giản trong vật dụng nội thất. Phòng khách và phòng ăn không có vách ngăn, nhằm tạo sự thoáng đãng, rộng rãi và tăng không khí sum vầy, ấm cúng cho khu vực sinh hoạt chung


Các nhà thiết kế đã sử dụng các chất liệu hoàn thiện mang tính thô mộc, tối giản như sơn hiệu ứng bê tông, đá xám trắng… với rất ít khác biệt về màu sắc. Không gian nhờ thế trở nên ước lệ, xóa nhòa ranh giới ngăn chia và đem lại hiệu quả nhẹ nhàng.
Tổng thể căn nhà được sơn hiệu ứng bê tông, đá xám trắng tạo nên không gian mang tính ước lệ, xóa nhòa ranh giới ngăn chia

Thiết kế cũng đã có nhiều nhấn nhá thú vị vào phần đồ nội thất như ghế bar, tủ bếp, sofa… khiến căn hộ trở nên tiệm cận với phong cách tối giản. Cảm giác “không có gì là thừa” ở đây, các chi tiết được lựa chọn kỹ lưỡng và đặt để có chủ đích.
Các chi tiết bo tròn của góc phòng và nội thất làm mềm đi không gian ngỡ như đã đóng khung ban đầu. Phòng ngủ có thiết kế tone màu xám trắng toàn phần “chẳng có gì đáng kể”, còn phòng tắm và phòng thay đồ bên cạnh lại mở ra góc nhìn thú vị đầy ắp kết nối với hình ảnh dòng sông bên ngoài.




Cứ thế, như nhịp chậm trôi của dòng sông xa xa qua khung cửa sổ, căn hộ cũng chậm rãi đong đầy nhịp sống. Không phải bởi cách sắp đặt cầu kỳ, ánh sáng được bật sáng đúng chỗ, mảng gỗ xuất hiện đúng vùng sử dụng, chi tiết bo nhẹ hay xoay nghiêng được dùng để tạo khác biệt… tất cả giúp căn hộ tạo nên một lời thì thầm nhỏ nhẹ mà rõ ràng: nơi ngụ cư cần lắm những chọn lọc hài hòa.