| DỰ ÁN: | Terraced Field House. |
| DIỆN TÍCH: | 700m2. |
| ĐỊA ĐIỂM: | Việt Nam. |
| KIẾN TRÚC SƯ CHỦ TRÌ: | Trần Lê Quốc Bình. |

Mô tả bằng văn bản do các kiến trúc sư cung cấp. Ngôi nhà sang trọng này, vừa mới hoàn thành gần đây, là một ví dụ tuyệt vời về thiết kế đáp ứng sở thích của chủ nhà hơn là chỉ làm hài lòng gu thẩm mỹ của kiến trúc sư. Chủ nhà là những người thành đạt trong kinh doanh, giàu kinh nghiệm sống và có quan niệm kiến trúc khác biệt. Trong khi người chồng yêu thích phong cách độc đáo và sáng tạo, người vợ lại ưa chuộng sự tiện nghi và thiết thực. Sự kết hợp này đã truyền cảm hứng cho kiến trúc sư Trần Lê Quốc Bình tạo nên một thiết kế tài tình.


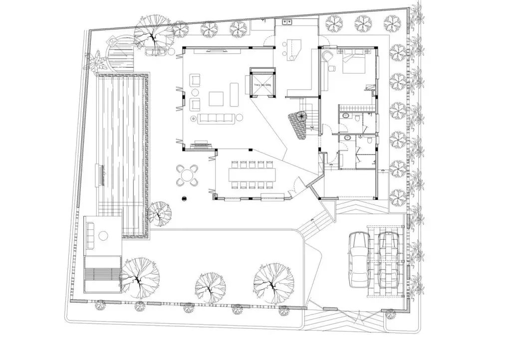
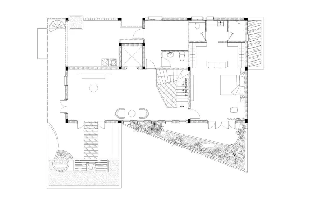
Sơ đồ mặt bằng tầng trệt

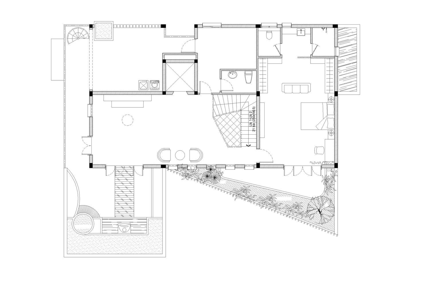
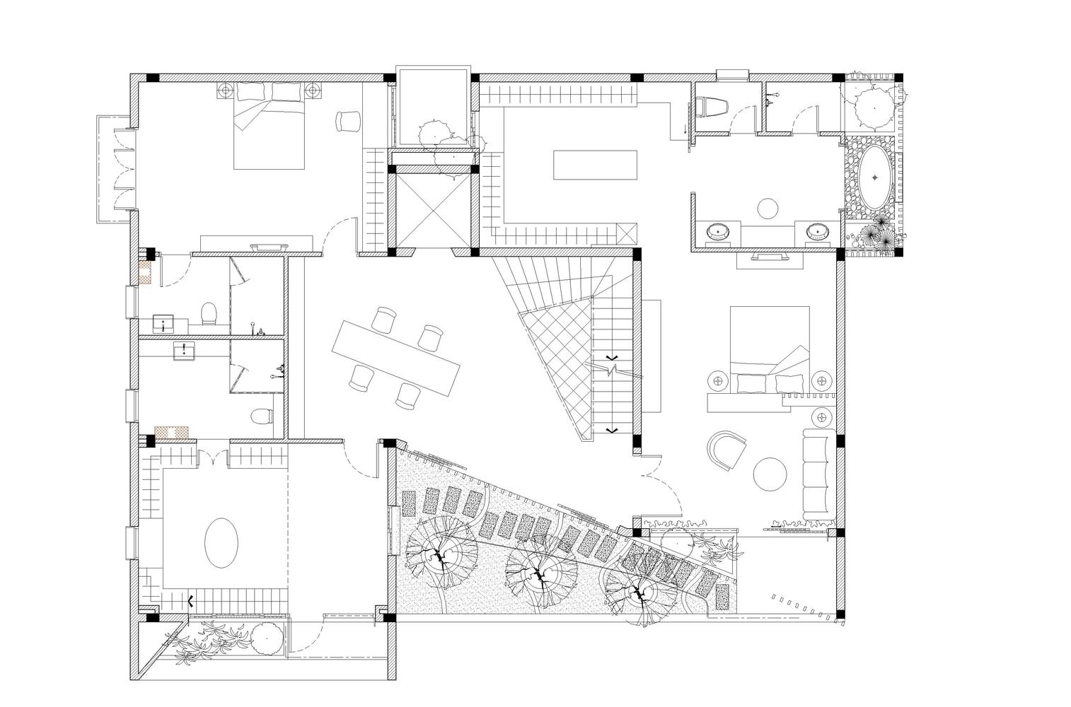
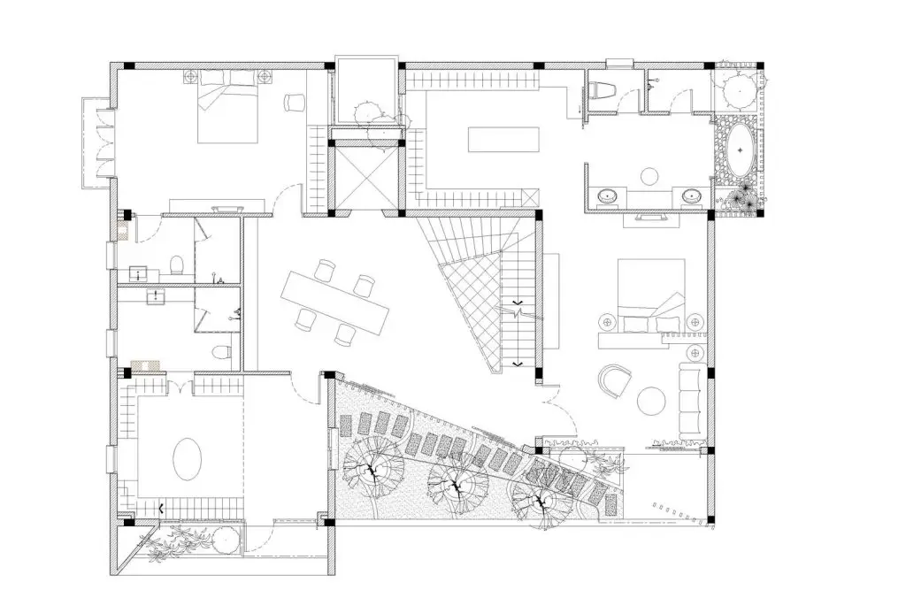
Độ cao

Từ bên ngoài, hàng rào phủ đầy cây xanh tươi tốt dẫn dắt người qua đường vào một thế giới đầy kinh ngạc, chỉ để lộ ra kiệt tác rạng rỡ phía sau – ngôi nhà. Ngay sau cánh cổng, một sự hiện diện độc đáo khiến du khách ngỡ ngàng, trưng bày một loạt các hình khối kỳ lạ kết hợp với mái lợp bằng gỗ – theo phong cách nhà bậc thang. Tất cả những điều này đã làm nên sự độc đáo của ngôi nhà.

Trong phòng khách, đèn treo trần kiểu “tổ chim” hài hòa với gỗ ốp quanh thang máy, tạo nên sự tương đồng giữa tổ chim và cây cối. Các tấm lan can được chạm khắc hoa văn tinh xảo. Khu vực phòng ăn và nhà bếp đều phù hợp với phong cách và nhu cầu của chủ nhà. Cả hai đều có tầm nhìn thoáng ra khu vườn. Vật liệu trong nhà bếp dễ lau chùi và bảo trì. Bộ bàn ăn phù hợp với chất liệu gỗ được sử dụng cho trần và sàn nhà.

Phòng chiếu phim được trang bị thiết bị công nghệ cao, với vật liệu cách âm và hấp thụ âm kết hợp với tường nhung tạo nên trải nghiệm điện ảnh. Bên cạnh đó, việc sử dụng hiệu ứng của các yếu tố nước như bể bơi và ao cá Koi, được ngăn cách bởi cây xanh cũng là một ý tưởng nhằm hài hòa và thích ứng với những khác biệt giữa vợ chồng.

Không gian nội thất chủ yếu tập trung vào sự tiện nghi, từng chi tiết đều được chăm chút tỉ mỉ để tối đa hóa sự thoải mái cho người sử dụng. Chủ nhà đã đặt ra mục tiêu rõ ràng cho ngôi nhà của mình ngay từ đầu: đảm bảo mỗi khi trở về nhà, họ sẽ cảm thấy thoải mái hơn bất kỳ khách sạn hay khu nghỉ dưỡng nào. Ngôi nhà xinh đẹp này đã làm hài lòng cả hai vợ chồng: mặt tiền và ngoại thất khiến người chồng hài lòng, trong khi nội thất đáp ứng mọi chức năng mà người vợ mong đợi.
