BREAK THE RULES – PHÁ VỠ CÁC NGUYÊN TẮC
“Tôi muốn tạo ra một xu hướng của riêng mình, không xuôi theo dòng chảy hiện tại, không bị bó buộc trong bất kì giới hạn nào. Đó là cách sống của tôi.”



Vị khách đặc biệt lần này của APS Concept là một phụ nữ độc thân thành đạt chuyên về lĩnh vực truyền thông marketing. Vì tính chất công việc luôn di chuyển giữa các quốc gia nên suy nghĩ về không gian sinh hoạt của chị cũng theo lối mở hơn. Với chị, không gian sống không chỉ dừng lại việc đáp ứng đầy đủ các công năng, mà còn là nơi thể hiện cá tính của bản thân, chị không muốn một không gian quá gò bó, vào khuôn khổ rõ ràng.Đây cũng chính là một trong những tiền đề quan trọng để APS Concept phát triển ý tưởng.
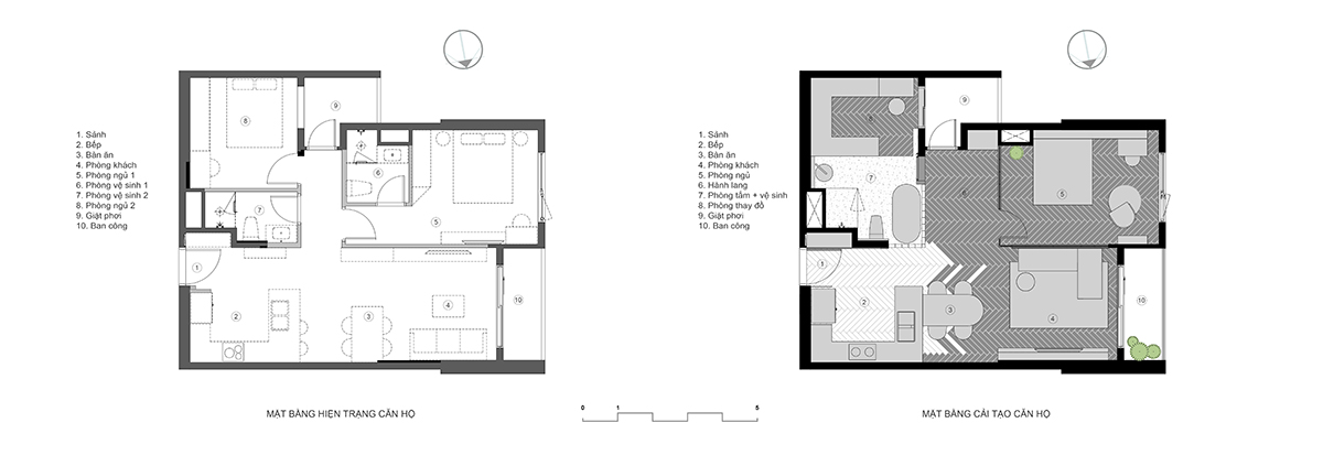
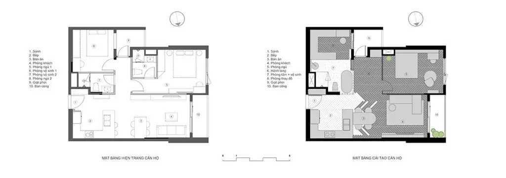
Mặt bằng căn hộ trước và sau khi cải tạo: Phá bỏ các không gian không cần thiết, kết nối các không gian với nhau.
Căn hộ với diện tích 76m2, được chia làm 2 phòng ngủ, một nhà vệ sinh chung và một riêng cho phòng ngủ chính. Đây là một trong nhưng mô hình cơ bản cho các căn hộ hiện nay.


Yếu tố không gian, ánh sáng và con người luôn là điều mà APS Concept hướng đến. Sau khi tìm hiểu mong muốn của khách hàng, chúng tôi đưa ra lựa chọn phá bỏ các chức năng không gian không cần thiết, phá bỏ ranh giới giữa riêng và chung.

Hình ảnh căn hộ trước và sau khi cải tạo.
Vật liệu kính chính là sự lựa chọn hoàn hảo mà KTS muốn đưa vào toàn bộ không gian. Không chỉ dừng ở việc đem ánh sáng tràn đầy khắp phòng, mà vật liệu kính trên thị trường hiện nay đã có nhiều mẫu mã đa dạng hơn, việc lựa chọn hơn một mẫu kính làm không gian không rối ren mà còn tạo thêm nhiều điểm nhấn.

Gạch kính được sử dụng cho việc ngăn cách giữa không gian sinh hoạt chung với khu vực thay đồ – vệ sinh. Các đường vân trên gạch kính khi được ánh sáng chiếu vào tạo nên hiệu ứng đặc biệt.


Hệ vách kính trong kết hợp với kính đúc ngăn cách phòng ngủ với không gian sinh hoạt.

Gam màu trung tính, tối ưu hóa – đồng nhất các vật liệu.
Chúng tôi quyết định sử dụng gam màu trung tính đen – xám – trắng là tông màu sắc chủ đạo của căn hộ.
Vật liệu hoàn thiện ( tường sơn, sàn gạch…) được thay đổi hoàn toàn. Bỏ đi sự đơn điệu của tường sơn nước, APS Concept sử dụng sơn hiệu ứng bê tông phủ lên bề mặt tường. Sàn gỗ kết hợp với sàn đá được xếp đặt ngẫu hứng vừa tách biệt hai không gian khách – bếp nhưng vẫn giữ sự liền mạch, liên kết giữa các không gian.

Xếp đặt ngẫu hứng giữa đá và gỗ tạo sự liên kết cũng như điểm nhấn không gian.

Tối ưu hóa các vật liệu là điều mà APS Concept luôn hướng đến. Sử dụng thống nhất các vật liệu chính như gỗ, đá, sắt theo sự chuyển màu từ đậm đến nhạt, cùng với cách “chơi” đèn. Ánh sáng vàng giúp cho không gian thêm phần ấm áp, khi ánh sáng chiếu vào ở những mảng kính có vân nổi sẽ có độ loan mờ thích mắt.

Sử dụng ánh sáng vàng vào trong không gian.

Không gian bếp.

Điểm đặc biệt được đưa vào trong thiết kế lần này là bàn ăn “bay”, sự kết hợp giữa mặt đá và chân bàn bằng kính đúc. APS Concept không chỉ đảm bảo được công năng mà còn mang đến điều khác biệt trong mỗi thiết kế.

Chân bàn bằng kính đúc tạo cảm giác bay bổng.
Ở khu vực nhà vệ sinh, sàn và tường đều được làm bằng đá mài trắng, xen vào đó là một số gạch hoa văn lục giác nhấn nhẹ nhàng trong không gian.


Gạch kính với vân nổi lượn sóng kết hợp với ánh sáng vàng hắt vào khiến không gian thêm huyền ảo, thích hợp cho việc đặt một bồn tắm nằm để thư giãn sau một ngày làm việc vất vả.


Vì phòng thay đồ có diện tích khá nhỏ nhưng CĐT muốn tận dụng hết không gian để chứa quần áo nên các KTS sử dụng hệ khung nhôm cánh kính đen, tạo cảm giác xuyên suốt, không gian như được mở rộng hơn.


Không gian phòng ngủ


APS Concept luôn đùa rằng “Không thiết kế một kiểu dáng cho hai ngôi nhà”, luôn mang trong mình sứ mệnh sáng tạo, sáng tạo và không ngừng sáng tạo. “Break the rules”, chúng tôi luôn không ngừng phát triển để mang lại cho khách hàng một không gian sống đặc biệt, tận hưởng và hòa mình vào trong nó.