| DỰ ÁN: | Văn phòng SRDP-IWMC. |
| DIỆN TÍCH: | 1307m2. |
| ĐỊA ĐIỂM: | Việt Nam. |
| KIẾN TRÚC SƯ CHỦ TRÌ: | Doan Thanh Ha, Tran Ngoc Phuong. |
| CÔNG TY: | H&P Architects. |
| NHÓM THIẾT KẾ: | Nguyen Minh Duc, Nguyen Hai Hue, Ho Manh Cuong, Nguyen Van Thinh. |

Mô tả công trình do các kiến trúc sư cung cấp. Tọa lạc tại trung tâm thành phố Hà Tĩnh, trên con phố có nhiều cơ quan chính phủ, Văn phòng Ban Điều phối SRDP-IWMC Hà Tĩnh là trụ sở chính của dự án SRDP (tổ chức IFAD) và dự án IWMC (được ODA tài trợ bởi chính phủ Bỉ). Tổng chi phí bị hạn chế và cần tái sử dụng tối đa các đồ nội thất văn phòng hiện có.

Biến đổi khí hậu là một vấn đề đáng chú ý và đã ảnh hưởng toàn diện đến khu vực thành thị và nông thôn của Hà Tĩnh. Hơn nữa, quá trình đô thị hóa nhanh chóng đang làm mất cân bằng khu vực nông thôn. Diện tích đất nông nghiệp bị thu hẹp, ảnh hưởng nghiêm trọng đến cuộc sống ổn định của người dân địa phương.

Ý tưởng thiết kế của dự án là sự tổng hợp giữa canh tác định cư và khu dân cư nhằm đạt được ba mục tiêu: Hình ảnh mang tính biểu tượng + Chi phí thấp + Thi công nhanh chóng.

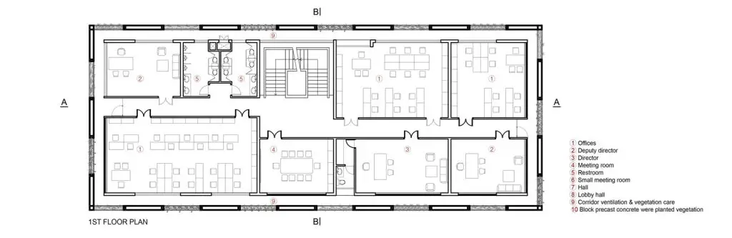
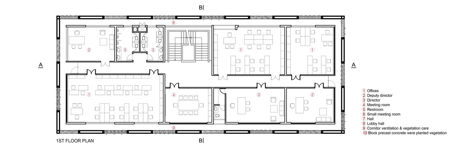
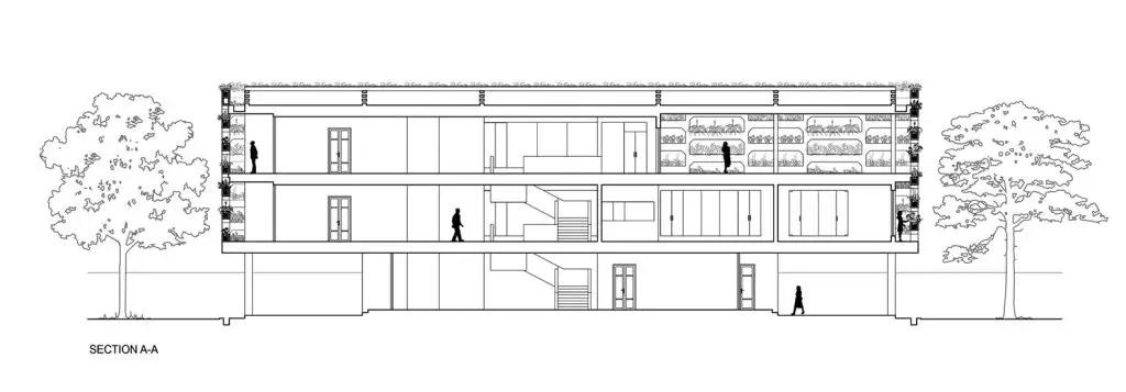
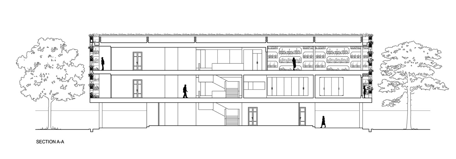
Khối nhà ba tầng được đặt theo hướng Đông-Tây. Hai tầng trên được bao phủ bởi một cấu trúc dạng lưới trồng đầy cây cối và hoa màu, mà chúng tôi gọi là Cánh đồng thẳng đứng. Cấu trúc này, được tạo thành từ các khối bê tông 400mm x 400mm xếp chồng lên nhau theo chiều dọc, bao trùm toàn bộ không gian làm việc bên trong.

Hệ thống tưới tiêu được tích hợp giữa các khe hở giữa các khối nhà, giảm thiểu tác động tiêu cực của các vấn đề đô thị và khí hậu địa phương như tiếng ồn, ô nhiễm không khí, quá nóng và bão. Đồng thời, môi trường làm việc thân thiện với nông nghiệp này tạo ra trải nghiệm khác biệt cho người sử dụng, cho phép họ tự tay trồng rau.

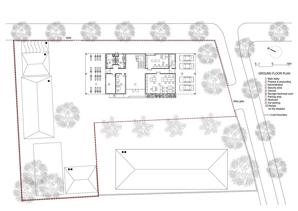
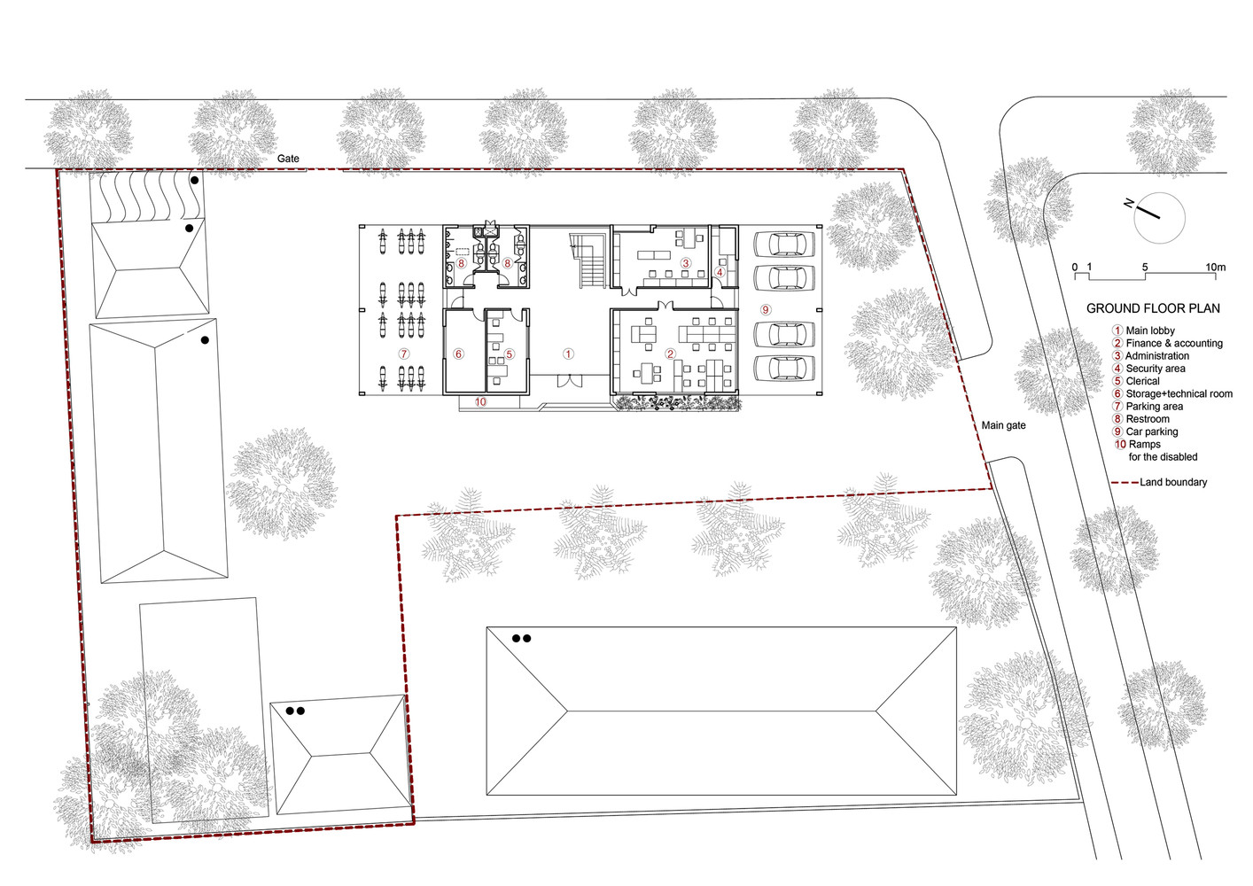
Sơ đồ mặt bằng tầng trệt
Dự án này là một ý tưởng nhằm cải thiện việc sử dụng rau quả trong bối cảnh đô thị và vẫn đáp ứng được nhu cầu năng lượng trong tương lai. Sự kết hợp giữa nông nghiệp và kiến trúc là nền tảng cho sự phát triển bền vững.

Ghi chú:
+ Dự án Phát triển Nông thôn Bền vững cho Người nghèo tại Hà Tĩnh (SRDP)
+ IFAD (Quỹ Phát triển Nông nghiệp Quốc tế)
+ IWMC (Dự án quản lý tài nguyên nước và quy hoạch đô thị tích hợp liên quan đến biến đổi khí hậu tại tỉnh Hà Tĩnh)\