| CÔNG TY: | Pham Huu Son Architects. |
| NHÓM THIẾT KẾ: | Pham Huu Son Architects. |
| NHIẾP ẢNH GIA: | Hiroyuki Oki. |
Trong dòng chảy đô thị hóa gấp gáp, việc xây nên những không gian sống xanh trở thành bài toán đầy thách thức với các nhà quy hoạch và kiến trúc sư. VCN Nha Trang Housera đời như một lời giải đầy sáng tạo, nơi kiến trúc hiện đại tinh tế hòa quyện cùng thiên nhiên, mở rộng giới hạn của nhà phố đa chức năng giữa lòng đô thị hiện đại.
Mỗi đường nét thiết kế, mỗi khoảng sân vườn, mỗi mảng xanh được sắp đặt như một phần nhịp thở tự nhiên len lỏi vào đời sống thường nhật. Không chỉ là một công trình nhà ở, VCN Nha Trang House là lời mời gọi về một phong cách sống cân bằng. Ở đó, con người vẫn có thể tìm thấy sự bình yên, mềm mại của thiên nhiên giữa những nhịp điệu đô thị sôi động.

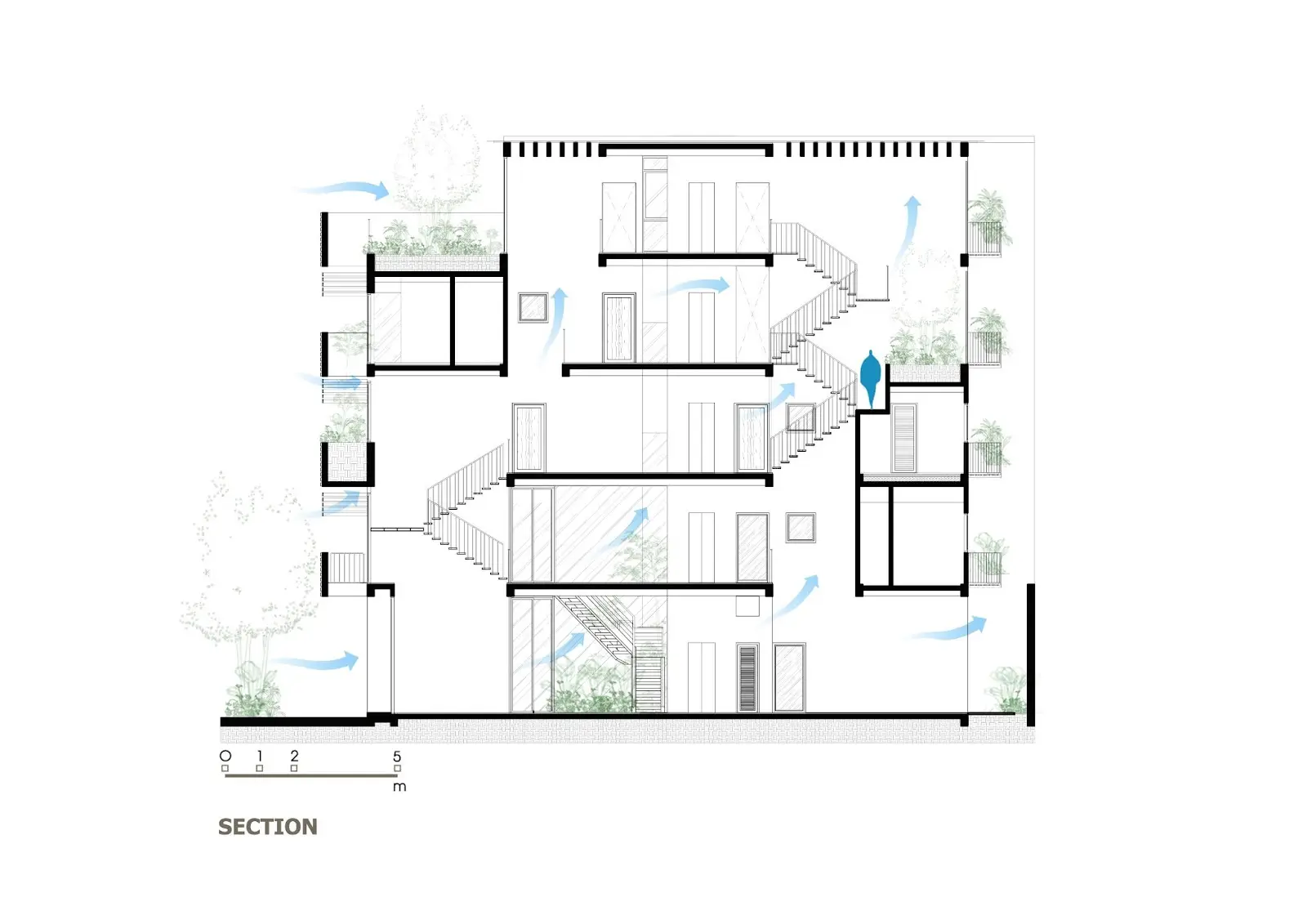
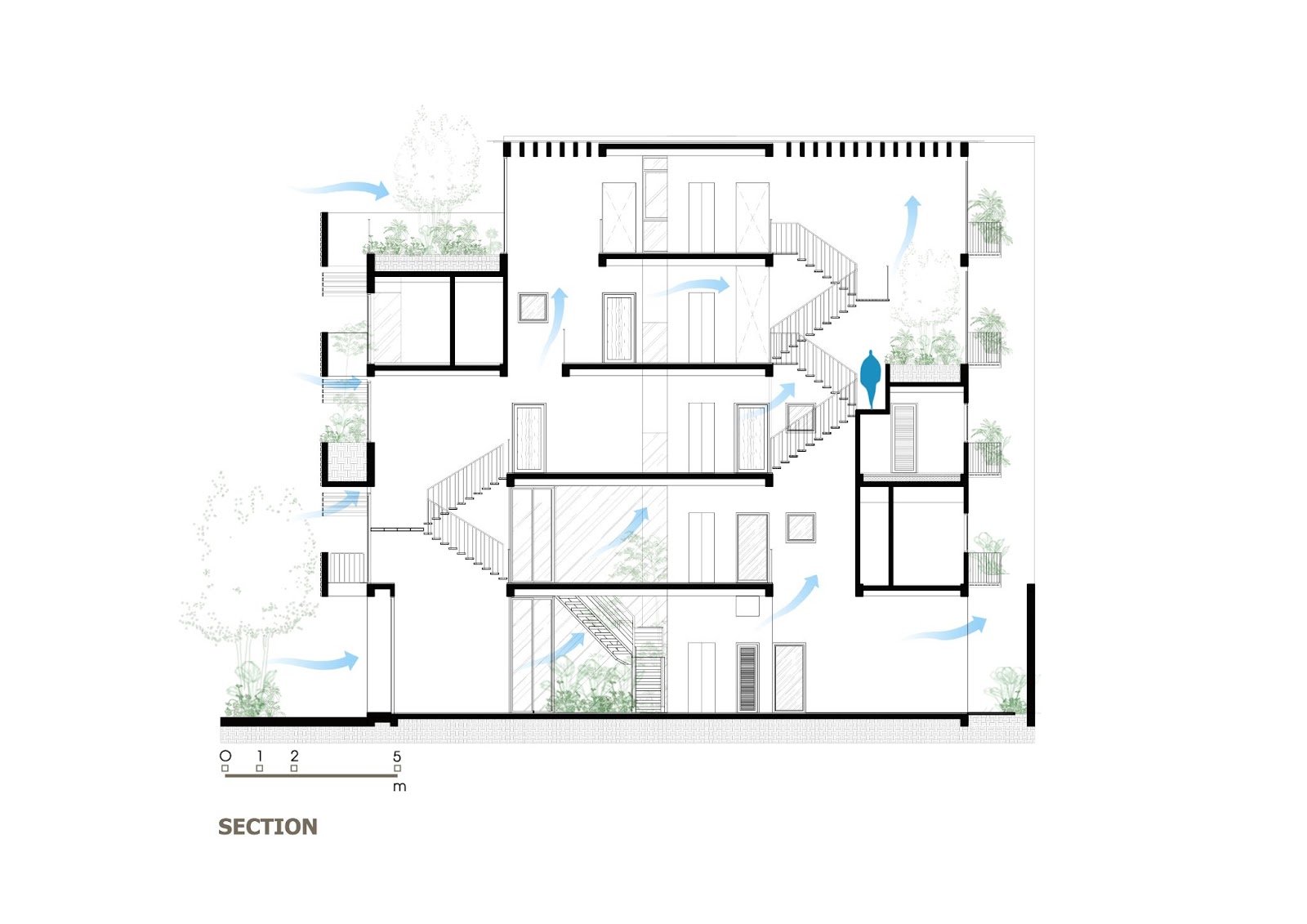
Trong bối cảnh đô thị Việt Nam không ngừng mở rộng, nhu cầu nhà ở và giá trị bất động sản tăng cao, VCN Nha Trang House cũng như nhiều mô hình nhà lô khác, có kết cấu 5 tầng bao gồm cả sân thượng, không gian sống thiết kế linh hoạt nhằm đáp ứng đa dạng nhu cầu của từng thành viên trong gia đình.
Tầng 1 và tầng 2 được quy hoạch dành riêng cho các hoạt động kinh doanh. Từ tầng 3, không gian chuyển mình mềm mại với hai căn hộ biệt lập cùng khu vực sinh hoạt chung ấm cúng. Ở những tầng trên cùng, khu vực nghỉ ngơi được bố trí như những khoảng lặng tinh tế, để gia đình tìm về sự thư giãn, tận hưởng sự riêng tư và tiện nghi trọn vẹn.




Mặt tiền công trình được xử lý như một lớp vỏ đa tầng, nơi kỹ thuật và mỹ cảm giao thoa. Đá tự nhiên được cắt nhỏ, xếp lớp theo phương ngang tạo hiệu ứng thẩm mỹ về chiều sâu thị giác. Xen kẽ vào đó, hệ lam che nắng và mảng xanh được bố trí có chủ đích, vừa thẩm mỹ vừa giúp điều tiết ánh sáng tự nhiên, hạn chế bức xạ trực tiếp, đồng thời kiểm soát góc nhìn từ bên ngoài, duy trì mức độ riêng tư cho gia đình.

Ở VCN Nha Trang House, cây xanh được đưa vào một cách thông minh, làm thành một “trục sinh thái” xuyên suốt từ mặt tiền vào sâu bên trong, từ tầng trệt lên đến sân thượng. Mảng xanh vừa là yếu tố trang trí, vừa đóng vai trò như một hệ sinh thái mini để điều tiết ánh sáng, không khí và nhiệt độ tự nhiên cho toàn bộ ngôi nhà.
Trung tâm của hệ sinh thái ấy là giếng trời kết nối thẳng từ mái xuống các tầng dưới, đưa ánh sáng vào tràn ngập, không khí được đối lưu liên tục, và cây xanh vươn mình trong khu vườn thu nhỏ giữa ngôi nhà. Các dải cây xanh tiếp tục len lỏi dọc theo hành lang, bậc thang… làm dịu cảm giác đặc khối thường gặp ở nhà phố. Trên sân thượng, khu vườn nhỏ mở ra một chốn thư giãn đầy riêng tư cho gia đình, để họ tạm quên đi sự vội vã hàng ngày, trở về với sự tĩnh tại và an yên.



Tại VCN Nha Trang House, kiến trúc sư kế đặt trọng tâm vào việc khai thác triệt để các nguồn năng lượng tự nhiên thông qua giải pháp kiến trúc thụ động, hướng đến mục tiêu tiết kiệm năng lượng đáng kể. Hệ thống thang máy trung tâm kết hợp với ba cầu thang bộ được bố trí theo ba hướng khác nhau, tạo nên sự phân bổ ánh sáng tự nhiên và không khí trong lành một cách chủ động. Thiết kế mở của các không gian giao thông này được bao bọc bởi cây xanh như lớp đệm sinh thái giúp điều hòa nhiệt độ, đồng thời mang lại trải nghiệm thị giác và cảm giác thư thái, gần gũi thiên nhiên khi di chuyển trong nhà.
Nhóm thiết kế sử dụng kính lớn và vách kính cùng khe lấy gió để không khí đối lưu liên tục, góp phần duy trì sự thông thoáng tự nhiên, giảm thiểu bức xạ nhiệt tích tụ bên trong. Các lam chắn nắng được bố trí đúng nơi đúng chỗ, giúp hạn chế nhiệt lượng mặt trời trực tiếp và duy trì nguồn sáng dịu nhẹ, từ đó tiết kiệm năng lượng cho hệ thống làm mát.

Điểm nhấn của công trình là mái kính với hệ thống thông gió gián tiếp, kết hợp lam gỗ trang trí đặt trên các lối thang, không chỉ giúp thoát khí nóng tích tụ mà còn đưa ánh sáng tự nhiên sâu vào lõi công trình. Tất cả các yếu tố này đều được nghiên cứu và vận dụng linh hoạt để kiến tạo một môi trường sống thân thiện, mát mẻ, tận dụng triệt để nguồn năng lượng tự nhiên, đồng thời thể hiện tinh thần thiết kế bền vững và tôn trọng môi trường.
Nội thất của VCN Nha Trang House theo phong cách hiện đại, tối giản, chú trọng vào tiện nghi, nhằm xây dựng một không gian sống vừa sang trọng vừa tinh tế. Phòng khách hướng nhìn trực tiếp ra giếng trời, khu vực bếp được bố trí với tầm nhìn thoáng đãng ra bờ sông êm đềm, tận dụng cảnh quan tự nhiên, tăng cảm giác thư thái và kết nối với môi trường bên ngoài. Phòng tắm ở tầng cao nhất được thiết kế tinh tế với mảng xanh bao quanh, không chỉ là nơi thư giãn mà còn là biểu tượng cho sự giao thoa giữa tiện nghi hiện đại và thiên nhiên sống động. Mỗi khu vực chức năng đều được định hình rõ ràng tạo nên một tổng thể nội thất liền mạch, đáp ứng trọn vẹn cả nhu cầu sử dụng lẫn yếu tố thẩm mỹ.


Ở VCN Nha Trang House, mỗi tia nắng nhẹ nhàng xuyên qua lớp lá xanh, từng làn gió mát dịu nhẹ nhàng chạm vào không gian đều như đang mời gọi ta buông bỏ mọi ồn ào, tìm về sự an yên trong chính ngôi nhà mình. Đây chính là bằng chứng sống động khẳng định kiến trúc xanh không chỉ khả thi mà còn là giải pháp tất yếu, có thể hiện thực hóa ngay giữa lòng đô thị chật chội, là tầm nhìn kiên định mở đường cho một tương lai sống bền vững và thịnh vượng.