
Mô tả bằng văn bản do các kiến trúc sư cung cấp. Ngôi nhà Thác nước (Watterfall House) nằm trong khu đô thị mới của thành phố Hải Dương . Mặt tiền ngôi nhà lấy cảm hứng từ dòng nước chảy từ trên cao xuống, len lỏi qua từng viên đá, bụi cây. Công trình mang đến một làn gió mới, một dòng nước mát cho khu phố xung quanh với những ngôi nhà có kiến trúc tự nhiên, uốn lượn theo những con đường mòn và lặp lại. Chủ nhà là những người trẻ tuổi, họ mong muốn một ngôi nhà đơn giản, kín đáo, không cầu kỳ. Một ngôi nhà mát mẻ, gần gũi với thiên nhiên. Nơi họ được là chính mình, tránh xa sự ồn ào náo nhiệt của cuộc sống hiện đại. Mỗi khoảnh khắc ở nhà đều là khoảnh khắc tĩnh lặng nhất, một nơi để bình yên và lấy lại năng lượng sau những giờ làm việc căng thẳng. Khi bắt tay vào dự án, với diện tích không quá lớn.


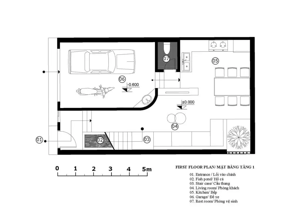
Sơ đồ mặt bằng tầng trệt

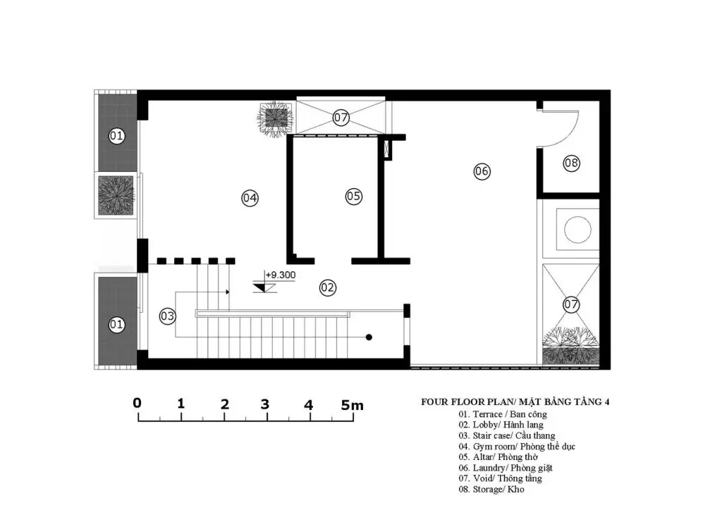
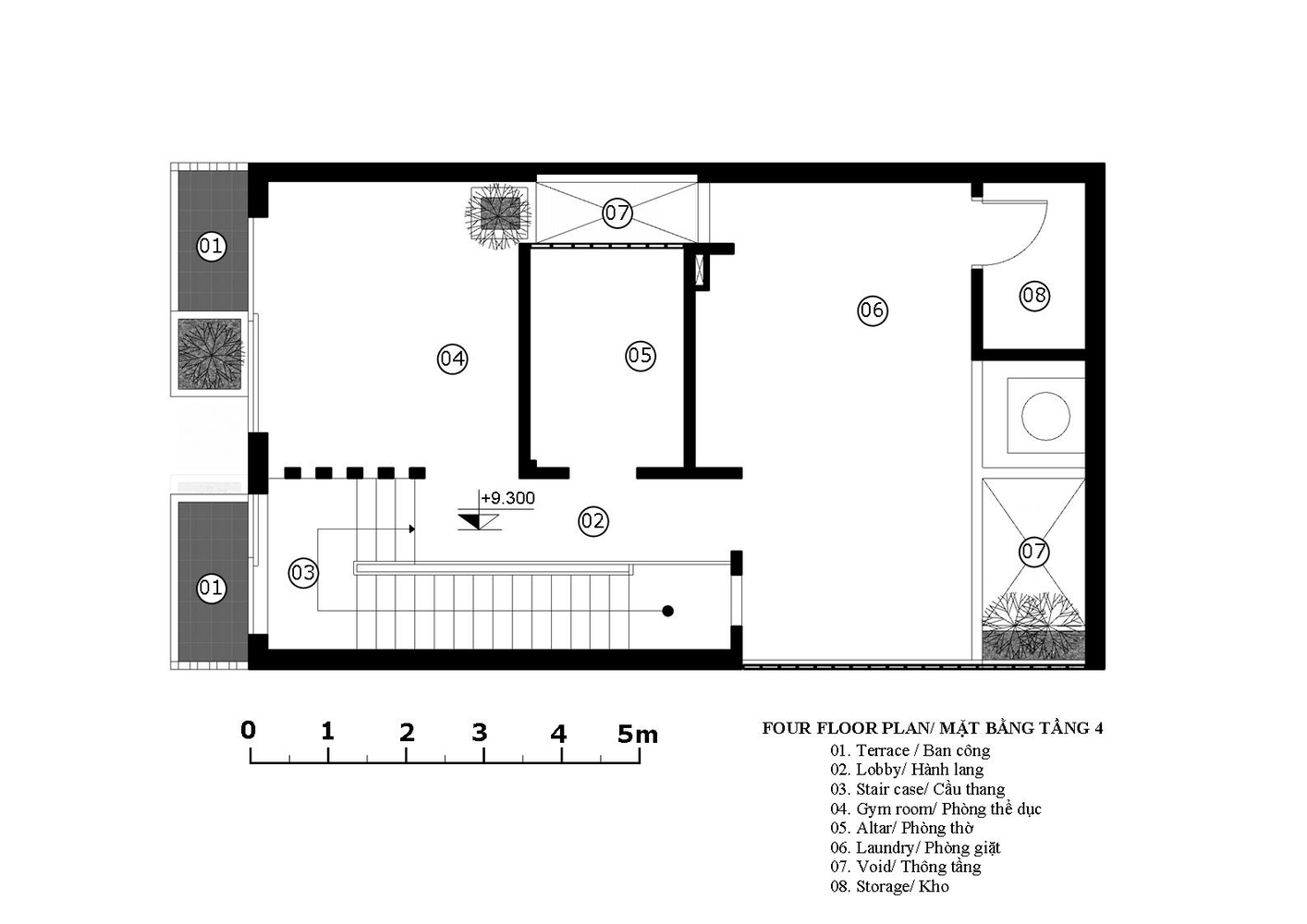
Nhà thiết kế phải cân bằng giữa mong muốn của chủ nhà, các tiện ích sử dụng và các tiêu chí đã cho: tất cả các không gian phải được đón ánh sáng tự nhiên và thông gió. Bản thiết kế đề ra là mở các giếng trời theo hàng chục hướng thẳng đứng để tạo không gian xanh cho các phòng chức năng xung quanh. Tầng trệt gồm gara, phòng khách, bếp và phòng ăn. Không gian nội thất đơn giản và tinh tế, không phô trương. Điểm nhấn chính của không gian tầng một là những hàng cây dưới bầu trời. Một điểm nhấn quý giá, đặc biệt trong bối cảnh thị trấn nhỏ hẹp. Cầu thang là không gian kết nối các tầng của ngôi nhà, không được bố trí ở giữa nhà như những thiết kế thường thấy ở nhà phố. Trong bối cảnh chật hẹp, một ngôi nhà phố với diện tích nhỏ được thiết kế nhiều tầng.



Vấn đề đối với nhà thiết kế là làm thế nào để di chuyển lên xuống mà không bị mệt mỏi và nhàm chán. Giải pháp đưa cầu thang ra phía trước nhà, tận dụng ánh sáng từ mặt tiền, là một điểm cộng của ngôi nhà thác nước. Cầu thang được thiết kế mở, cho phép ánh sáng lan tỏa khắp không gian. Với thiết kế này, thiên nhiên được đưa vào trong nhà, những tia nắng nhảy múa theo nhịp điệu của từng khoảnh khắc. Không gian thay đổi theo giờ, mỗi ngày, mỗi mùa trong năm.
