Bao Huynh Watercolor Atelier

  • Dự án: Bao Huynh Watercolor Atelier.
  • Diện tích: 161m2.
  • Địa điểm: Hội An, Việt Nam.
  • Kiến trúc sư chủ trì: Nguyễn Văn Chương.
  • Studio: Chong Chóng Architecture.
  • Nhóm thiết kế: Bành Ái Trần, Nguyễn Văn Trọng, Bùi Ngọc Cường, Đinh Việt Hoàng, Nguyễn Trường Thành, Lê Hồng Quân, Dương Chiêu Anh.

Mô tả văn bản được cung cấp bởi các kiến ​​trúc sư. Dự án tọa lạc trên khu đất rộng 161 mét vuông trong một con hẻm của làng chài Cửa Đại ở Hội An, nằm trong khu dân cư chủ yếu có mái tôn và cây xanh tối thiểu. Thiết kế tích hợp khéo léo các không gian động và tĩnh, tối ưu hóa mặt tiền hạn chế 16 mét hướng về phía Tây trong một khu vực được đặc trưng bởi mái tôn và tối thiểu cây xanh. Người chủ đã hình dung ra một môi trường thanh bình và yên bình cho cha mẹ già của mình đồng thời mang đến một khung cảnh yên tĩnh để ông thực hành niềm đam mê hội họa. Hoạt động với ngân sách khiêm tốn đòi hỏi phải lập kế hoạch tỉ mỉ, đảm bảo mỗi không gian đều linh hoạt và tiện dụng.

Điểm nhấn trong thiết kế là phòng vẽ tranh, một không gian đa chức năng để vẽ, giảng dạy, triển lãm, đọc sách và thư giãn. Đồ nội thất trong không gian này được thiết kế để thay thế nhanh chóng và linh hoạt. Studio này kết nối với phòng chứa đồ ẩn qua cầu thang và tới phòng ngủ thông qua cánh cửa ẩn trên giá sách. Khu vườn xanh tươi có tác dụng như một máy lọc không khí tự nhiên, giảm tiếng ồn và mang lại không khí trong lành. Không gian gia đình kết hợp giữa phòng khách và bếp với nội thất linh hoạt, khuyến khích sự tương tác giữa các thành viên trong gia đình, bạn bè và học sinh.

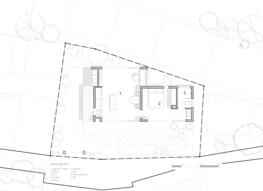
Mặt bằng tầng trệt

Điểm nhấn đặc biệt là khu vực studio và sinh hoạt gia đình, hai không gian được ngăn cách bởi một cầu thang riêng biệt. Từ đó, chúng tôi đảm bảo sự riêng tư cho hai không gian với hai thuộc tính khác nhau. Dự án này nhằm mục đích thích ứng với khí hậu khắc nghiệt ở khu vực miền Trung Việt Nam bằng cách cung cấp hệ thống thông gió tối ưu cho khoảng lùi và một cửa trượt kính lớn. Thiết kế kết hợp một số giải pháp để thích ứng với thời tiết khắc nghiệt. Hệ thống thông gió được tăng cường trong mùa hè thông qua những khoảng lùi tạo ra các điểm đón gió và thoát gió.

Không gian xanh tích hợp làm giảm bức xạ nhiệt, giảm nhiệt độ bên trong và có chức năng như bộ lọc không khí và rào cản tiếng ồn. Mái ngói bê tông kết hợp có thể chịu được bão nhiệt đới và hệ thống thoát nước mưa công suất lớn cung cấp nước cho các khu vườn trên mặt đất. Vật liệu được chọn để tiết kiệm chi phí và nhu cầu hoàn thiện tối thiểu. Bê tông đánh bóng được sử dụng về mặt kết cấu để tránh tải trọng bổ sung và dễ dàng làm sạch. Đá nung và đá cuội mang lại độ bền, đặc tính chống trượt và bảo trì dễ dàng. Gỗ tự nhiên địa phương được trồng trong khu vực mang lại lợi ích kinh tế. Sử dụng vật liệu địa phương và thợ thủ công đảm bảo chất lượng và sự phù hợp về văn hóa.

Dự án này là điểm nhấn xanh ở làng chài, tăng cường kết nối cộng đồng và mang lại góc nhìn mới cho người dân. Nó phản ánh mong muốn của gia chủ về một tổ ấm ấm cúng, thịnh vượng, an toàn cho mọi thành viên, gắn kết các thế hệ và cộng đồng.

 

 

Design & Build Planning

Lập kế hoạch cho ngôi nhà của bạn
ngay hôm nay

×