
Mô tả văn bản do kiến trúc sư cung cấp. LDH là dự án có diện tích đất 5x20m, tọa lạc trong một con hẻm nhỏ tại trung tâm Hà Nội. LDH được thiết kế từ một mô-đun căn hộ điển hình với đầy đủ chức năng để phục vụ cho thuê dành cho người nước ngoài:



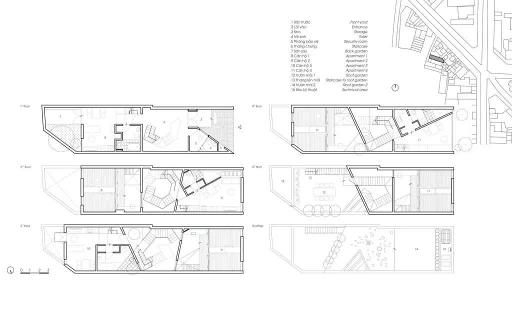
Kế hoạch


Bốn căn hộ thông tầng được thiết kế với các chức năng được sắp xếp và căn chỉnh trong không gian 5x20m để tạo ra một lõi lưu thông ở trung tâm, với lối vào mỗi căn hộ ở nhiều tầng khác nhau.


Các chức năng cần thiết của một căn hộ được nén gọn trong khối tích cơ bản 5x5x6m bằng bê tông – gỗ tự nhiên – thép. Tuy nhiên, mỗi căn hộ lại mang đến cảm nhận khác nhau về không gian sống và tầm nhìn.


Điểm nhấn của dự án LDH có lẽ nằm ở cầu thang vô định hình ở trung tâm, được làm bằng kết cấu thép dày 10mm và mặt bậc thang được phủ hạt cao su EPDM. Tuyến giao thông này đã phá vỡ trục dài thường thấy ở nhà ống thông thường, tạo ra nhiều chiều không gian hơn khi tiếp cận các căn hộ phía trên.
