
Mô tả bằng văn bản do các kiến trúc sư cung cấp. Ngôi nhà DKS đại diện cho tình huống quy hoạch điển hình của kiến trúc nhà phố tại trung tâm đô thị Việt Nam – một khu đất dành cho người dân định cư và sinh sống trên các tuyến phố thương mại sầm uất. Đây là một dự án có diện tích 200 m2 với nhiều bất lợi như ô nhiễm tiếng ồn, ô nhiễm bụi mịn từ trục giao thông mật độ cao ảnh hưởng trực tiếp đến chất lượng cuộc sống, và ánh nắng mặt trời hướng Tây cũng ảnh hưởng đến ngôi nhà. Tuy nhiên, chủ nhà vẫn muốn xây dựng ngôi nhà của mình ở đây để tiếp tục theo đuổi truyền thống gia đình.


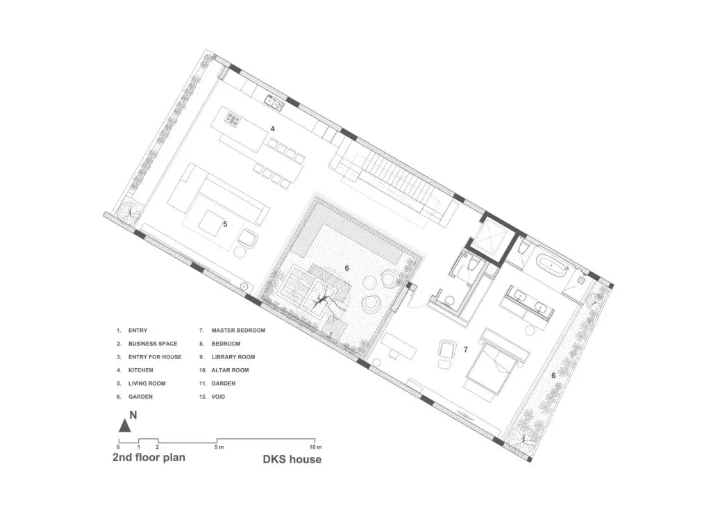
Bảng vẽ mặt bằng – Tầng 2

Chúng tôi đưa ra giải pháp hài hòa các nguồn lực hiện có – giải pháp sắp xếp lại không gian – để tách biệt những bất lợi ảnh hưởng trực tiếp đến cuộc sống hàng ngày và phát triển trải nghiệm cân bằng giữa công việc và cuộc sống. Trước hết, chúng tôi di chuyển toàn bộ không gian sinh hoạt lên tầng 2, tầng 1 hoàn toàn dành cho các hoạt động thương mại. Kết cấu nhịp lớn được sử dụng để phân chia không gian và hai lớp sàn bê tông được sử dụng để giảm thiểu tác động của rung động giao thông nặng và tạo ra một cấu trúc vườn tự nhiên trên cao hiện đại cho cuộc sống.



Một lõi xanh tự nhiên ở tầng 2 được tạo ra để điều chỉnh hướng tác động của ánh nắng mặt trời và gió lên tòa nhà. Các khối kiến trúc và không gian mở được bố trí để hướng dẫn tác động của các yếu tố khí hậu. Việc làm chủ vi khí hậu cũng tạo điều kiện cho con người và thực vật phát triển thoải mái. Sau đó, chúng ta sẽ tạo ra sự kết nối mềm mại giữa không gian sống công cộng và riêng tư dọc theo trục ngang và trục dọc của tòa nhà thông qua các vùng đệm xanh và giếng trời.


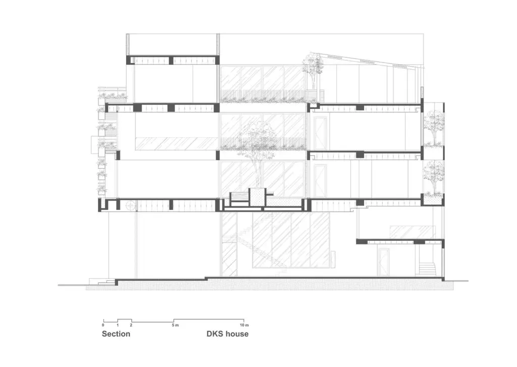
Độ cao
Sự thông thoáng về không gian cũng được áp dụng vào giải pháp mặt tiền của ngôi nhà. Lớp cây xanh trên mặt tiền được tạo nên từ những chậu cây dày đặc để ngăn bụi và ánh sáng có hại xâm nhập vào nhà. Từ đây, chúng ta bắt đầu kết nối các không gian nội thất mở với bên trong. Ngôn ngữ thiết kế tối giản và sự tương phản giữa các vật liệu như bê tông trần và tấm thép, cùng với sự tinh chỉnh các vật dụng nội thất sẽ nâng cao giá trị trải nghiệm cá nhân. Ánh sáng xuyên qua các lớp không gian và cây xanh tạo nên chiều sâu cho trải nghiệm sống. Ngôi nhà DKS thể hiện tinh thần của một ngôi nhà hướng nội mà chúng tôi muốn mang đến cho chủ nhân.