DOJO Saigon

  • Dự án: DOJO Saigon.
  • Diện tích: 80m2.
  • Địa điểm: TP. Hồ Chí Minh, Việt Nam.
  • Kiến trúc sư chủ trì: Charles Gallavardin, Tereza Gallavardin, Guillermo Medina Banderas.

Mô tả văn bản do các kiến ​​trúc sư cung cấp. T3 Architects vừa thiết kế võ đường Dojo đầu tiên tại Sài Gòn (Việt Nam). Dự án bắt đầu với sự giao thoa văn hóa tuyệt vời: “Dojo” là tên tiếng Nhật của tòa nhà, có nghĩa là tòa nhà sẽ được xây dựng theo một số quy tắc truyền thống Nhật Bản để luyện tập Judo đúng cách. Sau đó, võ đường Dojo tọa lạc trong khu vườn của một biệt thự cổ kiểu Pháp, và tất cả những điều này hòa quyện vào nhau tại thành phố năng động Hồ Chí Minh, Việt Nam.

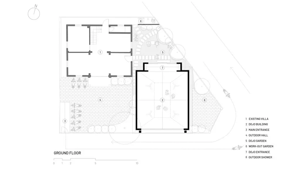
Mặt bằng tầng trệt

Được thiết kế và xây dựng theo các nguyên tắc bền vững ngay từ đầu, T3 đã đặt Dojo đúng cách trên khu vườn bằng cách sử dụng Biệt thự hiện có để được bảo vệ và hướng về bên phải để tránh mưa lớn/gió lớn và thiết kế các lối mở cho phù hợp.

Vì biệt thự hiện tại sẽ được thuê làm văn phòng Dojo và không gian làm việc chung cho các võ sinh Judo, T3 quyết định di chuyển lối đi chính qua tòa nhà hiện hữu, nơi sẽ đặt phòng thay đồ mới. Hơn nữa, chúng tôi quyết định di dời lối vào chính, tạo một cổng mới trong hẻm bên cạnh lô đất, tránh lối vào từ ngã tư đường nguy hiểm hiện hữu.

Mặt cắt ngang

Ngoài ra, theo ý định ban đầu, T3 đã cẩn thận đặt Dojo để giữ lại tất cả các cây cổ thụ hiện có, tạo ra ba khu vườn khác nhau xung quanh lô đất, một ở lối vào để chào đón như một sảnh, một ở phía sau có nhiều sự riêng tư hơn và nơi cha mẹ có thể đợi con trong khi tập luyện, và một khu vực khác để tập luyện, tất cả đều có đủ đất tự nhiên để nước mưa có thể thoát ra ngoài, tránh tình trạng ngập lụt thường gặp ở khu vực này của thành phố.

Do tòa nhà được trang bị điều hòa không khí, Dojo được xây dựng với lớp cách nhiệt hoàn toàn cho tường, cửa sổ kính hai lớp ở tất cả các ô cửa và mái được cách nhiệt bằng vỏ trấu, một loại vật liệu thân thiện với môi trường và giá cả phải chăng. Nhờ tất cả những yếu tố này, tòa nhà đạt hiệu suất năng lượng cao, mang lại mức tiêu thụ năng lượng thấp cho khách hàng.

Độ cao phía Đông

Cuối cùng nhưng không kém phần quan trọng, xét đến thời đại năng động và biến động mà chúng ta đang sống, dự án được thiết kế để có thể tháo dỡ (kết cấu chính, sàn, tường, chiếu tatami…) để khách hàng có thể di chuyển toàn bộ tòa nhà sang một lô đất khác khi cần thiết. Kết hợp các nguyên tắc bền vững nêu trên, vẻ đẹp của việc luyện tập Judo, cùng với thiết kế sáng tạo và tiện dụng, cuối cùng đã tạo nên một dự án ý nghĩa với ngân sách rất cạnh tranh.

Design & Build Planning

Lập kế hoạch cho ngôi nhà của bạn
ngay hôm nay

×