
Mô tả văn bản được cung cấp bởi các kiến trúc sư. Dự án nhà ở dành cho một gia đình có tỷ lệ theo chiều dọc này bắt đầu từ hai câu chuyện: một câu chuyện rất riêng của cặp vợ chồng khách hàng và những nguyên tắc chung về các kiểu nhà ở trong khí hậu Hà Nội.

Câu chuyện chung về khí hậu và nhà ở trong khu vực: Dự án được lấy cảm hứng từ một sơ đồ của Nga thế kỷ 19, ánh xạ các loại nhà ở theo vùng khí hậu tương ứng của chúng. Bản vẽ này chỉ ra một chiếc lều nhỏ gọn ở vùng lãnh nguyên, một căn nhà gỗ nhỏ ở khu vực phía bắc, một ngôi nhà khung gỗ ở khu vực giữa và một ngôi nhà rơm xốp với không gian rộng mở ở vùng nhiệt đới. Sơ đồ này cho thấy rõ thể tích của khu vực ở tăng lên như thế nào khi thời tiết nóng hơn và ẩm hơn. Những ngôi nhà truyền thống ở Hà Nội tuân theo nguyên tắc của vùng nhiệt đới.

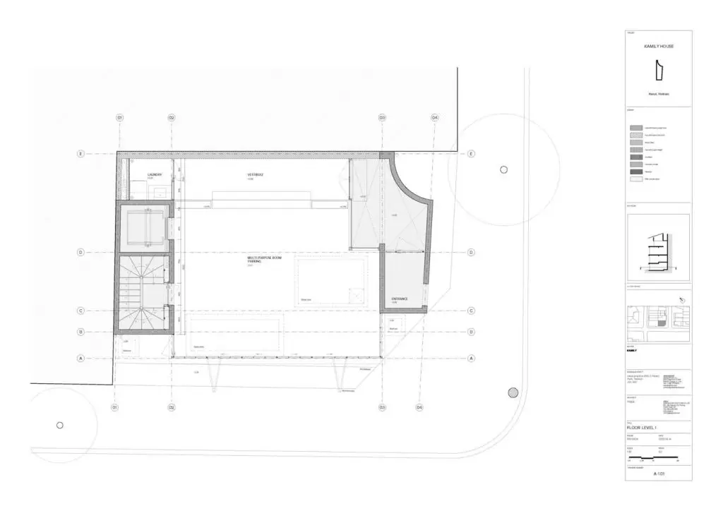
Mặt bằng tầng trệt
Ngôi nhà được kết nối với không gian ngoài trời rộng để tạo luồng không khí và được bao quanh bởi cây xanh để lọc ánh sáng. Tuy nhiên, sự phát triển hiện đại của thành phố đã tập trung vào việc đáp ứng mật độ dân số tăng theo cấp số nhân hơn là bảo tồn kiểu nhà ở truyền thống để tạo ra tiện nghi nhiệt thụ động. Ngôi nhà này cố gắng kết hợp lưu thông không khí và lọc ánh nắng mặt trời, những đặc điểm thường thấy trong kiến trúc khu vực, trong bối cảnh hiện đại dày đặc của Hà Nội.


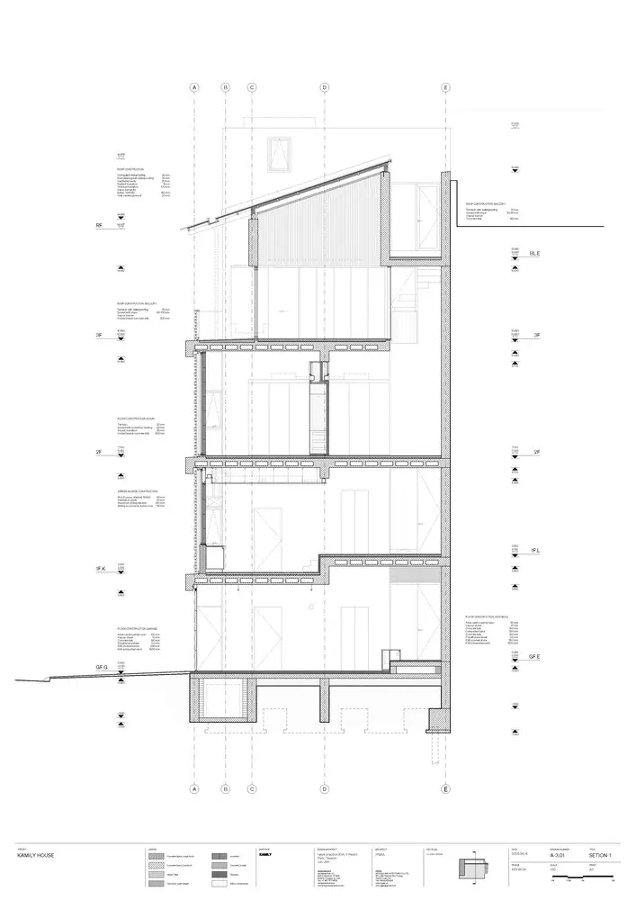
Ngôi nhà được cấu thành từ hai lõi thẳng đứng neo giữ hai đầu đối diện của khu đất, được kết nối bằng một tấm sàn nhịp. Một lõi tạo điều kiện thuận lợi cho việc di chuyển của con người, trong khi lõi còn lại dẫn luồng không khí qua một ống bê tông hở, lọc ánh sáng và dẫn không khí qua một sân bán ngoài trời. Các khoảng trống thẳng đứng nhiều lớp này tạo ra sự thông gió tự nhiên cho toàn bộ không gian sống. Ánh nắng mặt trời phía Tây được điều hòa bởi các mặt tiền có mái che và cửa chớp trượt lõi rỗng. Mặt tiền này có thể mở rộng vào những giờ mát mẻ buổi sáng và buổi tối để đón gió chéo. Mặc dù thiết kế không hướng đến việc trở thành một ngôi nhà thụ động tối ưu về nhiệt, nhưng nó cố gắng mang đến một giải pháp mang tính khu vực cho sự thoải mái về nhiệt trong một điều kiện đầy thách thức: một khu đô thị mật độ cao.

Section 1
Câu chuyện rất riêng của khách hàng: Một cặp vợ chồng đã kết hôn lâu năm tìm kiếm ý tưởng để giải quyết những vòng đời rất khác nhau của họ. Người chồng bắt đầu ngày mới sớm và người vợ gần như đi ngủ ngay khi anh ta thức dậy. Thay vì buộc phải hội tụ, chúng tôi đề xuất duy trì khoảng cách giữa không gian riêng tư của họ đồng thời tạo ra nhiều cách gián tiếp để cảm nhận sự hiện diện của nhau và cho phép giao tiếp nhẹ nhàng.


Sự kết nối trực tiếp nhất thể hiện qua ban công bên trong, một khoảng không nhỏ treo lơ lửng giữa một khoảng trống cao, tạo điều kiện cho những tương tác ngắn ngủi giữa hai vợ chồng. Về mặt không gian, các phòng của họ được kết nối theo chiều dọc thông qua hai khoảng trống chung, nơi ánh sáng và âm thanh truyền đi với cường độ khác nhau. Chính những khoảng trống này mang không khí mát mẻ đi khắp nhà, không chỉ tạo ra sự lưu thông nhiệt mà còn mang đến cảm giác sống chung vô hình, tôn vinh nhịp điệu riêng của mỗi người mà vẫn duy trì sự kết nối.

