
Mô tả bằng văn bản do các kiến trúc sư cung cấp. Khi chúng tôi bắt tay vào dự án thiết kế này, đại dịch virus Corona bùng phát. Việc đóng cửa trường học và các không gian giải trí đã buộc phải thực hiện giãn cách xã hội. Không gian nhà ở bắt đầu đảm nhận nhiệm vụ phục vụ người dân nhiều hơn, điều này khó khăn hơn so với các không gian sống chật hẹp trong các thành phố lớn. Chúng tôi ưu tiên không gian cho trẻ nhỏ, và cũng quan tâm nhiều hơn đến không gian thư giãn.


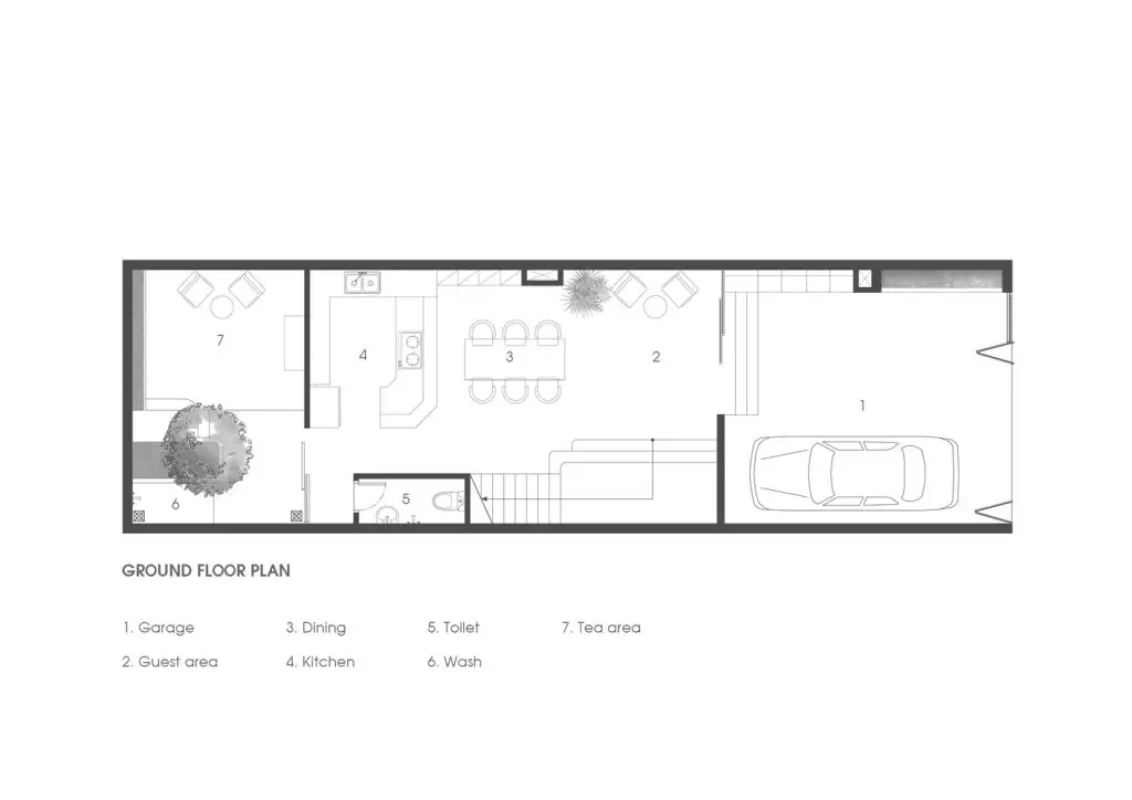
Mặt bằng tầng trệt

Dự án Villa City tọa lạc tại Quận 7, Thành phố Hồ Chí Minh , Việt Nam. Ngôi nhà dành cho vợ chồng và 2 con trai. Với diện tích 117m2 và ngân sách đầu tư hạn chế, chúng tôi hướng đến việc bố trí không gian sinh hoạt, làm việc, nghỉ ngơi hợp lý và giảm bớt tâm lý ngại ra khỏi nhà trong thời gian dài phải cách ly xã hội.

Việc thu hẹp phòng khách, loại bỏ phòng ngủ, làm giường tầng cho trẻ em dùng chung phòng tạo ra nhiều không gian để trồng cây, xây bể bơi và nhà trên cây cho trẻ sơ sinh chơi đùa. Giúp giải phóng năng lượng cho trẻ nhỏ.



Phòng ngủ của trẻ em và phòng ngủ của bố mẹ có cửa thông nhau, và được kết nối với ban công để tạo thành một không gian liền mạch đủ dài cho trẻ em chạy nhảy thoải mái. Phòng ngủ được thiết kế với một bức tường kính lớn nhìn ra cây xanh và đón ánh sáng tự nhiên từ các hốc tường dưới sàn, giúp phòng ngủ thoáng đãng và mở rộng tầm nhìn.
